Prodej vícegeneračního domu, Svratka, 280 m2 (ID: 2124986)

Svratka


7 900 000 Kč /za nemovitost
HYPOTÉKA od 35 308 Kč /měs.
Regionální dodavatelé v Svratce

Popis

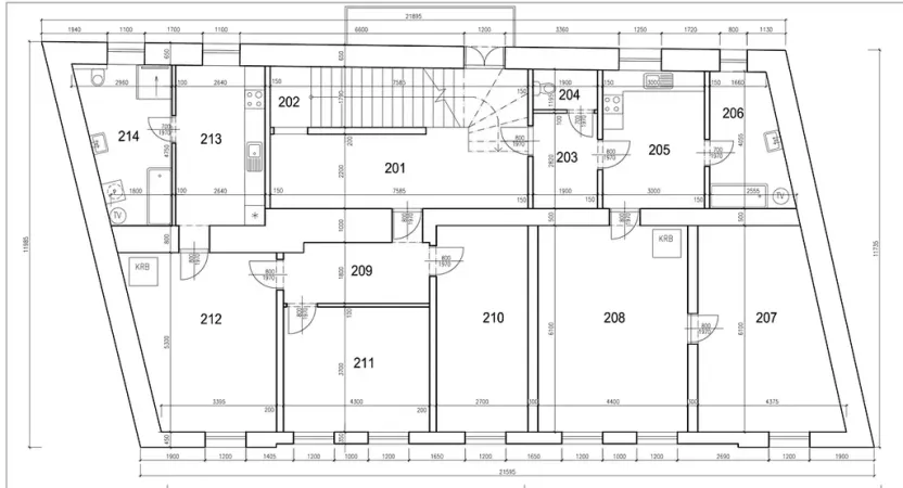
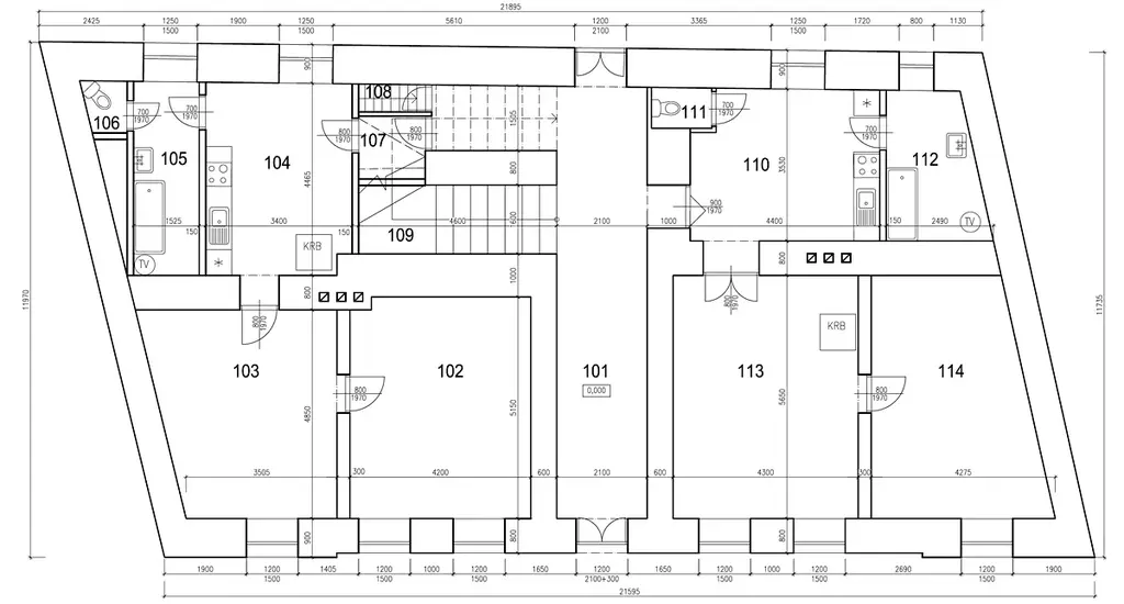
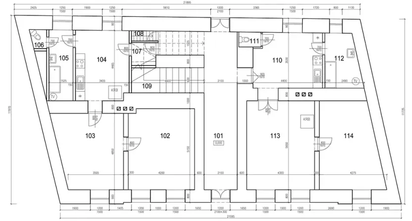
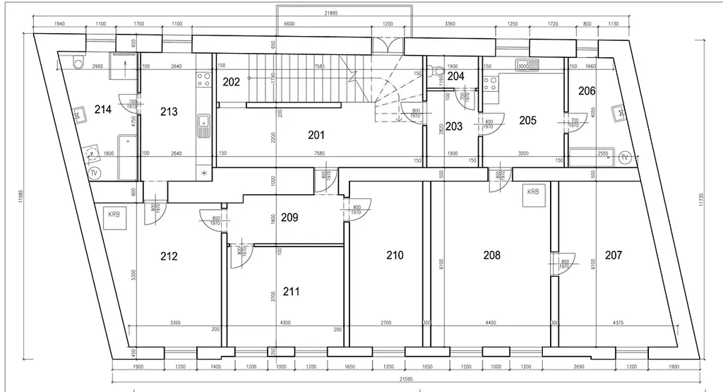
Nabízíme k prodeji bytový dům na Náměstí národního povstání ve Svratce v srdci Vysočiny. Dům je cca. 100 let starý a aktuálně jsou v něm čtyři byty, plus obrovské nevyužité podkroví. K domu patří i dvůr o výměře 506m2, ke kterému mají užívací práva i sousední domy. Zastavěná plocha domu na náměstí je 277m2. V 1.NP se nachází dva byty 2+1 o výměrách 53,5m2 a 64,4m2, v 2.NP pak dva byty 3+1 o výměrách 77.75 m2 a 85,2m2. Tři ze čtyř bytů jsou pronajaty, čistý měsíční výnos z nájmů činí celkem 24.000,-Kč. Čtvrtý největší byt v 2.NP je po zahájené rekonstrukci. Užitná plocha bytů činí tedy 280m2, plus dům má nevyužité obrovské podkroví s podlahovou plochou nejméně 200m2. Stav domu je takový, že vyžaduje časem rekonstrukci, jde o původní stav domu. Topení na tuhá paliva, kanalizace, voda i elektřina zavedena. Parkování na velkém dvoře, který je prodáván společně s domem. Jedná se o zajímavou investiční příležitost, kdy postupně lze v domě mít 6-7 bytových jednotek vč. parkování a průběžně je možné ho opravit. Cena je v přepočtu na výnos z nájmů a cenu podlahové plochy výborná.

Cena
7 900 000 Kč /za nemovitost Spočítat hypotéku
Aktualizováno
7. 4. 2026
Adresa
Svratka
Stavba
Smíšená
Stav objektu
Dobrý
Lokalita objektu
Klidná část obce
Užitná plocha
280 m2
Podlahová plocha
783 m2
Plocha pozemku
783 m2
Třída energetické náročnosti
G - Mimořádně nehospodárná
Odpad
Veřejná kanalizace
Voda
Místní zdroj vody
Zdroj topení
Kotel na tuhá paliva
Parkování

Máte zájem o tuto nemovitost?

Tímto, v souladu s nařízením Evropského parlamentu a Rady (EU) 2016/679, v platném znění, prohlašuji, že mi je alespoň 16 let a uděluji tak svůj souhlas se zpracováním zadaných údajů (jméno, telefon, e-mail, ip adresa) společnosti B3 Technology, s.r.o., IČ: 07330600, se sídlem Novostavby 126/23, 435 11 Lom (správce dat), za účelem předání dotazu z tohoto formuláře Vámi vybranému inzerentovi a zpětného kontaktování mé osoby. Osobní údaje bude správce zpracovávat manuálně i automaticky přímo prostřednictvím svých zaměstnanců. Informace předané tímto formulářem budou uloženy v databázi správce maximálně po dobu 10 let. Odvolání souhlasu s uložením a zpracováním poskytnutých dat lze e-mailem na info@realitymat.cz. V případě podezření na neoprávněné použití Vámi poskytnutých údajů máte právo předat podnět k šetření Úřadu pro ochranu osobních údajů. Více informací
Chystáte se prodat nemovitost?
Pomůžeme Vám!

Kontakt

Eliška Scigiel

Eliška Scigiel

Přihlášení k odběru

Nenechte si ujít nejnovější nabídky prodeje vícegeneračních domů v Svratce.

Podobné nabídky