Soccer reality

Pronájem bytu 2+kk, Praha, Ctěnická, 39 m2

Ctěnická, Praha 9 - Prosek, okres Praha


16 900 Kč /za měsíc
Získejte výhodnou HYPOTÉKU
Regionální dodavatelé v Praze 9

Stěhovací služby

Výkup a prodej starého nábytku

Popis

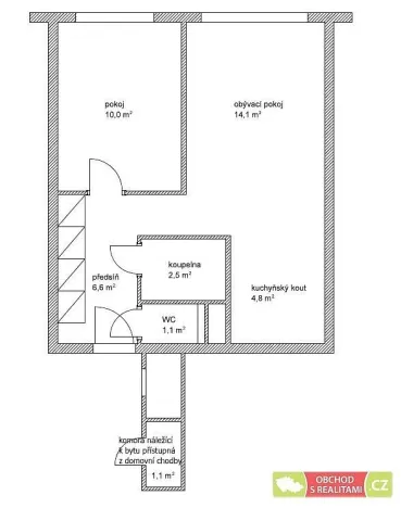
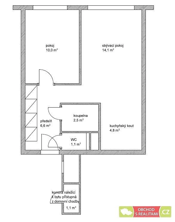
Bytová jednotka se nachází ve třetím nadzemním podlaží v zatepleném panelovém domě na adrese Ctěnická 695/13, Praha 9 / Prosek.
Byt 2+KK má zděné jádro a výměru 38 m² + 1m², komora na patře hned u vchodu do bytu, dispoziční plánek přikládáme. S bytem je možno využívat balkon na patře společný pro 3 jednotky. Byt zůstane vybaven nábytkem a spotřebiči dle přiložené fotodokumentace (tedy i myčkou nádobí či kombinovanou chladničkou, pečící troubou, indukční varnou deskou vše značky BOSCH). V koupelně k dispozici pračka. V předsíni velká vestavěná moderní skříň. Byt je vybaven bezpečnostními dveřmi zn. NEXT a je nově vymalován. Podlahovou krytinou v celém bytě je vinyl. Okna jsou orientována na jih, výhled do klidného vnitrobloku, pod okny nejezdí auta.
V domě možnost připojení k internetu Vodafone (UPC).
V blízkosti mateřská školka, dům dětí a mládeže nebo supermarket BILLA v nedalekém obchodním centru. Jen 3 minuty chůze je vstup do metra trasy C Prosek, 4 minuty zastávka BUSu směr metro Vysočanská nebo Palmovka.
Nájemné za bytovou jednotku je 16.900 Kč / měsíc, záloha na služby 3.555 Kč / měsíc+ převod elektrické energie na nájemce (cca. 1000 Kč) Jistota (kauce) 25.000 Kč, odměna realitní kanceláře jedno měsíční nájemné. Prosíme zájemce bez zvířat.

Cena
16 900 Kč /za měsíc
Aktualizováno
3. 4. 2026
Adresa
Ctěnická, Praha 9 - Prosek, okres Praha
ID
977388
Stavba
Panelová
Vybaveno
Částečně
Vlastnictví
Osobní
Užitná plocha
39 m2
Třída energetické náročnosti
C - Úsporná

Máte zájem o tuto nemovitost?

Tímto, v souladu s nařízením Evropského parlamentu a Rady (EU) 2016/679, v platném znění, prohlašuji, že mi je alespoň 16 let a uděluji tak svůj souhlas se zpracováním zadaných údajů (jméno, telefon, e-mail, ip adresa) společnosti B3 Technology, s.r.o., IČ: 07330600, se sídlem Novostavby 126/23, 435 11 Lom (správce dat), za účelem předání dotazu z tohoto formuláře Vámi vybranému inzerentovi a zpětného kontaktování mé osoby. Osobní údaje bude správce zpracovávat manuálně i automaticky přímo prostřednictvím svých zaměstnanců. Informace předané tímto formulářem budou uloženy v databázi správce maximálně po dobu 10 let. Odvolání souhlasu s uložením a zpracováním poskytnutých dat lze e-mailem na info@realitymat.cz. V případě podezření na neoprávněné použití Vámi poskytnutých údajů máte právo předat podnět k šetření Úřadu pro ochranu osobních údajů. Více informací
Chystáte se prodat nemovitost?
Pomůžeme Vám!

Kontakt

Michal Kocourek

Michal Kocourek

Přihlášení k odběru

Nenechte si ujít nejnovější nabídky pronájmu bytů 2+kk v Praze 9.

Podobné nabídky