Prodej bytu 2+1, Cheb, Nová, 49 m2

Nová, Cheb


2 990 000 Kč /za nemovitost
HYPOTÉKA od 13 363 Kč /měs.
Regionální dodavatelé v Chebu

Popis

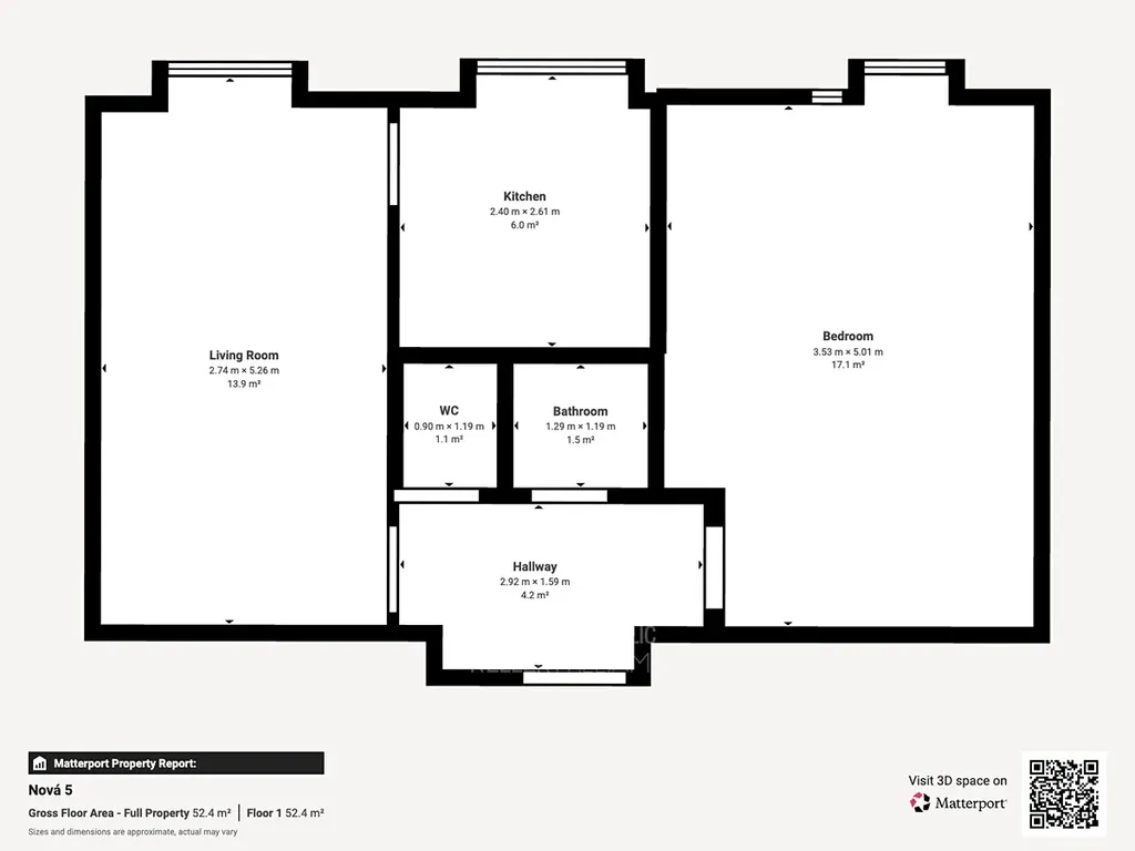
Nabízíme k prodeji vkusně zařízený a prakticky řešený byt o dispozici 2+1 (42,64 m² + dvě sklepní kóje 5,92 m²), který se nachází v klidné části města Cheb, na ulici Nová. Byt je situován ve 1. NP menšího bytového domu, což zajišťuje příjemnou atmosféru, soukromí a klidné bydlení.

Interiér působí útulně a je ve velmi dobrém technickém stavu, byt se prodává kompletně vybavený, takže je připraven k okamžitému užívání bez nutnosti dalších investic. Dispozice je praktická a maximálně využívá dostupný prostor – byt sestává z kuchyně, obývacího pokoje, ložnice, předsíně, koupelny a samostatného WC.

Velkým benefitem jsou francouzská okna v obývacím pokoji a ložnici, která prostor krásně prosvětlují a dodávají mu vzdušnost i příjemnou atmosféru.

Součástí jsou také dvě sklepní kóje, které poskytují nadstandardní úložný prostor.

Lokalita ulice Nová nabízí klidné rezidenční prostředí s výbornou dostupností do centra města Cheb. V okolí najdete veškerou občanskou vybavenost – obchody, služby, školy i zastávky MHD. Zároveň zde oceníte dostatek klidu a příjemné okolí pro každodenní život.

Tento byt představuje skvělou kombinaci praktičnosti, stavu a lokality – ideální volbu pro vlastní bydlení i jako chytrou investici s dlouhodobým potenciálem.

V případě zájmu o více informací nebo sjednání prohlídky mě neváhejte kontaktovat.

Cena
2 990 000 Kč /za nemovitost Spočítat hypotéku
Aktualizováno
2. 4. 2026
Adresa
Nová, Cheb
ID
29855
Stavba
Cihlová
Stav objektu
Velmi dobrý
Patro
2.
Vybaveno
Ano
Vlastnictví
Osobní
Užitná plocha
49 m2
Třída energetické náročnosti
C - Úsporná
Ukazatel energetické náročnosti
84 kWh/m2 za rok
Elektřina
230V
Odpad
Veřejná kanalizace
Komunikace
Betonová
Telekomunikace
Telefon, Internet, Satelit, Kabelová televize, Kabelové rozvody
Doprava
Vlak, Dálnice, Silnice, MHD, Autobus
Voda
Místní zdroj vody
Topné těleso
Radiátory
Zdroj topení
Centrální dálkové
Sklep
Výtah

Máte zájem o tuto nemovitost?

Tímto, v souladu s nařízením Evropského parlamentu a Rady (EU) 2016/679, v platném znění, prohlašuji, že mi je alespoň 16 let a uděluji tak svůj souhlas se zpracováním zadaných údajů (jméno, telefon, e-mail, ip adresa) společnosti B3 Technology, s.r.o., IČ: 07330600, se sídlem Novostavby 126/23, 435 11 Lom (správce dat), za účelem předání dotazu z tohoto formuláře Vámi vybranému inzerentovi a zpětného kontaktování mé osoby. Osobní údaje bude správce zpracovávat manuálně i automaticky přímo prostřednictvím svých zaměstnanců. Informace předané tímto formulářem budou uloženy v databázi správce maximálně po dobu 10 let. Odvolání souhlasu s uložením a zpracováním poskytnutých dat lze e-mailem na info@realitymat.cz. V případě podezření na neoprávněné použití Vámi poskytnutých údajů máte právo předat podnět k šetření Úřadu pro ochranu osobních údajů. Více informací
Chystáte se prodat nemovitost?
Pomůžeme Vám!

Kontakt

Pavel Jaroš

Pavel Jaroš

Přihlášení k odběru

Nenechte si ujít nejnovější nabídky prodeje bytů 2+1 v Chebu.

Podobné nabídky