Pronájem bytu 4+1, Liberec, nám. Tržní, 130 m2

nám. Tržní, Liberec I-Staré Město


22 000 Kč /za měsíc
Získejte výhodnou HYPOTÉKU
Regionální dodavatelé v Liberci

Rekonstrukce

Úklidové služby

Popis

K pronájmu nabízíme byt 4+1+terasa od společnosti LIFREAL, s.r.o. – majitele několika rezidenčních i podnikatelských nemovitostí v Liberci. Kvůli většímu portfoliu vlastněných nemovitostí si společnost sama zajišťuje průběžné údržby a v případě potřeby rychlé opravy. Díky tomu dokáže dlouhodobě udržet na nemovitostech stanovený standard. Finanční stabilita a jasně nastavená pravidla komunikace přináší jistotu dlouhodobé spolupráce bez náhlých změn majitele a podmínek nájmu.
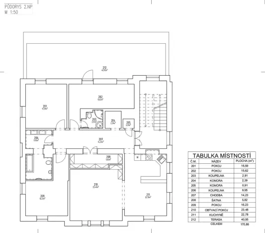
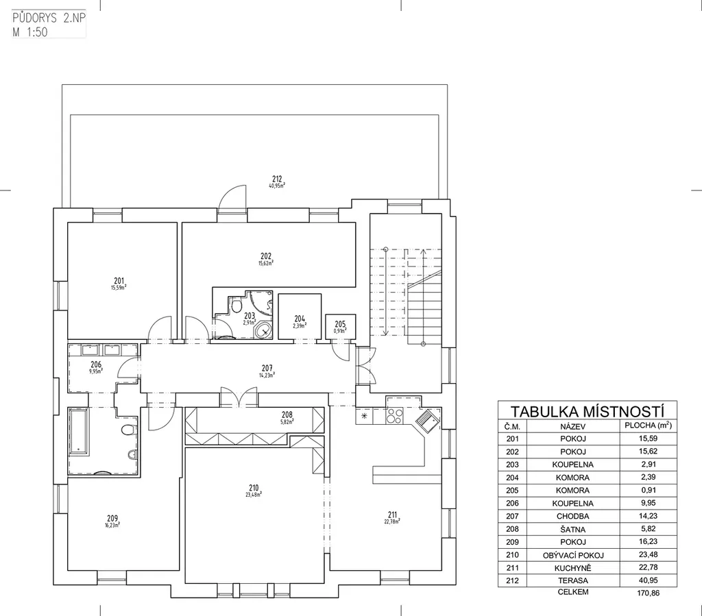
Nyní nabízíme k pronájmu byt 4+1 o velikosti 129,91m2 + terasa 40,95m2. Byt se nachází v prvním patře bytového domu na Tržním náměstí (v blízkosti plaveckého bazénu). Dům je ve velmi dobrém stavu a má výhodnou polohu v blízkosti centra. V přízemí domu je restaurace, v suterénu obchod se sportovním zbožím. Ostatní prostory jsou využívány jako byty.
Do prvního patra se dostaneme po schodech (dům je bez výtahu). Byt je velice slunný (okna jsou orientována na jih, západ a sever, terasa je na východní straně domu. Všechny pokoje spojuje chodba. Pokoje tedy nejsou průchozí. Byt se skládá ze 4 pokojů, kuchyně s jídelnou, dvou koupelen (obě s WC), prostorné šatny, dvou komor a chodby.
V zálohách na služby je zahrnuto topení, el. energie a voda.

Cena
22 000 Kč /za měsíc
Náklady na bydlení
9 986 Kč
Aktualizováno
1. 4. 2026
Adresa
nám. Tržní, Liberec I-Staré Město
Stavba
Cihlová
Stav objektu
Velmi dobrý
Patro
2.
Lokalita objektu
Centrum obce
Vlastnictví
Osobní
Užitná plocha
130 m2
Elektřina
230V
Plyn
Plynovod
Odpad
Veřejná kanalizace
Komunikace
Asfaltová
Telekomunikace
Telefon, Internet, Kabelová televize, Kabelové rozvody
Doprava
Silnice, MHD
Voda
Vodovod
Topné těleso
Radiátory
Zdroj topení
Plynový kondenzační kotel
Zdroj teplé vody
Plynový kondenzační kotel
Terasa

Máte zájem o tuto nemovitost?

Tímto, v souladu s nařízením Evropského parlamentu a Rady (EU) 2016/679, v platném znění, prohlašuji, že mi je alespoň 16 let a uděluji tak svůj souhlas se zpracováním zadaných údajů (jméno, telefon, e-mail, ip adresa) společnosti B3 Technology, s.r.o., IČ: 07330600, se sídlem Novostavby 126/23, 435 11 Lom (správce dat), za účelem předání dotazu z tohoto formuláře Vámi vybranému inzerentovi a zpětného kontaktování mé osoby. Osobní údaje bude správce zpracovávat manuálně i automaticky přímo prostřednictvím svých zaměstnanců. Informace předané tímto formulářem budou uloženy v databázi správce maximálně po dobu 10 let. Odvolání souhlasu s uložením a zpracováním poskytnutých dat lze e-mailem na info@realitymat.cz. V případě podezření na neoprávněné použití Vámi poskytnutých údajů máte právo předat podnět k šetření Úřadu pro ochranu osobních údajů. Více informací
Chystáte se prodat nemovitost?
Pomůžeme Vám!

Kontakt

Ing. Roman Tuma

Ing. Roman Tuma

Přihlášení k odběru

Nenechte si ujít nejnovější nabídky pronájmu bytů 4+1 v Liberci.

Podobné nabídky