Pronájem kanceláře, Praha - Vinohrady, Uruguayská, 103 m2

Uruguayská, Praha, Vinohrady


24 574 Kč /za měsíc
Získejte výhodnou HYPOTÉKU
Regionální dodavatelé v Praze 2

Stěhovací služby

Výkup a prodej starého nábytku

Popis

Přímý majitel, developerská společnost REMCO s.r.o. nabízí k pronájmu kancelářské prostory v administrativní budově v Uruguayské ulici, Praha 2.
Ideální poloha blízko centra Prahy, 200m od stanice metra Nám. Míru a tramvajových zastávek.
Možnost pronájmu parkování v podzemní garáži.
Cena nájmu je 239,-Kč/m2 + poplatky za služby 119,-Kč/m2, topné náklady 20,-Kč/m2 a elektrická energie.
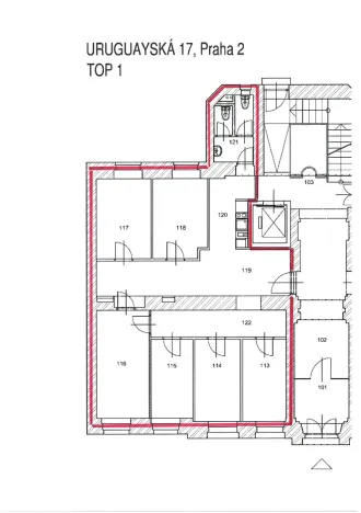
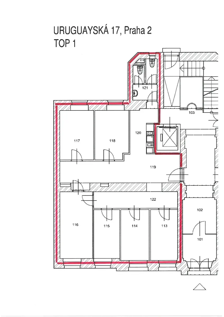
K dispozici je šest světlých, prostorných kanceláří o celkové výměře 102,82 m2. Kanceláře na nachází v 1NP objektu. Součástí prostor je vstupní hala s odděleným kuchyňským koutem, viz půdorys.
Prostory mají vlastní sociální zázemí, žaluzie a otevíratelná okna.

Elektrická energie se platí dle spotřeby (fakturace).

Prostory jsou volné od srpna, od září k pronájmu 2026.

Cena
24 574 Kč /za měsíc
Aktualizováno
30. 3. 2026
Adresa
Uruguayská, Praha, Vinohrady
Stavba
Cihlová
Stav objektu
Dobrý
Patro
1.
Lokalita objektu
Klidná část obce
Užitná plocha
103 m2
Třída energetické náročnosti
E - Nehospodárná
Elektřina
230V
Plyn
Plynovod
Odpad
Veřejná kanalizace
Komunikace
Dlážděná, Asfaltová
Doprava
Dálnice, Silnice, MHD
Voda
Vodovod
Zdroj topení
Plynový kotel
Garáž
Výtah
Bezbarierový přístup

Máte zájem o tuto nemovitost?

Tímto, v souladu s nařízením Evropského parlamentu a Rady (EU) 2016/679, v platném znění, prohlašuji, že mi je alespoň 16 let a uděluji tak svůj souhlas se zpracováním zadaných údajů (jméno, telefon, e-mail, ip adresa) společnosti B3 Technology, s.r.o., IČ: 07330600, se sídlem Novostavby 126/23, 435 11 Lom (správce dat), za účelem předání dotazu z tohoto formuláře Vámi vybranému inzerentovi a zpětného kontaktování mé osoby. Osobní údaje bude správce zpracovávat manuálně i automaticky přímo prostřednictvím svých zaměstnanců. Informace předané tímto formulářem budou uloženy v databázi správce maximálně po dobu 10 let. Odvolání souhlasu s uložením a zpracováním poskytnutých dat lze e-mailem na info@realitymat.cz. V případě podezření na neoprávněné použití Vámi poskytnutých údajů máte právo předat podnět k šetření Úřadu pro ochranu osobních údajů. Více informací
Chystáte se prodat nemovitost?
Pomůžeme Vám!

Kontakt

Jana Vávrová

Jana Vávrová

Přihlášení k odběru

Nenechte si ujít nejnovější nabídky pronájmu kanceláří v Praze 2.

Podobné nabídky