Prodej bytu 4+kk, Kaštela, Chorvatsko, 132 m2 (ID: 2118938)

Kaštela


497 000 € /za nemovitost

Regionální dodavatelé

Popis

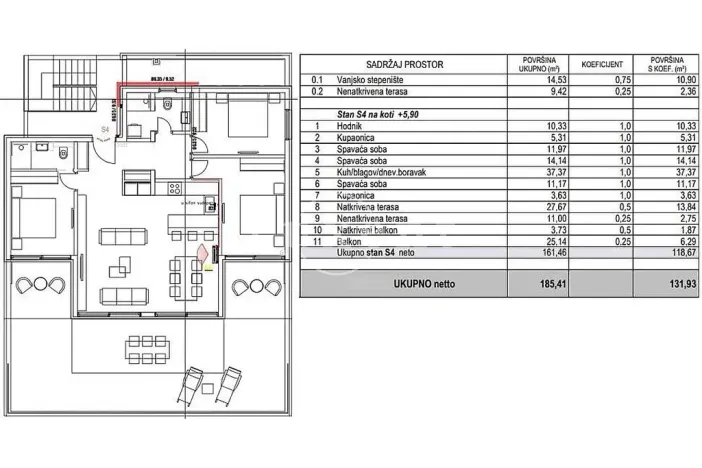
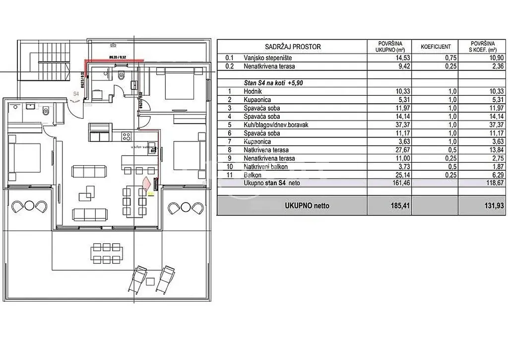
Nabízíme k prodeji prostorný penthouse o velikosti 132 m2 v novém rezidenčním projektu, který vzniká v klidné lokalitě ve městě Kaštela. Apartmán je situován v nejvyšším patře moderní budovy a díky poloze v uzavřeném areálu poskytuje budoucím majitelům soukromí, bezpečí a maximální pohodlí. Hlavním lákadlem je velkorysá terasa s vířivkou, která nabízí ideální místo pro relaxaci.

Dispozice bytu zahrnuje prostorný obývací pokoj s kuchyní a jídelnou, tři ložnice, dvě koupelny, vstupní halu a balkon. Součástí ceny jsou také dvě parkovací místa v podzemní garáži a sklepní prostor, což podtrhuje praktickou hodnotu nemovitosti.

Samotný rezidenční dům je navržen ve vysokém standardu – železobetonová konstrukce, kvalitní izolace fasády a podlahové vytápění v koupelnách zaručují dlouhou životnost, nízké provozní náklady i vysoký komfort bydlení.

Tento moderní penthouse tak představuje atraktivní příležitost k pořízení prestižního bydlení u moře, které bude zároveň výbornou investicí do budoucna.

Cena
497 000 € /za nemovitost
Aktualizováno
30. 3. 2026
Adresa
Kaštela
ID
N7758
Stavba
Smíšená
Stav objektu
Velmi dobrý
Patro
4.
Vlastnictví
Osobní
Užitná plocha
132 m2
Třída energetické náročnosti
G - Mimořádně nehospodárná
Sklep
Terasa
Parkování

Máte zájem o tuto nemovitost?

Tímto, v souladu s nařízením Evropského parlamentu a Rady (EU) 2016/679, v platném znění, prohlašuji, že mi je alespoň 16 let a uděluji tak svůj souhlas se zpracováním zadaných údajů (jméno, telefon, e-mail, ip adresa) společnosti B3 Technology, s.r.o., IČ: 07330600, se sídlem Novostavby 126/23, 435 11 Lom (správce dat), za účelem předání dotazu z tohoto formuláře Vámi vybranému inzerentovi a zpětného kontaktování mé osoby. Osobní údaje bude správce zpracovávat manuálně i automaticky přímo prostřednictvím svých zaměstnanců. Informace předané tímto formulářem budou uloženy v databázi správce maximálně po dobu 10 let. Odvolání souhlasu s uložením a zpracováním poskytnutých dat lze e-mailem na info@realitymat.cz. V případě podezření na neoprávněné použití Vámi poskytnutých údajů máte právo předat podnět k šetření Úřadu pro ochranu osobních údajů. Více informací
Chystáte se prodat nemovitost?
Pomůžeme Vám!

Kontakt

Veronika Pecková

Veronika Pecková

Přihlášení k odběru

Nenechte si ujít nejnovější nabídky prodeje bytů 4+kk.

Podobné nabídky