Prodej bytu 3+kk, Jedovnice, Legionářská, 93 m2

Legionářská, Jedovnice


5 300 000 Kč /za nemovitost
HYPOTÉKA od 23 688 Kč /měs.

(včetně DPH, včetně poplatků, včetně provize, včetně právního servisu)


Regionální dodavatelé v Jedovnicích

Pojištění a finance

Popis

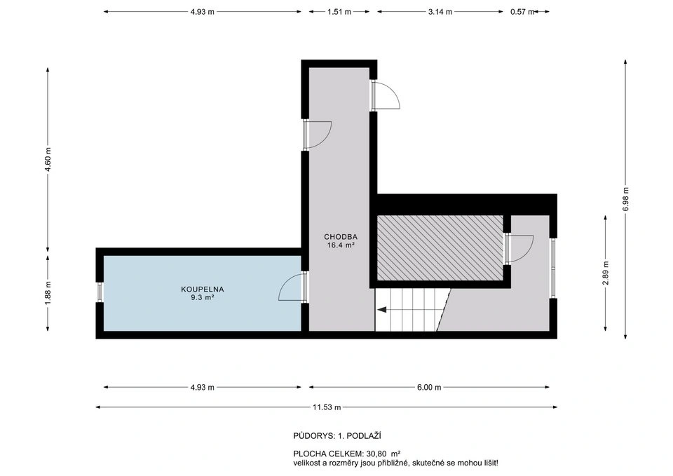
Rádi bychom Vám nabídli prostorný zrekonstruovaný byt 3+kk s plochou (93,1 m²) v historickém domě se zahradou v ulici Legionářská v Jedovnicích.

Dům si i po zdařilé rekonstrukci zachoval svůj jedinečný charakter i atmosféru.

Byt je umístěn ve 3. nadzemním podlaží tohoto domu, ve kterém jsou pouze čtyři bytové jednotky.
Díky tomu nabízí bydlení komorní a klidnou atmosféru.

Dominantou bytu je prostorný obývací pokoj s kuchyňským koutem. Interiér je vybaven prostornou kuchyňskou linkou se spotřebiči.

Byt působí vzdušně a otevřeně a ze všech místností jsou krásné výhledy do okolí.

Podlahy v obytných místnostech jsou plovoucí a dlažby jsou položeny v koupelně a na chodbě.
V rámci nedávné revitalizace byla v bytě instalována dřevěná eurookna.

V bytě je komfortní podlahové vytápění, které zajišťuje příjemné a zároveň úsporné bydlení.

Velkým benefitem k bytu je společná zahrada o výměře více jak 1 200 m², která je mezi jednotlivé vlastníky rozdělena dohodou k užívání.

K domu náleží také velká garáž s elektricky ovládanými vraty, kde si vlastníci rovněž vymezili své prostory.

Orientace obývacího pokoje je severovýchodní, ložnice a dětský pokoj jsou orientovány na jihozápad.

Dům má velmi dobrou polohu – v docházkové vzdálenosti je jak dětské hřiště, tak i centrum městyse, autobusová zastávka i okolní příroda.

V blízkosti se nachází lesní cesty, trailové trasy i rybníky.
Jedovnice nabízejí výbornou občanskou vybavenost – mateřskou, základní, střední i uměleckou školu, lékaře obchody, restaurace, kavárny i sportoviště.

V případě vyššího počtu zájemců může být nemovitost prodána nejvýhodnější nabídce.

Tak co na to říkáte? Chcete se na byt podívat osobně?

Potom se se mnou neváhejte spojit.

Cena
5 300 000 Kč /za nemovitost Spočítat hypotéku
Poznámka k ceně
včetně DPH, včetně poplatků, včetně provize, včetně právního servisu
Aktualizováno
15. 4. 2026
Adresa
Legionářská, Jedovnice
ID
00062
Stavba
Cihlová
Stav objektu
Velmi dobrý
Patro
3. z 3
Vybaveno
Částečně
Druh objektu
Samostatný
Lokalita objektu
Klidná část obce
Vlastnictví
Osobní
Užitná plocha
93 m2
Třída energetické náročnosti
B - Velmi úsporná
Ukazatel energetické náročnosti
137 kWh/m2 za rok
Elektřina
230V
Odpad
Veřejná kanalizace
Komunikace
Asfaltová
Doprava
Silnice, Autobus
Voda
Vodovod

Máte zájem o tuto nemovitost?

Tímto, v souladu s nařízením Evropského parlamentu a Rady (EU) 2016/679, v platném znění, prohlašuji, že mi je alespoň 16 let a uděluji tak svůj souhlas se zpracováním zadaných údajů (jméno, telefon, e-mail, ip adresa) společnosti B3 Technology, s.r.o., IČ: 07330600, se sídlem Novostavby 126/23, 435 11 Lom (správce dat), za účelem předání dotazu z tohoto formuláře Vámi vybranému inzerentovi a zpětného kontaktování mé osoby. Osobní údaje bude správce zpracovávat manuálně i automaticky přímo prostřednictvím svých zaměstnanců. Informace předané tímto formulářem budou uloženy v databázi správce maximálně po dobu 10 let. Odvolání souhlasu s uložením a zpracováním poskytnutých dat lze e-mailem na info@realitymat.cz. V případě podezření na neoprávněné použití Vámi poskytnutých údajů máte právo předat podnět k šetření Úřadu pro ochranu osobních údajů. Více informací
Chystáte se prodat nemovitost?
Pomůžeme Vám!
Theleadway banner

Kontakt

Jiří Korčák

Jiří Korčák

Přihlášení k odběru

Nenechte si ujít nejnovější nabídky prodeje bytů 3+kk v Jedovnicích.

Podobné nabídky