Prodej ubytování, Valtice, 21. dubna, 111 m2

21. dubna, Valtice


7 200 000 Kč /za nemovitost
HYPOTÉKA od 32 180 Kč /měs.
Regionální dodavatelé v Valticích

Pojištění a finance

Popis

Exkluzivní investiční příležitost – zavedený apartmánový dům ve Valticích

V jedné z nejžádanějších vinařských lokalit jižní Moravy nabízíme k prodeji stylový apartmánový dům s fungujícím ubytovacím provozem, který představuje ideální spojení investice, podnikání i vlastního rekreačního zázemí.
Nemovitost se nachází v malebném prostředí Valtic, města vína, historie a turistiky, které je každoročně vyhledávaným cílem návštěvníků z celé České republiky i zahraničí. Díky silné turistické poptávce nabízí dům stabilní potenciál pravidelného výnosu z krátkodobých pronájmů.
Velkou přidanou hodnotou je, že součástí prodeje je zavedená klientela i funkční webová prezentace, což umožňuje plynulé převzetí provozu bez nutnosti budovat podnikání od začátku.

Nemovitost s promyšleným konceptem

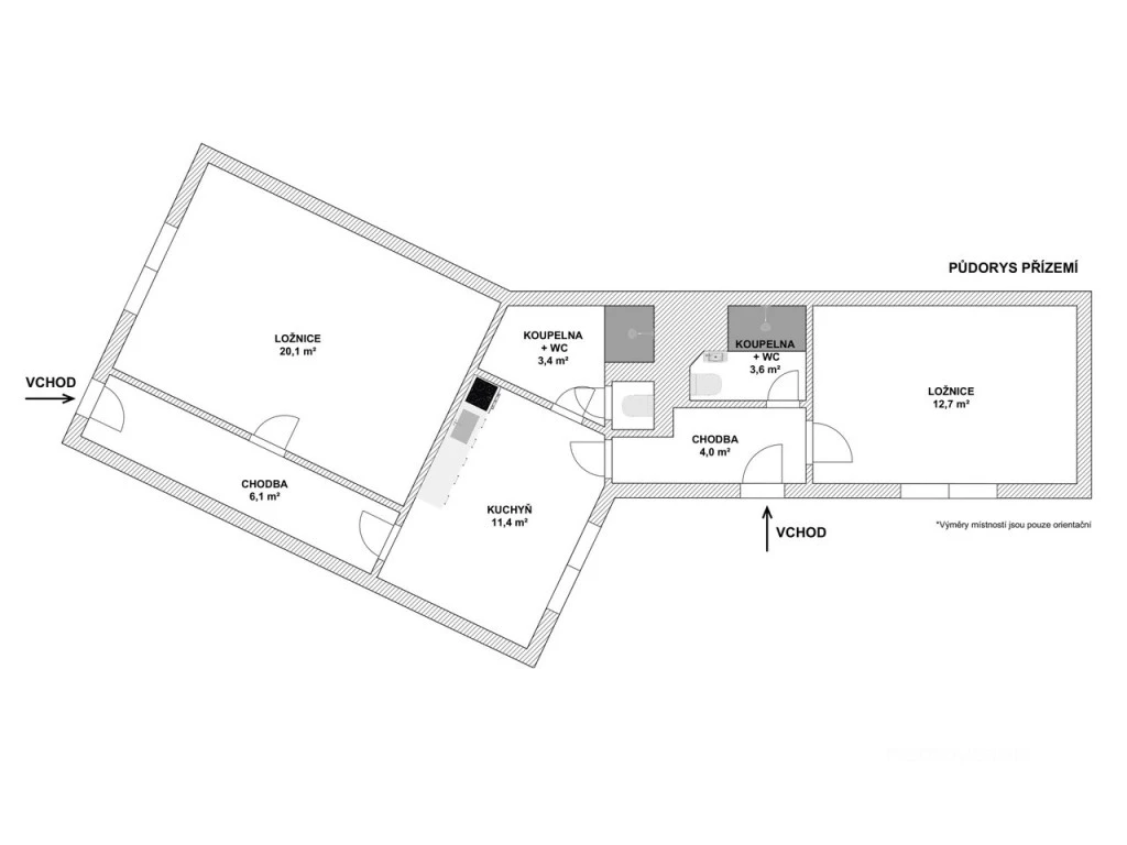
Dům o užitné ploše 111 m², stojící na pozemku 228 m², je prakticky rozdělen na čtyři samostatné apartmány, které umožňují maximální flexibilitu využití.

Dispozice domu umožňuje:
• plnohodnotný komerční provoz ubytování
• kombinaci vlastního bydlení a podnikání
• pronájem po jednotlivých apartmánech nebo jako celek pro větší skupiny
Díky tomuto řešení lze velmi efektivně reagovat na poptávku hostů a optimalizovat obsazenost během celého roku.

Dispozice apartmánů:

Apartmány 1 a 2
Tyto apartmány mohou fungovat samostatně nebo jako jeden celek, což je ideální pro rodiny či větší skupiny hostů.
Apartmán 1 (kapacita 3 osoby)
• manželská postel
• samostatné lůžko
• vlastní koupelna (sprcha, WC, umyvadlo)
Apartmán 2 (kapacita 2 osoby)
• manželská postel
• koupelna (sprcha, WC, umyvadlo)
Apartmány sdílí plně vybavenou kuchyň a lze je oddělit uzamykatelnými dveřmi.

Apartmány 3 a 4
Samostatná část domu se společným vstupem, ideální pro společné pobyty přátel či rodin.
Apartmán 3 (kapacita 2 osoby)
• oddělené postele s možností spojení
• vlastní kuchyňka
• samostatné WC
Apartmán 4 (kapacita 3 osoby – v patře)
• manželská postel
• samostatné lůžko
• kuchyňka
• samostatné WC
Každý apartmán disponuje vlastním zázemím. Ideální pro skupinové rezervace.

Valtice jsou součástí Lednicko-valtického areálu, zapsaného na seznamu UNESCO, a dlouhodobě patří mezi nejvyhledávanější turistické destinace na jižní Moravě.

Hosté zde vyhledávají:
• vinařskou turistiku
• cyklostezky mezi vinicemi
• historické památky
• gastronomii a kulturní akce

To vše zajišťuje stabilní poptávku po kvalitním ubytování po většinu roku.

Hlavní benefity investice
- prestižní turistická lokalita
- zavedený a funkční ubytovací provoz
- okamžitý potenciál výnosu
- flexibilní využití nemovitosti
- možnost dalšího rozvoje a marketingu

Možnosti využití
• investiční apartmánový dům
• kombinace vlastního bydlení a podnikání
• rekreační objekt pro rodinu
• vícegenerační bydlení
• pronájem přes platformy Airbnb nebo Booking

Tato nemovitost není pouze domem – představuje fungující projekt s potenciálem dalšího růstu v jedné z nejatraktivnějších vinařských oblastí České republiky.

Cena
7 200 000 Kč /za nemovitost Spočítat hypotéku
Aktualizováno
11. 5. 2026
Adresa
21. dubna, Valtice
ID
185
Stavba
Cihlová
Stav objektu
Velmi dobrý
Vybaveno
Ano
Typ objektu
Přízemní
Druh objektu
Řadový
Užitná plocha
111 m2
Elektřina
230V
Plyn
Plynovod
Odpad
Veřejná kanalizace
Topení
Jiné
Voda
Vodovod
Topné těleso
Klimatizace
Zdroj teplé vody
Bojler - elektro
Výtah
Parkování

Máte zájem o tuto nemovitost?

Tímto, v souladu s nařízením Evropského parlamentu a Rady (EU) 2016/679, v platném znění, prohlašuji, že mi je alespoň 16 let a uděluji tak svůj souhlas se zpracováním zadaných údajů (jméno, telefon, e-mail, ip adresa) společnosti B3 Technology, s.r.o., IČ: 07330600, se sídlem Novostavby 126/23, 435 11 Lom (správce dat), za účelem předání dotazu z tohoto formuláře Vámi vybranému inzerentovi a zpětného kontaktování mé osoby. Osobní údaje bude správce zpracovávat manuálně i automaticky přímo prostřednictvím svých zaměstnanců. Informace předané tímto formulářem budou uloženy v databázi správce maximálně po dobu 10 let. Odvolání souhlasu s uložením a zpracováním poskytnutých dat lze e-mailem na info@realitymat.cz. V případě podezření na neoprávněné použití Vámi poskytnutých údajů máte právo předat podnět k šetření Úřadu pro ochranu osobních údajů. Více informací
Chystáte se prodat nemovitost?
Pomůžeme Vám!
Theleadway banner

Kontakt

Pavla Šimková

Pavla Šimková

Přihlášení k odběru

Nenechte si ujít nejnovější nabídky prodeje ubytování v Valticích.

Tipy Realitymatu

Podobné nabídky