Prodej bytu 3+kk, Hořice, Zborovská, 72 m2 (ID: 2116050)

Zborovská, Hořice


Cena na vyžádání /za nemovitost
Získejte výhodnou HYPOTÉKU
Regionální dodavatelé v Hořicích

Popis

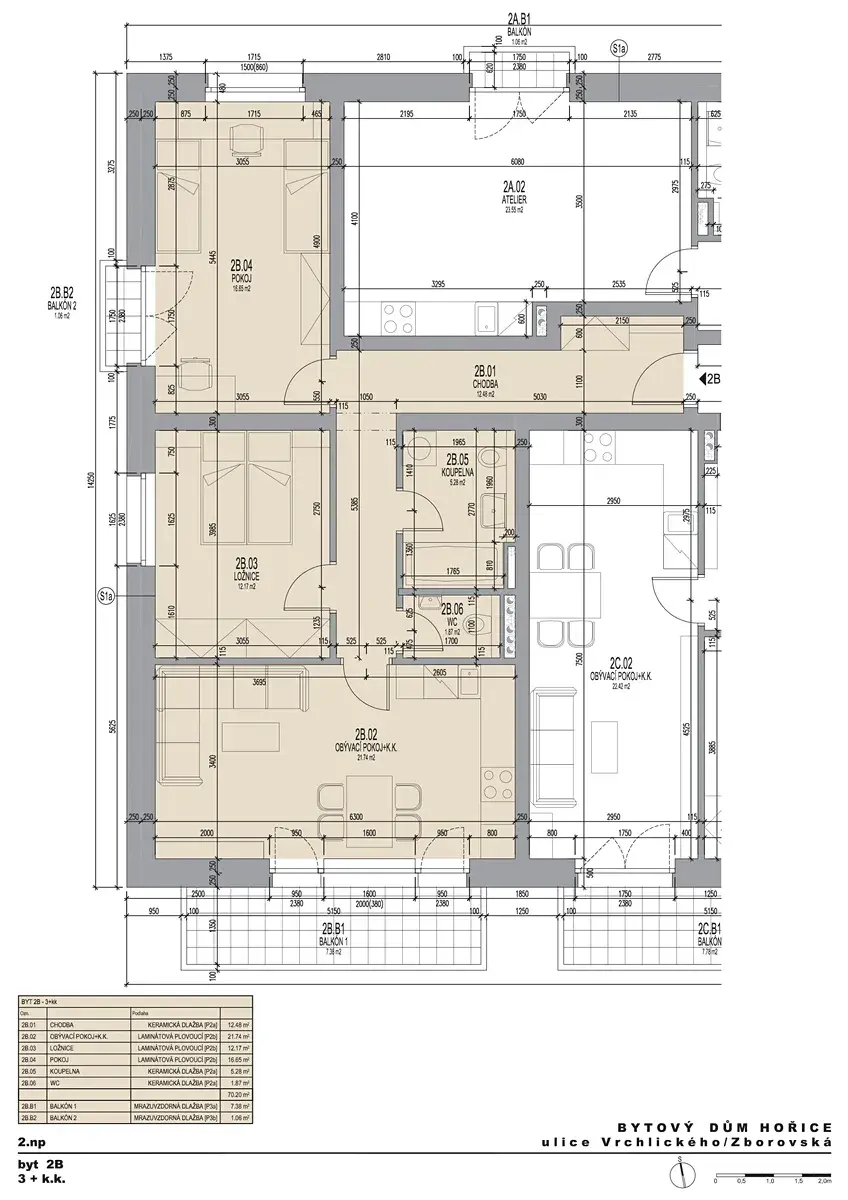
Nabízíme k prodeji moderní byt 3+kk o velikosti 72 m² v novém pasivním bytovém domě na ulici Zborovská v Hořicích. Byt se nachází ve 2. patře třípodlažní cihlové budovy ve výstavbě a nabízí komfortní a úsporné bydlení v energetické třídě A.
Dispozice bytu zahrnuje prostorný obývací pokoj s kuchyňským koutem, dvě ložnice, koupelnu, samostatné WC a balkon orientovaný na jih s výhledem do okolní krajiny. Díky pasivnímu standardu výstavby se můžete těšit na nízké provozní náklady a příjemné vnitřní klima po celý rok.
Bytový dům je situován v klidné části Hořic s dobrou dostupností do centra města a veškerou občanskou vybaveností v dosahu. K bytu je možné dokoupit parkovací nebo garážové stání.
Cena bytu činí 6 031 350 Kč. Pro více informací navštivte webové stránky projektu (byty-horice) nebo nás neváhejte kontaktovat.

Cena
Cena na vyžádání Spočítat hypotéku
Aktualizováno
16. 4. 2026
Adresa
Zborovská, Hořice
ID
18
Stavba
Cihlová
Stav objektu
Ve výstavbě
Patro
2. z 3
Vybaveno
Částečně
Lokalita objektu
Klidná část obce
Vlastnictví
Osobní
Užitná plocha
72 m2
Třída energetické náročnosti
A - Mimořádně úsporná
Ukazatel energetické náročnosti
57 kWh/m2 za rok
Elektřina
230V
Odpad
Veřejná kanalizace
Komunikace
Asfaltová
Telekomunikace
Telefon, Internet, Satelit, Kabelová televize, Kabelové rozvody
Doprava
Vlak, Dálnice, Silnice, MHD, Autobus
Voda
Vodovod
Topné těleso
Podlahové vytápění
Zdroj topení
Tepelné čerpadlo
Zdroj teplé vody
Tepelné čerpadlo
Balkon
Výtah
Bezbarierový přístup
Parkování

Máte zájem o tuto nemovitost?

Tímto, v souladu s nařízením Evropského parlamentu a Rady (EU) 2016/679, v platném znění, prohlašuji, že mi je alespoň 16 let a uděluji tak svůj souhlas se zpracováním zadaných údajů (jméno, telefon, e-mail, ip adresa) společnosti B3 Technology, s.r.o., IČ: 07330600, se sídlem Novostavby 126/23, 435 11 Lom (správce dat), za účelem předání dotazu z tohoto formuláře Vámi vybranému inzerentovi a zpětného kontaktování mé osoby. Osobní údaje bude správce zpracovávat manuálně i automaticky přímo prostřednictvím svých zaměstnanců. Informace předané tímto formulářem budou uloženy v databázi správce maximálně po dobu 10 let. Odvolání souhlasu s uložením a zpracováním poskytnutých dat lze e-mailem na info@realitymat.cz. V případě podezření na neoprávněné použití Vámi poskytnutých údajů máte právo předat podnět k šetření Úřadu pro ochranu osobních údajů. Více informací
Chystáte se prodat nemovitost?
Pomůžeme Vám!

Kontakt

Adam Knetl

Adam Knetl

Přihlášení k odběru

Nenechte si ujít nejnovější nabídky prodeje bytů 3+kk v Hořicích (okr. Jičín).