Soccer reality

Prodej bytu 4+kk, Odolena Voda, Školní, 100 m2 (ID: 2113639)

Školní, Odolena Voda, Dolínek


Cena na vyžádání /za nemovitost
Získejte výhodnou HYPOTÉKU
Regionální dodavatelé v Odoleně Vodě

Popis

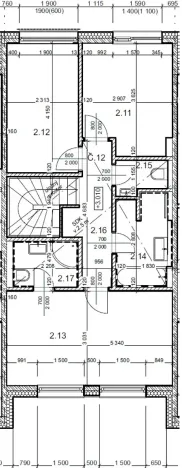
Prodej novostavby družstevního bytu, 4+kk 100m² + předzahrádka cca 30 m² +2× parkovací stání.

Na začátku platíte pouze cenu za převod členského podílu: 3 590 000,-Kč.
Zbývající anuita: 7 880 000,-Kč se splácí v měsíčních splátkách: 41 710,-Kč a bydlíte. Nedokládáte příjmy.


Nabízíme k prodeji nový družstevní mezonetový byt o dispozici 4+kk o velikosti 100 m² + předzahrádka o výměře cca 30 m², který je situovaný v 1. NP a 2.NP cihlové novostavby družstevního bydlení v Rezidenci U Školy, Odolena Voda.

Byt je dokončený po kolaudaci, je provedena příprava pro kuchyňskou linku, hotové koupelny včetně sanity, dlažby, interiérové dveře, rekuperační jednotka, podlahové vytápění, plastová okna. V ceně bytu je vinylová podlaha, možnost vlastního výběru s případným doplatkem rozdílu ceny za m².
Podlahové vytápění zajištěné tepelným čerpadlem, budova vystavena jako mimořádně úsporná, energetická náročnost PENB je ve třídě A.

Příslušenství bytu je 1x koupelna s vanou a WC, 1x koupelna se sprchovým koutem,
2x samostatné WC, 2x technická místnost, předzahrádka přístupná s terasy z obývacího pokoje, 2x parkovací stání před domem.
Kolaudace 2025.

Jedná se formu družstevního bydlení (družstevní byt) bez nutnosti prokazovat příjmy – po zaplacení za převod členského podílu cenu bytu dále splácíte formou měsíční anuitní splátky, spojené s poplatky za byt měsíční platbou včetně poplatků a záloha na služby: 47 931,-Kč.
Po splacení anuity lze byt převést do osobního vlastnictví, a to i formou mimořádné splátky.

Podrobnosti ke splátkám a družstvu zašleme na vyžádání.

Cena
Cena na vyžádání Spočítat hypotéku
Aktualizováno
25. 3. 2026
Adresa
Školní, Odolena Voda, Dolínek
ID
0057
Stavba
Cihlová
Stav objektu
Novostavba
Patro
1.
Vlastnictví
Družstevní
Užitná plocha
100 m2
Převod do OV
Parkování

Máte zájem o tuto nemovitost?

Tímto, v souladu s nařízením Evropského parlamentu a Rady (EU) 2016/679, v platném znění, prohlašuji, že mi je alespoň 16 let a uděluji tak svůj souhlas se zpracováním zadaných údajů (jméno, telefon, e-mail, ip adresa) společnosti B3 Technology, s.r.o., IČ: 07330600, se sídlem Novostavby 126/23, 435 11 Lom (správce dat), za účelem předání dotazu z tohoto formuláře Vámi vybranému inzerentovi a zpětného kontaktování mé osoby. Osobní údaje bude správce zpracovávat manuálně i automaticky přímo prostřednictvím svých zaměstnanců. Informace předané tímto formulářem budou uloženy v databázi správce maximálně po dobu 10 let. Odvolání souhlasu s uložením a zpracováním poskytnutých dat lze e-mailem na info@realitymat.cz. V případě podezření na neoprávněné použití Vámi poskytnutých údajů máte právo předat podnět k šetření Úřadu pro ochranu osobních údajů. Více informací
Chystáte se prodat nemovitost?
Pomůžeme Vám!

Kontakt

Miloš Snak

Miloš Snak

Přihlášení k odběru

Nenechte si ujít nejnovější nabídky prodeje bytů 4+kk v Odoleně Vodě.

Podobné nabídky