Pronájem bytu 3+1, Dolní Branná, 60 m2 (ID: 2113394)

Dolní Branná


11 000 Kč /za měsíc
Získejte výhodnou HYPOTÉKU
Regionální dodavatelé v Dolní Branné

Popis

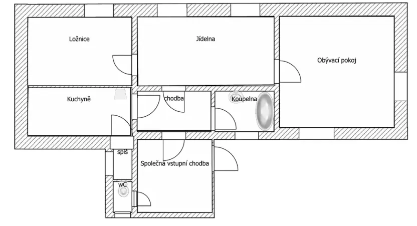
Nabízíme k pronájmu prostorný byt o dispozici 3+1, který se nachází v malebné obci Dolní Branná. Byt je v přízemí staršího cihlového domu. Nabízí užitnou plochu o velikosti cca 60 m². Byt disponuje kuchyní se spižírnou, prostornou jídelnou a k ní přiléhající obývací pokoj a ložnice. Je zde koupelna s vanou a toaleta přístupná z chodby.

Byt je zařízen novou kuchyňskou linkou a zánovním sporákem. Byt je vytápěn kotlem na tuhá paliva a v koupelně je ohřívač TUV.

V rámci pronájmu je k dispozici také parkovací místo a sklepní prostor, což zajišťuje dostatek úložného místa. Dále je možno využívat sdílenou zahradu s nájemníky z vedlejšího domu.

Byt je připraven k okamžitému nastěhování. Nájemné bez elektřiny je 11.000,- měsíčně. Při podpisu smlouvy je splatná kauce ve výši 3 měsíčních nájmů.

Dolní Branná má dobrou občanskou vybavenost, je zde Základní a Mateřská škola, několik obchodů a další služby.

Prohlídky jsou možné po předchozí domluvě. Pro více informací o této nemovitosti nebo sjednání prohlídky nás prosím kontaktujte nebo vyplňte níže uvedený formulář, rádi Vám pomůžeme.

Cena
11 000 Kč /za měsíc
Aktualizováno
25. 3. 2026
Adresa
Dolní Branná
Stavba
Cihlová
Stav objektu
Dobrý
Patro
1.
Vlastnictví
Osobní
Užitná plocha
60 m2
Sklep
Parkování

Máte zájem o tuto nemovitost?

Tímto, v souladu s nařízením Evropského parlamentu a Rady (EU) 2016/679, v platném znění, prohlašuji, že mi je alespoň 16 let a uděluji tak svůj souhlas se zpracováním zadaných údajů (jméno, telefon, e-mail, ip adresa) společnosti B3 Technology, s.r.o., IČ: 07330600, se sídlem Novostavby 126/23, 435 11 Lom (správce dat), za účelem předání dotazu z tohoto formuláře Vámi vybranému inzerentovi a zpětného kontaktování mé osoby. Osobní údaje bude správce zpracovávat manuálně i automaticky přímo prostřednictvím svých zaměstnanců. Informace předané tímto formulářem budou uloženy v databázi správce maximálně po dobu 10 let. Odvolání souhlasu s uložením a zpracováním poskytnutých dat lze e-mailem na info@realitymat.cz. V případě podezření na neoprávněné použití Vámi poskytnutých údajů máte právo předat podnět k šetření Úřadu pro ochranu osobních údajů. Více informací
Chystáte se prodat nemovitost?
Pomůžeme Vám!

Kontakt

Blanka Kubová

Blanka Kubová

Přihlášení k odběru

Nenechte si ujít nejnovější nabídky pronájmu bytů 3+1 v Dolní Branné.

Podobné nabídky