Prodej bytu 4+kk, Třešť, Nádražní, 82 m2 (ID: 2113347)

Nádražní, Třešť


5 358 000 Kč /za nemovitost
HYPOTÉKA od 23 947 Kč /měs.
Regionální dodavatelé v Třešti

Popis

Prodej nadstandardního bytu 4+kk s velkou terasou 55m² v Třešti u Jihlavy. Přímo od developera bez provize RK.

Hledáte moderní bydlení s pocitem soukromí a komfortem rodinného domu?
Máme pro vás jedinečnou příležitost: nový byt 4+kk v nejvyšším podlaží s prostornou terasou, odkud si vychutnáte slunce i klidné výhledy do zeleně.

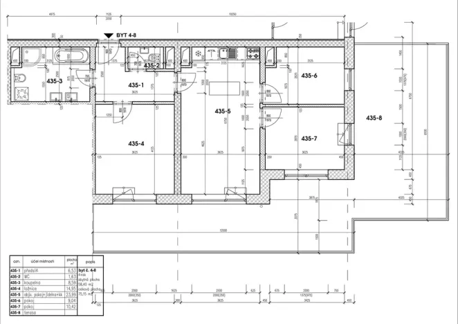
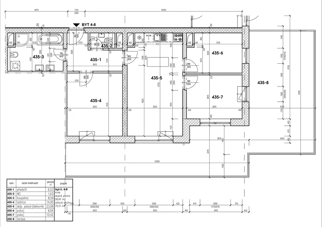
Díky výměře 82m2 splní tento byt všechna naše očekávání: koupelna s vanou a sprch. koutem o výměře 8m2, prostorné pokoje a především nádherná terasa.

Již při vstupu do bytu oceníme prostornou předsíň o výměře 6,5m2, kde lze pohodlně odložit svršky. Dále nás zaujme obývací pokoj s kuch. koutem o výměře 24m2 a obytné místnosti, z nichž tři jsou zakončené velkým francouzským oknem se vstupem na terasu. Terasa o výměře 55m2 plnohodnotně zastoupí zahradní posezení u rodinného domu a ocení ji celá rodina.

Byt je právě zkolaudovaný. Kupující si ještě může vybrat dekor vinylové podlahy a interiérové dveře zn. Sapeli z našich standardů. Koupelna a WC jsou již vydlážděné a vybavené zařizovacími předměty (vana, sprch. kout, dvojumyvadlo, toaleta 1x v koupelně, 1x samostatné WC). Toto všechno je v ceně bytu. Chybí pouze kuch. linka, která není v ceně bytu a kterou si kupující vybere a nainstaluje podle svého vkusu a fin. možností.

Parkovat lze bezplatně před domem, nebo lze koupit garáž nebo parkovací stání ve vnitrobloku domu. V blízkosti domu je vlaková i autobusová zastávka, odkud se pohodlně dostanete do nedaleké Jihlavy nebo druhým směrem do Telče a Dačic.

Pracujete v Jihlavě a sháníte bydlení? Poptejte u nás v Třešti cenově dostupný byt. Pořiďte si místo malého bytu v hektickém městě větší byt na klidném místě v Třešti v dosahu krajského města. Do Jihlavy je to autem 20-25min. pohodové jízdy.

Třešť nabízí výbornou občanskou vybavenost. V supermarketech Albert a Penny lze nakoupit o víkendech, náměstí a jeho okolí překvapí množstvím malých obchůdků, restaurací a kavárniček. Rodiče s dětmi budou vděční za školu, školku, odbornou a střední školu. Dále zde funguje poliklinika, kino, přírodní koupaliště Malvíny, cyklostezky, zachovalé lesy....

Proč právě tento byt?

✔ výjimečná terasa 55m² a rozloha bytu 82m2
✔ dostupná cena
✔ klidná lokalita s perfektní dostupností

Zavolejte a domluvte si nezávaznou prohlídku. Rádi vám byt ukážeme.

Cena
5 358 000 Kč /za nemovitost Spočítat hypotéku
Aktualizováno
25. 3. 2026
Adresa
Nádražní, Třešť
Stavba
Cihlová
Stav objektu
Novostavba
Patro
4.
Vlastnictví
Osobní
Užitná plocha
82 m2
Terasa

Máte zájem o tuto nemovitost?

Tímto, v souladu s nařízením Evropského parlamentu a Rady (EU) 2016/679, v platném znění, prohlašuji, že mi je alespoň 16 let a uděluji tak svůj souhlas se zpracováním zadaných údajů (jméno, telefon, e-mail, ip adresa) společnosti B3 Technology, s.r.o., IČ: 07330600, se sídlem Novostavby 126/23, 435 11 Lom (správce dat), za účelem předání dotazu z tohoto formuláře Vámi vybranému inzerentovi a zpětného kontaktování mé osoby. Osobní údaje bude správce zpracovávat manuálně i automaticky přímo prostřednictvím svých zaměstnanců. Informace předané tímto formulářem budou uloženy v databázi správce maximálně po dobu 10 let. Odvolání souhlasu s uložením a zpracováním poskytnutých dat lze e-mailem na info@realitymat.cz. V případě podezření na neoprávněné použití Vámi poskytnutých údajů máte právo předat podnět k šetření Úřadu pro ochranu osobních údajů. Více informací
Chystáte se prodat nemovitost?
Pomůžeme Vám!

Kontakt

Pavla Semrádová

Pavla Semrádová

Přihlášení k odběru

Nenechte si ujít nejnovější nabídky prodeje bytů 4+kk v Třešti.

Podobné nabídky