Pronájem obchodního prostoru, Tovačov, 237 m2

Tovačov


40 000 Kč /za měsíc
Získejte výhodnou HYPOTÉKU

(+ elekřina 6.000,-Kč, provize RK ve výši 1 nájmu + 21%DPH)


Regionální dodavatelé v Tovačově

Pojištění a finance

Popis

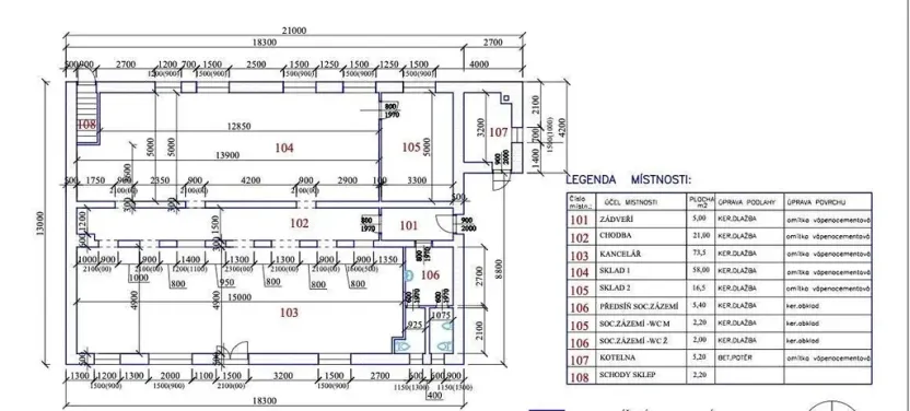
Elite real service s.r.o. Vám v zastoupení majitele nabízí pronájem nově zrekonstruovaných nebytových prostor o celkové výměře 237 m2 v uzavřeného areálu u frekventované hlavní komunikace v Tovačově, na trase Prostějov - Přerov s možností umístění světelné reklamy přímo na budově. Prostory jsou rozděleny na 2 větší místnosti, kancelář a sociální zázemí (WC muži/ženy, sprcha). Na podlahách v celém prostoru je keramická dlažba, okna plastová. Topení ústřední, kotel na tuhá paliva je umístěn v kotelně. Vytápění je možné přepojit na elektrokotel. Stropy jsou tepelně zaizolovány, střešní krytina trapézový plech. Elektroinstalace 220/380 V. Vhodné využití jako kancelářské, prodejní nebo skladovací prostory, lehká výroba, zahradnictví, kamenictví, sídlo firmy. Parkování je možné přímo před vstupem do budovy. Celý areál je oplocen, opatřen uzamykatelnou bránou. Měsíční zálohy na elektřinu 6.000,-Kč (může být upraveno dle využití prostor). Pitná voda z vlastní studny. K prostorům je možné si pronajmout zpevněnou venkovní plochu okolo budovy o výměře cca 1.900 m2 za 25.000,-Kč/měsíc (není podmínkou). Ze zpevněné venkovní plochy je možno pronajmout i menší část - cena dohodou. Dále je možné si k prostorům pronajmou i samostatné stavební buňky sloužící jako kancelář o výměře 30m2 (6m x 5m) s venkovní zpevněnou plochou za 15.000,-Kč/měsíc (není podmínkou). Kauce ve výši 3 nájmů. Největší nabídku novostaveb - nových bytů, byty na prodej, byty k pronájmu a informace o naši dceřinné společnosti - naleznete na našich webových stránkách.

Cena
40 000 Kč /za měsíc
Poznámka k ceně
+ elekřina 6.000,-Kč, provize RK ve výši 1 nájmu + 21%DPH
Aktualizováno
24. 3. 2026
Adresa
Tovačov
ID
N06696
Stavba
Cihlová
Stav objektu
Po rekonstrukci
Patro
1.
Užitná plocha
237 m2
Zastavěná plocha
249 m2
Třída energetické náročnosti
G - Mimořádně nehospodárná
Parkování

Máte zájem o tuto nemovitost?

Tímto, v souladu s nařízením Evropského parlamentu a Rady (EU) 2016/679, v platném znění, prohlašuji, že mi je alespoň 16 let a uděluji tak svůj souhlas se zpracováním zadaných údajů (jméno, telefon, e-mail, ip adresa) společnosti B3 Technology, s.r.o., IČ: 07330600, se sídlem Novostavby 126/23, 435 11 Lom (správce dat), za účelem předání dotazu z tohoto formuláře Vámi vybranému inzerentovi a zpětného kontaktování mé osoby. Osobní údaje bude správce zpracovávat manuálně i automaticky přímo prostřednictvím svých zaměstnanců. Informace předané tímto formulářem budou uloženy v databázi správce maximálně po dobu 10 let. Odvolání souhlasu s uložením a zpracováním poskytnutých dat lze e-mailem na info@realitymat.cz. V případě podezření na neoprávněné použití Vámi poskytnutých údajů máte právo předat podnět k šetření Úřadu pro ochranu osobních údajů. Více informací
Chystáte se prodat nemovitost?
Pomůžeme Vám!
Theleadway banner

Kontakt

Radka Krajcová Mgr. Zdeněk Gaďourek

Radka Krajcová Mgr. Zdeněk Gaďourek

Přihlášení k odběru

Nenechte si ujít nejnovější nabídky pronájmu obchodních prostor v Tovačově.

Podobné nabídky