Prodej bytu 4+kk, Praha - Žižkov, U kněžské louky, 81 m2

U kněžské louky, Praha 3


11 997 000 Kč /za nemovitost
HYPOTÉKA od 53 619 Kč /měs.

(vč. provize a právního servisu)


Regionální dodavatelé v Praze 3

Stěhovací služby

Výkup a prodej starého nábytku

Popis

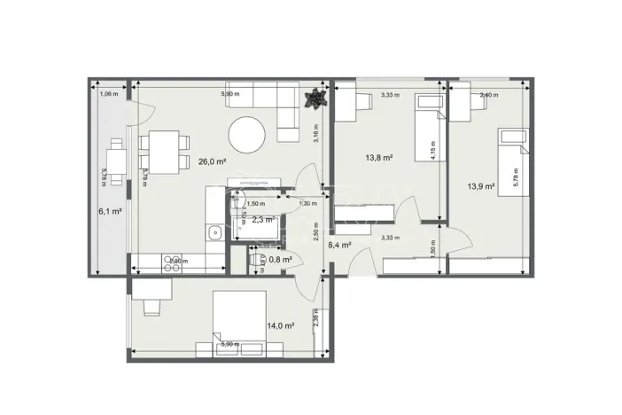
Pokud hledáte prostorné bydlení pro rodinu v širším centru Prahy, tahle nabídka by vás mohla zaujmout. Tento kompletně zrekonstruovaný byt v osobním vlastnictví o dispozici 4+kk o podlahové ploše 81 m2 s lodžií o velikosti dalších 6 m2 se nachází v 7. nadzemním podlaží udržovaného panelového domu v lokalitě Prahy 3 – Žižkov, v ulici U Kněžské louky, a nabízí ideální kombinaci komfortu, prostoru a skvělé dostupnosti do centra města.

Dominantou bytu je světlý obývací pokoj s moderním kuchyňským koutem a přímým vstupem na lodžii. Byt dále disponuje třemi samostatnými neprůchozími pokoji o velikosti cca 14 m², které poskytují dostatek soukromí pro každého člena rodiny.

Celý byt prošel kompletní rekonstrukcí ve světlých neutrálních tónech, které podtrhují jeho vzdušnost a moderní charakter. Koupelna je s vanou a sprchovou zástěnou, toaleta je oddělena.

Dům je ve velmi dobrém stavu, má dva výtahy a fungující SVJ bez dluhů. Předpis měsíčních záloh činí cca 5 870 Kč + elektřina.

K bytu náleží sklep. Velkým benefitem je také možnost dokoupení samostatné garáže přímo v domě za částku 1 mil. Kč.

Lokalita nabízí výbornou dopravní dostupnost i kompletní občanskou vybavenost. Tramvajová zastávka Kněžská luka je přímo před domem, takže centrum města máte na dosah. V okolí najdete školy, školky, restaurace, dětská hřiště i parky pro volnočasové aktivity.

Pokud vás tato nabídka zaujala, neváhejte mne kontaktovat a domluvte si osobní prohlídku.

Cena
11 997 000 Kč /za nemovitost Spočítat hypotéku
Poznámka k ceně
vč. provize a právního servisu
Aktualizováno
23. 3. 2026
Adresa
U kněžské louky, Praha 3
ID
19235
Stavba
Panelová
Stav objektu
Po rekonstrukci
Patro
7. z 10
Vlastnictví
Osobní
Užitná plocha
81 m2
Podlahová plocha
87 m2
Třída energetické náročnosti
C - Úsporná
Plyn
Plynovod
Odpad
Veřejná kanalizace
Komunikace
Asfaltová
Telekomunikace
Internet
Doprava
MHD
Voda
Vodovod
Sklep
Lodžie
Výtah

Máte zájem o tuto nemovitost?

Tímto, v souladu s nařízením Evropského parlamentu a Rady (EU) 2016/679, v platném znění, prohlašuji, že mi je alespoň 16 let a uděluji tak svůj souhlas se zpracováním zadaných údajů (jméno, telefon, e-mail, ip adresa) společnosti B3 Technology, s.r.o., IČ: 07330600, se sídlem Novostavby 126/23, 435 11 Lom (správce dat), za účelem předání dotazu z tohoto formuláře Vámi vybranému inzerentovi a zpětného kontaktování mé osoby. Osobní údaje bude správce zpracovávat manuálně i automaticky přímo prostřednictvím svých zaměstnanců. Informace předané tímto formulářem budou uloženy v databázi správce maximálně po dobu 10 let. Odvolání souhlasu s uložením a zpracováním poskytnutých dat lze e-mailem na info@realitymat.cz. V případě podezření na neoprávněné použití Vámi poskytnutých údajů máte právo předat podnět k šetření Úřadu pro ochranu osobních údajů. Více informací
Chystáte se prodat nemovitost?
Pomůžeme Vám!

Kontakt

Petr Hornát

Petr Hornát

Přihlášení k odběru

Nenechte si ujít nejnovější nabídky prodeje bytů 4+kk v Praze 3.

Podobné nabídky