Prodej bytu 3+kk, Zubří, Hlavní, 80 m2

Hlavní, Zubří


5 895 000 Kč
HYPOTÉKA od 26 347 Kč /měs.

(včetně provize RK)


Regionální dodavatelé v Zubří

Pojištění a finance

Popis

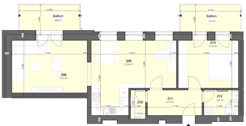
Nabízíme k prodeji jeden z bytů, který je součástí projektu Zubří 823. Nabízený byt 3+kk o celkové ploše 80 m², který má podlahovou plochu 66,1 m² + balkón o ploše 7,1 m² a druhý balkón o ploše 6,8 m² , je navržen s důrazem na funkčnost, přirozené světlo a pohodlí. Samotná jednotka je orientována na jižní stranu a nachází se ve druhém nadpodlaží bytového domu. Samozřejmostí je moderní vybavení, kvalitní podlahy, keramické obklady, sanita i příprava na kuchyňskou linku. Otop bytu je řešen podlahovým vytápěním. Součástí bytu jsou dva balkony s krásným výhledem, které poskytnou příjemné místo pro odpočinek či ranní kávu. K bytové jednotce náleží i jedno parkovací stání.

Jednotka se skládá ze vstupní chodby, koupelny, samostatného WC, pokoje s kuchyňským koutem a dvou samostatných pokojů s výstupy na balkony. K bytu náleží komora – sklep o ploše 2,2 m². V budově jsou umístěny dva kondenzační kotle, které se starají o dodávku teplé vody a vytápěni objektu. Pro podporu teplé vody a podlahového topení bude v objektu instalován beztlaký solární systém včetně 3 akumulačních nádob.

Bytový dům se nachází na adrese: Hlavní 823, Zubří, v Chráněné krajinné oblasti Moravskoslezské Beskydy, asi 3 km západně od Rožnova pod Radhoštěm. Zubří se rozkládá v blízkosti Rožnovské Bečvy a nabízí především zeleň a přírodu. Jsou zde k dispozici ubytovací i restaurační zařízení, kino, venkovní koupaliště, venkovní sportoviště, sportovní krytá hala, ale i základní či mateřská škola nebo autobusová i vlaková zastávka

Lokalita je vhodná pro všechny, kteří hledají moderní bydlení na dosah přírody, v klidné lokalitě, ale zároveň s dobrou dostupností do okolních měst. Do Rožnova pod Radhoštěm je možné dojet autem za 5 minut, do Valašského Meziříčí za 10 minut.

Projekt nabízí moderní, pohodlné a dostupné bydlení v blízkosti malebného města Rožnov pod Radhoštěm. Tento nový bytový dům je ideální volbou jak pro jednotlivce a páry, tak i pro mladé rodiny, seniory či investory hledající atraktivní nemovitost v žádané lokalitě. Projekt Zubří 823 kombinuje moderní architekturu, kvalitní materiály a praktické dispozice jednotek s výhodami městského života a blízkostí přírody. Vše, co potřebujete ke spokojenému bydlení, máte doslova na dosah ruky. Uveřejněné vizualizace a jiná vyobrazení jsou pouze ilustrační. Mohou se měnit, jsou nezávazné a nepředstavují nabídku ani návrh na uzavření smlouvy. V nabídce jsou i byty o dispozicích 2+kk, 2+1, 3+kk a 3+1. Financování vám pomůže vyřešit náš úvěrový specialista.

Cena
5 895 000 Kč Spočítat hypotéku
Poznámka k ceně
včetně provize RK
Aktualizováno
23. 3. 2026
Adresa
Hlavní, Zubří
ID
008541
Stavba
Cihlová
Stav objektu
Novostavba
Lokalita objektu
Centrum obce
Vlastnictví
Osobní
Užitná plocha
80 m2
Třída energetické náročnosti
B - Velmi úsporná

Máte zájem o tuto nemovitost?

Tímto, v souladu s nařízením Evropského parlamentu a Rady (EU) 2016/679, v platném znění, prohlašuji, že mi je alespoň 16 let a uděluji tak svůj souhlas se zpracováním zadaných údajů (jméno, telefon, e-mail, ip adresa) společnosti B3 Technology, s.r.o., IČ: 07330600, se sídlem Novostavby 126/23, 435 11 Lom (správce dat), za účelem předání dotazu z tohoto formuláře Vámi vybranému inzerentovi a zpětného kontaktování mé osoby. Osobní údaje bude správce zpracovávat manuálně i automaticky přímo prostřednictvím svých zaměstnanců. Informace předané tímto formulářem budou uloženy v databázi správce maximálně po dobu 10 let. Odvolání souhlasu s uložením a zpracováním poskytnutých dat lze e-mailem na info@realitymat.cz. V případě podezření na neoprávněné použití Vámi poskytnutých údajů máte právo předat podnět k šetření Úřadu pro ochranu osobních údajů. Více informací
Chystáte se prodat nemovitost?
Pomůžeme Vám!
Theleadway banner

Kontakt

Realitní kancelář AZ s.r.o.

Realitní kancelář AZ s.r.o.

Přihlášení k odběru

Nenechte si ujít nejnovější nabídky prodeje bytů 3+kk v Zubří (okr. Vsetín).

Podobné nabídky