Pronájem bytu 3+1, Vsetín, Mládí, 75 m2

Mládí, Vsetín


18 500 Kč /za měsíc
Získejte výhodnou HYPOTÉKU
Regionální dodavatelé v Vsetíně

Popis

Ráda Vás provedu a představím Vám k pronájmu nezařízený byt v atraktivní lokalitě Vsetína – ulice Mládí.

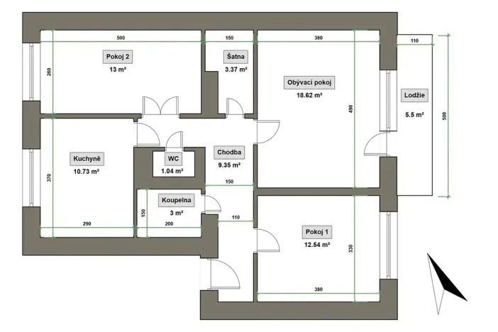
Byt o výměře cca 72m² je v osobním vlastnictví, v původním stavu a nachází se ve 2. nadzemním podlaží panelového domu s výtahem. Díky své dispozici působí velmi prostorně a vzdušně. Nabízí tři neprůchozí pokoje, kuchyni vybavenou spotřebiči s jídelnou, koupelnu s vanou, samostatné WC, šatnu v bytě a praktickou předsíň s úložnými prostory.

K bytu náleží sklepní kóje. Parkování je zajištěno na přilehlém parkovišti přímo u domu.
Výhled do zeleně a na dětské hřiště je velkou výhodou tohoto pěkného bytu.

Bytový dům je po revitalizaci. Bydlení podtrhuje umístění nedaleko centra v blízkosti je i zastávky MHD.

Měsíční nájemné činí 18 000,-Kč včetně služeb, elektrické energie, plynu. Internet není zahrnut v ceně nájmu. Majitel požaduje vratnou jistotu ve výši dvou měsíčních nájmů (2× 18 000,- Kč). Za RK výše jednoho nájmu (18 000,-Kč).

Byt je volný a připraven k okamžitému nastěhování.
Prohlídky jsou možné po předchozí domluvě s makléřkou Martinou. Ráda Vás bytem osobně provedu.

Cena
18 500 Kč /za měsíc
Náklady na bydlení
6500
Aktualizováno
20. 3. 2026
Adresa
Mládí, Vsetín
Stavba
Panelová
Stav objektu
Před rekonstrukcí
Patro
3.
Vlastnictví
Osobní
Užitná plocha
75 m2
Sklep
Lodžie

Máte zájem o tuto nemovitost?

Tímto, v souladu s nařízením Evropského parlamentu a Rady (EU) 2016/679, v platném znění, prohlašuji, že mi je alespoň 16 let a uděluji tak svůj souhlas se zpracováním zadaných údajů (jméno, telefon, e-mail, ip adresa) společnosti B3 Technology, s.r.o., IČ: 07330600, se sídlem Novostavby 126/23, 435 11 Lom (správce dat), za účelem předání dotazu z tohoto formuláře Vámi vybranému inzerentovi a zpětného kontaktování mé osoby. Osobní údaje bude správce zpracovávat manuálně i automaticky přímo prostřednictvím svých zaměstnanců. Informace předané tímto formulářem budou uloženy v databázi správce maximálně po dobu 10 let. Odvolání souhlasu s uložením a zpracováním poskytnutých dat lze e-mailem na info@realitymat.cz. V případě podezření na neoprávněné použití Vámi poskytnutých údajů máte právo předat podnět k šetření Úřadu pro ochranu osobních údajů. Více informací
Chystáte se prodat nemovitost?
Pomůžeme Vám!

Kontakt

Martina Sušňová

Martina Sušňová

Přihlášení k odběru

Nenechte si ujít nejnovější nabídky pronájmu bytů 3+1 v Vsetíně.

Podobné nabídky