Prodej vícegeneračního domu, Nový Bor, Skalická, 450 m2

Skalická, Nový Bor


12 500 000 Kč /za nemovitost
HYPOTÉKA od 55 867 Kč /měs.
Regionální dodavatelé v Novém Boru

Rekonstrukce

Úklidové služby

Pojištění a finance

Popis

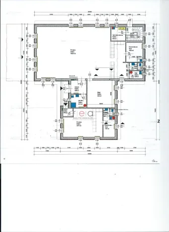
Prodej víceúčelového domu s nebytovými i bytovými prostory v okrajové části Nového Boru s celkovou užitnou plochou 450m2, který díky svému dispozičnímu řešení nabízí široké možnosti využití.
V přízemí domu jsou dva prodejní prostory 150m2 a 40m2 + zázemí.
V patře jsou připraveny k dobudování 3 bytové jednotky a to 2+1, 2+1 a 2+kk.
Nemovitost je vhodná zejména pro bydlení a podnikání, či sídlo firmy s ubytováním. Alternativně může sloužit také jako komfortní vícegenerační rodinné bydlení.
K domu náleží zahrada o výměře 521m2.
Jedná se o novostavbu s nedokončenými vnitřními stavebními pracemi.
Všechny inženýrské sítě jsou na hranici pozemku k připojení.
K dispozici je materiál k dostavbě interiérů - kari sítě, polyesterny do izolací, sádrokartony, profily, vodovodní a kanalizační potrubí, ...
Základní informace uvádíme orientačně, proto doporučujeme osobní prohlídku – teprve na místě je zjevné, proč dům dává ekonomicky i prakticky smysl.
Bližší informace v RK.

Cena
12 500 000 Kč /za nemovitost Spočítat hypotéku
Aktualizováno
17. 3. 2026
Adresa
Skalická, Nový Bor
ID
00260
Stavba
Cihlová
Stav objektu
Ve výstavbě
Druh objektu
Samostatný
Lokalita objektu
Klidná část obce
Užitná plocha
450 m2
Zastavěná plocha
300 m2
Podlahová plocha
1163 m2
Plocha pozemku
1163 m2
Třída energetické náročnosti
G - Mimořádně nehospodárná
Výtah
Bezbarierový přístup

Máte zájem o tuto nemovitost?

Tímto, v souladu s nařízením Evropského parlamentu a Rady (EU) 2016/679, v platném znění, prohlašuji, že mi je alespoň 16 let a uděluji tak svůj souhlas se zpracováním zadaných údajů (jméno, telefon, e-mail, ip adresa) společnosti B3 Technology, s.r.o., IČ: 07330600, se sídlem Novostavby 126/23, 435 11 Lom (správce dat), za účelem předání dotazu z tohoto formuláře Vámi vybranému inzerentovi a zpětného kontaktování mé osoby. Osobní údaje bude správce zpracovávat manuálně i automaticky přímo prostřednictvím svých zaměstnanců. Informace předané tímto formulářem budou uloženy v databázi správce maximálně po dobu 10 let. Odvolání souhlasu s uložením a zpracováním poskytnutých dat lze e-mailem na info@realitymat.cz. V případě podezření na neoprávněné použití Vámi poskytnutých údajů máte právo předat podnět k šetření Úřadu pro ochranu osobních údajů. Více informací
Chystáte se prodat nemovitost?
Pomůžeme Vám!
Theleadway banner

Kontakt

Jaroslav Lebruška

Jaroslav Lebruška

Přihlášení k odběru

Nenechte si ujít nejnovější nabídky prodeje vícegeneračních domů v Novém Boru.

Tipy Realitymatu

Podobné nabídky