Prodej bytu 2+1, Ostrava - Zábřeh, Žoluděvova, 49 m2

Žoluděvova, Ostrava, Zábřeh


3 139 000 Kč /za nemovitost
HYPOTÉKA od 14 029 Kč /měs.

(Cena je uvedena včetně veškerých poplatků RK i právního servisu)


Regionální dodavatelé v Ostravě

Popis

Pokud hledáte vhodný byt ihned k nastěhování či úpravám dle vlastní představy, neváhejte a do Ostravy pospíchejte!
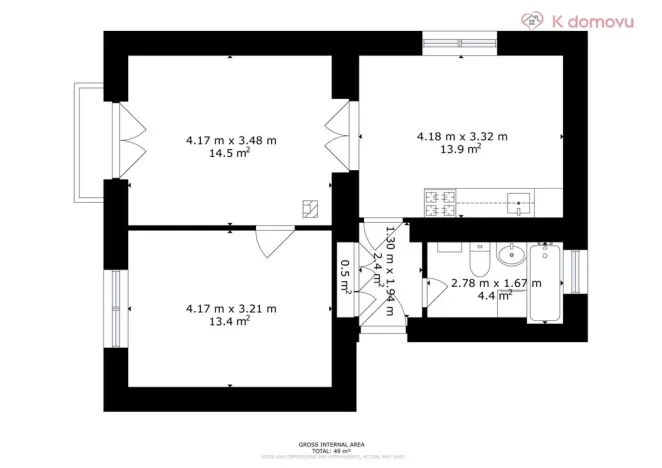
Byt, který vám nabízíme, se nachází v žádané lokalitě Ostrava – Zábřeh, Žoluděvova ulice. Celková výměra nemovitosti činí 53,15m2, včetně 2 sklepů v suterénu domu, a nachází se ve 2.NP cihlového bytového domu. Byt je v původním, ale velmi dobře udržovaném stavu. O to více se zde nabízí možnost si ho přetvořit k obrazu svému a dle vlastních představ. Jeho rohová poloha poskytuje dostatek slunečních paprsků a světla po celý den.
Nemovitost byla až doposud celoročně a plnohodnotně využívána, udržována v čistotě a pořádku. Dispozice bytu 2+1 o velikosti cca 49,35m2 disponuje vstupní chodbou, kuchyní s jídelnou, ložnicí a obývacím pokojem s francouzským oknem, které umožňuje větší prostor pro světlo z jihozápadní strany. Na chodbě je pak vestavěná skříň a koupelna s WC. Dva sklepy mají celkem 3,80m2. Pro svou dispozici je byt vhodný i jako investiční příležitost k pronájmu. V domě jsou veškeré IS a vytápění je řešeno plynovými tělesy Mora a v koupelně je bojler napojen na plynovou karmu.
Bytový dům se nachází v klidné zóně, a tak může být určen i pro zájemce, kteří dokáží ocenit klid a pohodlné bydlení s dobrou adresou. Nedaleko domu jsou sportovní areály, obchody, lékárna, restaurace, pošta, MHD, MŠ i ZŠ. Blízký Bělský les nabízí dostatek prostoru k odpočinku, procházkám i sportovním aktivitám. Nemovitost se tak nachází v místě s kompletní občanskou vybaveností a dostupnou infrastrukturou, která podtrhuje atraktivitu tohoto místa, a nabízí tak i možnost nadstandardního bydlení náročnějším klientům. Výbornou dopravní dostupnost zajišťuje autobusová i tramvajová zastávka v blízkosti domu. A pokud by byl zájem, bylo by možné pro vašeho ocelového mazlíka domluvit i stávající nájemní garážování.
Byt je k dispozici po dohodě a prohlídky jsou možné po domluvě, jelikož se v bytě ještě bydlí. Uvedené výměry jsou orientační. V případě více zájemců bude nemovitost prodána nejlepší nabídce a majitel si vyhrazuje právo vybrat kupujícího na základě jim zvolených kritérií. Veškeré zveřejněné údaje obsažené v tomto inzerátu mají pouze informativní charakter a nejsou nabídkou ve smyslu § 1731 nebo § 1732 občanského zákoníku, ani se nejedná o veřejný příslib dle § 1733 občanského zákoníku.
Na koupi bytu je možné využít i financování hypotečním úvěrem, se kterým Vám rádi pomůžeme.
Podrobnější informace k nemovitosti i možnostem financování vám sdělí makléřka na prohlídce, kterou vřele doporučuje.
Cena je uvedena včetně všech poplatků, právního servisu i provize RK.

Cena
3 139 000 Kč /za nemovitost Spočítat hypotéku
Poznámka k ceně
Cena je uvedena včetně veškerých poplatků RK i právního servisu
Aktualizováno
17. 3. 2026
Adresa
Žoluděvova, Ostrava, Zábřeh
ID
2026-152
Stavba
Cihlová
Stav objektu
Dobrý
Patro
2. z 4
Typ objektu
Patrový
Lokalita objektu
Sídliště
Vlastnictví
Osobní
Užitná plocha
49 m2
Podlahová plocha
49 m2
Třída energetické náročnosti
D - Méně úsporná
Ukazatel energetické náročnosti
182 kWh/m2 za rok
Elektřina
230V
Plyn
Plynovod
Odpad
Veřejná kanalizace
Topení
Lokální plynové
Komunikace
Asfaltová
Doprava
Vlak, Dálnice, Silnice, MHD, Autobus
Voda
Místní zdroj vody
Topné těleso
Jiné
Zdroj topení
Plynový kotel
Zdroj teplé vody
Plynová karma
Sklep
Výtah
Bezbarierový přístup

Máte zájem o tuto nemovitost?

Tímto, v souladu s nařízením Evropského parlamentu a Rady (EU) 2016/679, v platném znění, prohlašuji, že mi je alespoň 16 let a uděluji tak svůj souhlas se zpracováním zadaných údajů (jméno, telefon, e-mail, ip adresa) společnosti B3 Technology, s.r.o., IČ: 07330600, se sídlem Novostavby 126/23, 435 11 Lom (správce dat), za účelem předání dotazu z tohoto formuláře Vámi vybranému inzerentovi a zpětného kontaktování mé osoby. Osobní údaje bude správce zpracovávat manuálně i automaticky přímo prostřednictvím svých zaměstnanců. Informace předané tímto formulářem budou uloženy v databázi správce maximálně po dobu 10 let. Odvolání souhlasu s uložením a zpracováním poskytnutých dat lze e-mailem na info@realitymat.cz. V případě podezření na neoprávněné použití Vámi poskytnutých údajů máte právo předat podnět k šetření Úřadu pro ochranu osobních údajů. Více informací
Chystáte se prodat nemovitost?
Pomůžeme Vám!

Kontakt

Michaela Konvalinková

Michaela Konvalinková

Přihlášení k odběru

Nenechte si ujít nejnovější nabídky prodeje bytů 2+1 v Ostravě.

Podobné nabídky