Prodej činžovního domu, Chrudim, Soukenická, 350 m2 (ID: 2104795)

Soukenická, Chrudim II


19 750 000 Kč /za nemovitost
HYPOTÉKA od 88 271 Kč /měs.
Regionální dodavatelé v Chrudimi

Popis

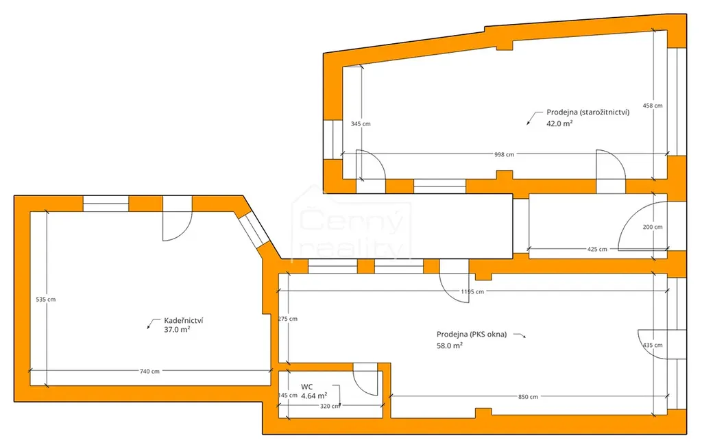
Prodej komerčního objektu (350 m2) se stabilním výnosem 4% p.a., tzn. 780 tis.Kč/ rok, resp. 65 tis./měsíc, v centru Chrudimi, na adrese, Soukenická č.p. 155, Chrudim. Jedná se o komerční objekt v centru Chrudimi, který prošel zásadní rekonstrukcí v letech 2004 - 2024. V přízemí se nachází 3 nebytové prostory, o plochách 58 m2 (pks okna), 42 m2 (starožitnictví) a 37 m2 (kadeřnictví) + dvorek 24 m2.
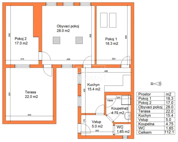
V 1.patře jsou 2 bytové jednotky 2+kk, o plochách 47 m2 a 52 m2 + společná terasa 35 m2.
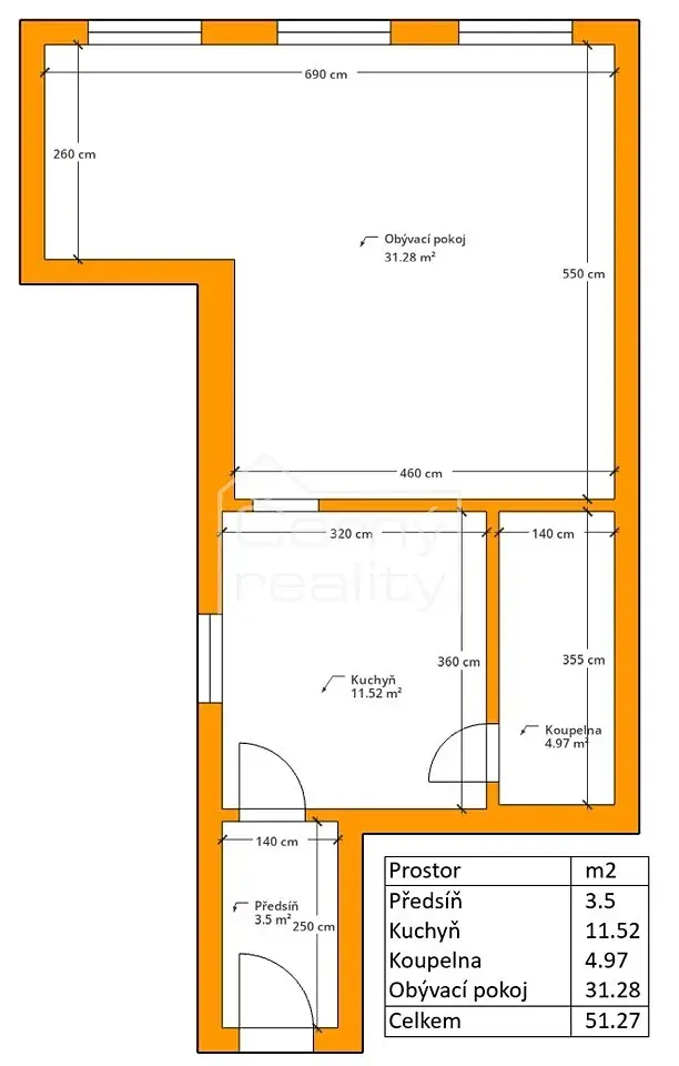
Ve 2.patře se nachází byt 3+1 o ploše 110 m2 (88 m2 byt + terasa 22 m2).
Výnos z nájemného je 760 tis.Kč/rok.

Dispozice podlaží :
1.NP :
1) PKS okna - showroom 55 m2, WC 3 m2, celkem 58 m2
2) Starožitnictví - showroom 42 m2, WC 1,5 m2 (v patře),společná umývárna 3,5 m2 (v patře)
3) Kadeřnictví - showroom 37 m2, WC 1,5 m2 (v patře), společná umývárna 3,5 m2 (v patře).
2.NP:
Byt 1+1, 47 m2 (dispozice : kuchyň 11,50 m2, vchod 2,9 m2, koupelna s WC 3,30 m2, obývací pokoj 29 m2)
Byt 1+1, 52 m2+ terasa 35 m2 (dispozice : vchod 4 m2, kuchyň s jídelnou 12,50 m2, koupelna s WC 5 m2, obývací pokoj 30,50 m2).
3.NP:
Byt 3+1, 88 m2 + terasa 22m2, (dispozice: vstup 5,5 m2, koupelna 4,75 m2, WC 1,65 m2, kuchyň s jídelnou 15,5 m2, pokoj se střešními okny 18,30 m2, obývací pokoj 28 m2, pokoj s oknem do terasy 17 m2).

Dům je v udržovaném stavu. Nachází se v atraktivní lokalitě v centru města, pod širokými schody. Celková plocha pozemku je 230 m2. Kvalitní investice se stabilním výnosem, Doporučujeme prohlídku. ID 155025.

Cena
19 750 000 Kč /za nemovitost Spočítat hypotéku
Aktualizováno
1. 4. 2026
Adresa
Soukenická, Chrudim II
ID
660
Stavba
Cihlová
Stav objektu
Velmi dobrý
Lokalita objektu
Centrum obce
Užitná plocha
350 m2
Zastavěná plocha
230 m2
Podlahová plocha
380 m2
Třída energetické náročnosti
E - Nehospodárná
Ukazatel energetické náročnosti
258 kWh/m2 za rok
Elektřina
230V
Plyn
Plynovod
Odpad
Veřejná kanalizace
Topení
Ústřední plynové
Telekomunikace
Internet
Doprava
Vlak, Dálnice, MHD, Autobus
Voda
Vodovod
Zdroj topení
Plynový kondenzační kotel

Máte zájem o tuto nemovitost?

Tímto, v souladu s nařízením Evropského parlamentu a Rady (EU) 2016/679, v platném znění, prohlašuji, že mi je alespoň 16 let a uděluji tak svůj souhlas se zpracováním zadaných údajů (jméno, telefon, e-mail, ip adresa) společnosti B3 Technology, s.r.o., IČ: 07330600, se sídlem Novostavby 126/23, 435 11 Lom (správce dat), za účelem předání dotazu z tohoto formuláře Vámi vybranému inzerentovi a zpětného kontaktování mé osoby. Osobní údaje bude správce zpracovávat manuálně i automaticky přímo prostřednictvím svých zaměstnanců. Informace předané tímto formulářem budou uloženy v databázi správce maximálně po dobu 10 let. Odvolání souhlasu s uložením a zpracováním poskytnutých dat lze e-mailem na info@realitymat.cz. V případě podezření na neoprávněné použití Vámi poskytnutých údajů máte právo předat podnět k šetření Úřadu pro ochranu osobních údajů. Více informací
Chystáte se prodat nemovitost?
Pomůžeme Vám!

Kontakt

Bc. Josef Černý

Bc. Josef Černý

Přihlášení k odběru

Nenechte si ujít nejnovější nabídky prodeje činžovních domů v Chrudimi.

Podobné nabídky