Pronájem výrobních prostor, Lišov, Hůrecká, 1109 m2

Hůrecká, Lišov


145 000 Kč /za měsíc
Získejte výhodnou HYPOTÉKU

(+ energie, včetně právního servisu)


Regionální dodavatelé v Lišově

Výkup a prodej starého nábytku

Popis

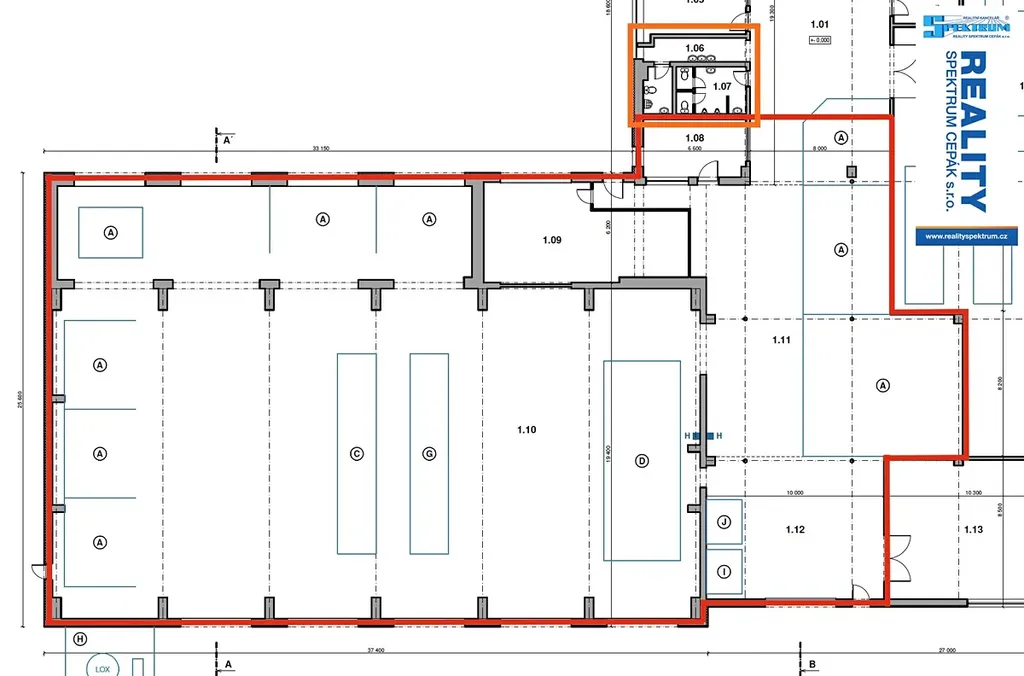
Pronájem moderních výrobních prostorů vhodných pro výrobu, skladování, opravárenské služby a další v komerčním areálu. Budova jako celek má využitelnou výměru 2.357m2 a je rozdělena na tři samostatné provozní části. Nabízíme Vám pronájem jedné části o výměře 1.109m2. V hlavní provozní hale o výměře 802m2 je mostový jeřáb s nosností 5t. Hala má 6 samostatných vjezdových i výjezdových vrat. K dispozici jsou i montážní jámy. Provozní výška haly je 7,5m. Ostatní prostory mají výšku 6m. Vjezdová vrata mají rozměr 4m šířka x 4,5m výška. Budova sloužila dříve jako servis nákladních automobilů nebo pro těžkou kovovýrobu. Součástí prostorů je samostatná kancelář. Sociální zařízení jsou v budově. Prostory jsou vytápěné moderními topidly ROBUR (možnost regulace jednotlivých sekcí). Elektrický příkon 140kW (200A), je možné i navýšení. K dispozici jsou velké venkovní manipulační plochy a parkovací plochy pro zaměstnance i návštěvy. Přístup do areálu je 24/7. Areál má stálou ostrahu a vrátnici. Možnost pronájmu dalších prostorů v areálu (informace na tel. 607 177 472). --- Nájemné: 88.000,- Kč/měs. + el. a plyn dle skutečné spotřeby. --- Provozní paušál za služby v areálu: 57.000,- Kč/měs. (voda, úklid, odpad atd.). --- Uvedené ceny jsou bez DPH.

Cena
145 000 Kč /za měsíc
Poznámka k ceně
+ energie, včetně právního servisu
Aktualizováno
16. 3. 2026
Adresa
Hůrecká, Lišov
ID
9531109 Lišov
Stavba
Cihlová
Stav objektu
Velmi dobrý
Lokalita objektu
Okraj obce
Užitná plocha
1109 m2
Třída energetické náročnosti
C - Úsporná
Ukazatel energetické náročnosti
702 kWh/m2 za rok
Elektřina
230V, 400V
Plyn
Plynovod
Odpad
Veřejná kanalizace
Komunikace
Asfaltová
Telekomunikace
Internet
Doprava
Dálnice, Silnice, Autobus
Voda
Vodovod
Topné těleso
Jiné
Zdroj topení
Jiné
Zdroj teplé vody
Bojler - elektro
Parkování

Máte zájem o tuto nemovitost?

Tímto, v souladu s nařízením Evropského parlamentu a Rady (EU) 2016/679, v platném znění, prohlašuji, že mi je alespoň 16 let a uděluji tak svůj souhlas se zpracováním zadaných údajů (jméno, telefon, e-mail, ip adresa) společnosti B3 Technology, s.r.o., IČ: 07330600, se sídlem Novostavby 126/23, 435 11 Lom (správce dat), za účelem předání dotazu z tohoto formuláře Vámi vybranému inzerentovi a zpětného kontaktování mé osoby. Osobní údaje bude správce zpracovávat manuálně i automaticky přímo prostřednictvím svých zaměstnanců. Informace předané tímto formulářem budou uloženy v databázi správce maximálně po dobu 10 let. Odvolání souhlasu s uložením a zpracováním poskytnutých dat lze e-mailem na info@realitymat.cz. V případě podezření na neoprávněné použití Vámi poskytnutých údajů máte právo předat podnět k šetření Úřadu pro ochranu osobních údajů. Více informací
Chystáte se prodat nemovitost?
Pomůžeme Vám!

Kontakt

REALITY SPEKTRUM CEPÁK s.r.o.

REALITY SPEKTRUM CEPÁK s.r.o.

Přihlášení k odběru

Nenechte si ujít nejnovější nabídky pronájmu výrobních prostor v Lišově (okr. České Budějovice).

Podobné nabídky