Prodej bytu 4+kk, Praha, Choceradská, 84 m2

Choceradská, Praha 4


10 998 000 Kč /za nemovitost
HYPOTÉKA od 49 154 Kč /měs.
Regionální dodavatelé v Praze 4

Stěhovací služby

Výkup a prodej starého nábytku

Pojištění a finance

Popis

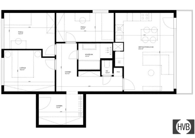
Nabízíme k prodeji světlý prostorný byt po kompletní rozsáhlé rekonstrukci včetně elektřiny o dispozici 4+kk/L o celkové výměře cca 77 m2 + velká lodžie cca 7 m2, nacházející se na adrese Choceradská, Praha 4 - Záběhlice.

Tato nemovitost, situovaná v 5. patře pečlivě udržované panelové budovy, nabízí pěkný výhled na okolí. Díky pronájmu nebytového prostoru umístěného v prvním podlaží jsou zde velmi nízké měsíční náklady.

Dispozice: velmi prostorná vstupní chodba, obývací pokoj s plně vybavenou kuchyňskou linkou, tři obytné místnosti, koupelna a sprchový kout. Oddělené místo pro pračku a samostatné WC. Bydlení je navrženo s ohledem na moderní životní styl, vybaveno kvalitními materiály a promyšlenými detaily.

Součástí bytu je také prostorná lodžie a sklep, v přízemí sušárna, kočárkárna a kolárna.

Budova prošla revitalizací (zateplení, fasáda a střecha). V blízkosti nemovitosti se nachází veškerá občanská vybavenost včetně obchodů; příležitost pro volnočasové aktivity, což činí tuto lokalitu velmi atraktivní pro všechny, kteří hledají pohodlné rodinné bydlení. Doprava do centra města je zajištěna prostřednictvím městské hromadné dopravy, v pěší vzdálenosti zastávka autobusů. V případě zájmu o prohlídku či jiných dotazů mě neváhejte kontaktovat i přes víkend.

Cena
10 998 000 Kč /za nemovitost Spočítat hypotéku
Aktualizováno
13. 4. 2026
Adresa
Choceradská, Praha 4
ID
N2617077
Stavba
Panelová
Stav objektu
Po rekonstrukci
Patro
6. z 7
Lokalita objektu
Klidná část obce
Vlastnictví
Osobní
Užitná plocha
84 m2
Třída energetické náročnosti
C - Úsporná
Odpad
Veřejná kanalizace
Komunikace
Asfaltová
Telekomunikace
Internet
Doprava
MHD, Autobus
Voda
Vodovod
Lodžie
Výtah

Máte zájem o tuto nemovitost?

Tímto, v souladu s nařízením Evropského parlamentu a Rady (EU) 2016/679, v platném znění, prohlašuji, že mi je alespoň 16 let a uděluji tak svůj souhlas se zpracováním zadaných údajů (jméno, telefon, e-mail, ip adresa) společnosti B3 Technology, s.r.o., IČ: 07330600, se sídlem Novostavby 126/23, 435 11 Lom (správce dat), za účelem předání dotazu z tohoto formuláře Vámi vybranému inzerentovi a zpětného kontaktování mé osoby. Osobní údaje bude správce zpracovávat manuálně i automaticky přímo prostřednictvím svých zaměstnanců. Informace předané tímto formulářem budou uloženy v databázi správce maximálně po dobu 10 let. Odvolání souhlasu s uložením a zpracováním poskytnutých dat lze e-mailem na info@realitymat.cz. V případě podezření na neoprávněné použití Vámi poskytnutých údajů máte právo předat podnět k šetření Úřadu pro ochranu osobních údajů. Více informací
Chystáte se prodat nemovitost?
Pomůžeme Vám!
Theleadway banner

Kontakt

Dimitri Naumov

Dimitri Naumov

Přihlášení k odběru

Nenechte si ujít nejnovější nabídky prodeje bytů 4+kk v Praze 4.

Podobné nabídky