Pronájem skladu, Praha - Stodůlky, Hábova, 191 m2

Hábova, Praha, Stodůlky


38 000 Kč /za měsíc
Získejte výhodnou HYPOTÉKU

(všechny ceny bez DPH)


Regionální dodavatelé v Praze 5

Stěhovací služby

Výkup a prodej starého nábytku

Popis

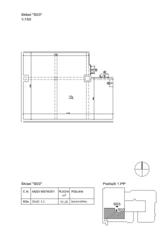
Sklad má plocha 191 m2, je umístěn v suchém suterénu (není nutné vytápění) s nákladním výtahem 1000 kg, kde se vejde paleta i s vozíkem.

Vstupní dveře do skladu jsou bezpečnostní.

Zásobování je možné zásobovacím dvorem s nakládací rampou, kde je možno parkovat za 2.000 Kč měsíčně (k dispozici je více parkovacích stání).

Pánské a dámské toalety jsou společné na chodbě.

Nabízíme k pronájmu nebytový prostor v obchodním centru Paprsek, kde se nachází celkem 15 provozoven - MAGAKNIHY.CZ, restaurace INFINITI, CENTRUMAUTOSEDACEK.CZ, FAJNZOO.CZ, GENERALI ČESKÁ POJIŠŤOVNA, IMPERIAL SUSHI, Čínské restaurace Wan Fu Lou, REAL BARBERSHOP, samoobslužná prádelna QuickWash, atd.

Naproti pronajímaného nebytového prostoru je nový projekt od společnosti TRIGEMA s cca 250 byty a prodejnou Albert.

Obchodní centrum je 100 metrů od metra B - Stodůlky. Paprsek se nachází v těsné blízkosti Šostakovičova náměstí mezi bytovou zástavbou sídliště Stodůlky. Je velmi dobře dostupný MHD - stanice metra Stodůlky cca 3 minuty chůze (160 m). Výborná dostupnost s přímou návazností na Pražský okruh a silnice D1, D5, R4, R6 a R7. V docházkové vzdálenosti od objektu se nachází nejrychleji rostoucí administrativní centrum v Praze - CITY WEST se sídlem Komerční banky, Siemens, Hyundai a Vodafone nyní zde pracuje přibližně 6500 lidí, což zaručuje potenciální zákazníky. Současně je zde nová bytová zástavba.

K dispozici od 30.5.2026 (po dohodě možná dříve)

Cena
38 000 Kč /za měsíc
Poznámka k ceně
všechny ceny bez DPH
Náklady na bydlení
měsíční zálohy - společné prostory 400 Kč, výtah 500, voda 500 Kč, elektřina 1.000 Kč, odpad 700 Kč
Aktualizováno
16. 3. 2026
Adresa
Hábova, Praha, Stodůlky
ID
Paprsek sklad S03 - 191 m2
Stavba
Skeletová
Stav objektu
Dobrý
Užitná plocha
191 m2
Parkování

Máte zájem o tuto nemovitost?

Tímto, v souladu s nařízením Evropského parlamentu a Rady (EU) 2016/679, v platném znění, prohlašuji, že mi je alespoň 16 let a uděluji tak svůj souhlas se zpracováním zadaných údajů (jméno, telefon, e-mail, ip adresa) společnosti B3 Technology, s.r.o., IČ: 07330600, se sídlem Novostavby 126/23, 435 11 Lom (správce dat), za účelem předání dotazu z tohoto formuláře Vámi vybranému inzerentovi a zpětného kontaktování mé osoby. Osobní údaje bude správce zpracovávat manuálně i automaticky přímo prostřednictvím svých zaměstnanců. Informace předané tímto formulářem budou uloženy v databázi správce maximálně po dobu 10 let. Odvolání souhlasu s uložením a zpracováním poskytnutých dat lze e-mailem na info@realitymat.cz. V případě podezření na neoprávněné použití Vámi poskytnutých údajů máte právo předat podnět k šetření Úřadu pro ochranu osobních údajů. Více informací
Chystáte se prodat nemovitost?
Pomůžeme Vám!

Kontakt

Tomáš Stehlík

Tomáš Stehlík

Přihlášení k odběru

Nenechte si ujít nejnovější nabídky pronájmu skladů v Praze 5.

Podobné nabídky