Remax Power 2

Prodej ordinace, Příbram, 241 m2 (ID: 2103011)

Příbram II


9 500 000 Kč /za nemovitost
HYPOTÉKA od 42 459 Kč /měs.
Regionální dodavatelé v Příbrami

Revize elektrických zařízení

Popis

Rádi bychom Vám představili tuto unikátní komerční nemovitost určenou k prodeji, která se nachází v klidné části města Příbram. Tato cihlová stavba ve velmi dobrém stavu nabízí ideální podmínky pro ordinace, které jsou vhodné nejen pro lékařské služby, ale i pro široké spektrum dalších profesionálních služeb, jako jsou kadeřnictví nebo salon.

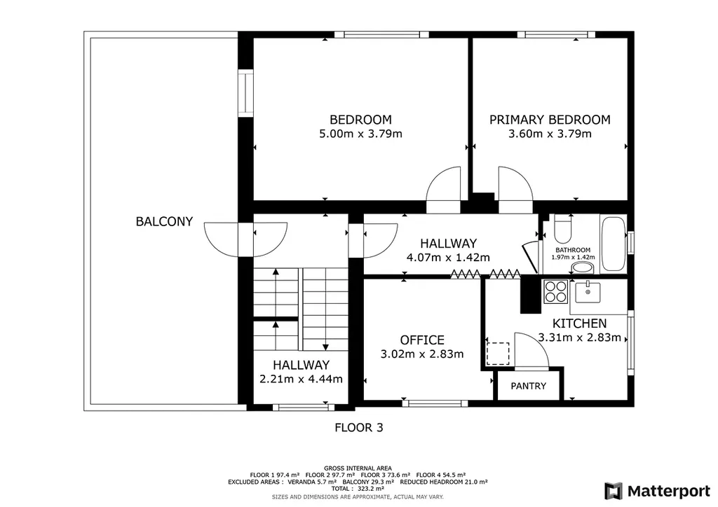
Nemovitost je patrová a poskytuje dostatek prostoru s užitnou plochou 241 m2 a podlahovou plochou 323 m2, což Vám umožní efektivně adaptovat prostor podle Vašich potřeb. Přítomnost dvou garáží zajišťuje pohodlné parkování nejen pro Vás, ale i pro Vaše klienty. Celá budova se nachází v zástavbě, která zahrnuje bydlení a kanceláře, což poskytuje strategickou polohu pro Vaše podnikání.

Nemovitost je výborně dostupná nejen místní dopravní sítí, ale i dálkovou dopravou, včetně vlakového spojení a blízkosti dálnice. To Vám umožní snadný přístup pro klienty i zaměstnance z různých lokalit.

Prohlídky jsou možné po předchozí domluvě. Pro více informací o této nemovitosti nebo sjednání prohlídky nás prosím kontaktujte nebo vyplňte níže uvedený formulář, rádi Vám pomůžeme.

Cena
9 500 000 Kč /za nemovitost Spočítat hypotéku
Aktualizováno
14. 3. 2026
Adresa
Příbram II
ID
1
Stavba
Cihlová
Stav objektu
Velmi dobrý
Užitná plocha
241 m2
Podlahová plocha
323 m2
Třída energetické náročnosti
G - Mimořádně nehospodárná
Elektřina
230V, 400V
Plyn
Plynovod
Odpad
Veřejná kanalizace
Komunikace
Asfaltová
Telekomunikace
Internet
Doprava
Vlak, Dálnice, Silnice, MHD, Autobus
Voda
Vodovod
Topné těleso
Radiátory
Zdroj topení
Plynový kotel
Zdroj teplé vody
Bojler - elektro
Garáž
Parkování

Máte zájem o tuto nemovitost?

Tímto, v souladu s nařízením Evropského parlamentu a Rady (EU) 2016/679, v platném znění, prohlašuji, že mi je alespoň 16 let a uděluji tak svůj souhlas se zpracováním zadaných údajů (jméno, telefon, e-mail, ip adresa) společnosti B3 Technology, s.r.o., IČ: 07330600, se sídlem Novostavby 126/23, 435 11 Lom (správce dat), za účelem předání dotazu z tohoto formuláře Vámi vybranému inzerentovi a zpětného kontaktování mé osoby. Osobní údaje bude správce zpracovávat manuálně i automaticky přímo prostřednictvím svých zaměstnanců. Informace předané tímto formulářem budou uloženy v databázi správce maximálně po dobu 10 let. Odvolání souhlasu s uložením a zpracováním poskytnutých dat lze e-mailem na info@realitymat.cz. V případě podezření na neoprávněné použití Vámi poskytnutých údajů máte právo předat podnět k šetření Úřadu pro ochranu osobních údajů. Více informací
Chystáte se prodat nemovitost?
Pomůžeme Vám!

Kontakt

Pavel Sokolovski

Pavel Sokolovski

Přihlášení k odběru

Nenechte si ujít nejnovější nabídky prodeje ordinací v Příbrami.

Podobné nabídky