Pronájem bytu 2+kk, Praha - Dolní Měcholupy, Honzíkova, 40 m2

Honzíkova, Praha, Dolní Měcholupy


21 000 Kč /za měsíc
Získejte výhodnou HYPOTÉKU

(náklady na bydlení v textu inzerátu)


Regionální dodavatelé v Praze 10

Stěhovací služby

Výkup a prodej starého nábytku

Popis

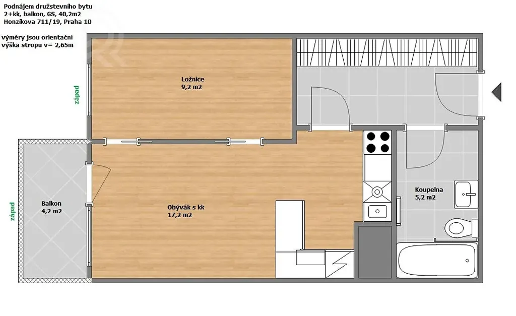
Nabízíme vám k dlouhodobému pronájmu částečně zařízený byt s parkovacím stání a balkonem v developerském projektu Malý Háj.

Byt s dispozicí 2+kk o ploše 40,2m2 se nachází ve 4. nadzemním podlaží (3.patro) Okna i lodžie jsou na západ
Podlahy jsou plovoucí, v předsíni a v koupelně dlažba. V koupelně je vana, WC a umyvadlo se zrcadlem. Je tu dostatečný prostor na umístění pračky a sušičky.
Ve všech místnostech jsou osazená stropní svítidla s možností změny teploty světla (denní, teplá bílá, bílá). Vstupní bezpečnostní dveře.

V předsíni je velká šatní skříň.
Kuchyňská linka disponuje všemi potřebnými spotřebiči: lednice, trouba, mikrovlná trouba, myčka, indukční deska, digestoř a dřez.
Lze využít barový pult se 2 židlemi. Ty budou dodány v následujících dnech, stejně tak posuvné dveře do ložnice. Na oknech jsou vnitřní žaluzie a jsou již připraveny kolejnice na záclony.
Velkou devizou tohoto bytu je balkon (+4,2 m2), kde si za letních večerů užijete posezení.

Kromě bytu bude nájemníkovi k dispozici vyhrazené parkovací stání v garáži domu. Pro obyvatele je navíc připravena velká kolárna s držáky na kola a kočárkárna. Celý dům je na čipový systém.
Nákupní možnosti: LIDL, PENNY, drogerie (Retail park Štěrboholy) nebo pak OC Štěrboholy, Fashion Arena a další.

2 minuty chůze od domu je zastávka autobusu „Kardausova“ (č.173, 229,252), na hlavní ulici pak „Kutnohorská“ (204, 229, 364, 366, noční 903 a 908) směřující převážně na metro =A= Depo Hostivař.

Náklady na bydlení:
nájem 21.000,-Kč / měsíc
parkovací stání +2.000,-Kč/měsíc
zúčtovatelné poplatky (voda, teplo, výtah, apod.) záloha 3.700,- Kč/měsíc/ 2 osoby
elektřina - převod na nájemníka - cca 1.200,-Kč/měsíc
vratná kauce 35.000,- Kč

Dlouhodobý pronájem na min. 1 rok
- Nájemní smlouva na dobu určitou s možností prodloužení (s ohledem na družstevní vlastnictví se zde uzavírá podnájemní smlouva)
- Podnájemní smlouva kopíruje práva nájemní smlouvy, možnost trvalého bydliště/pobytu.
- Povinné uzavření pojištění domácnosti (odpovědnost nájemníka za škody v pronajaté nemovitosti)
- Nájemník musí mluvit česky/slovensky nebo anglicky
- Byt k nastěhování březen/duben 2026

PROHLÍDKY úterý 17.3.2026, 15-19h, pro rezervaci konkrétního času prohlídky je nutné zavolat předem.

Pro více informací a termín prohlídky kontaktujte makléřku.

Cena
21 000 Kč /za měsíc
Poznámka k ceně
náklady na bydlení v textu inzerátu
Náklady na bydlení
4 900
Aktualizováno
13. 3. 2026
Adresa
Honzíkova, Praha, Dolní Měcholupy
ID
0224
Stavba
Cihlová
Stav objektu
Novostavba
Patro
4. z 7
Vybaveno
Částečně
Lokalita objektu
Centrum obce
Vlastnictví
Družstevní
Užitná plocha
40 m2
Podlahová plocha
44 m2
Třída energetické náročnosti
B - Velmi úsporná
Elektřina
230V, 400V
Odpad
Veřejná kanalizace
Komunikace
Asfaltová
Telekomunikace
Internet
Doprava
Dálnice, Silnice, MHD, Autobus
Voda
Vodovod
Topné těleso
Radiátory
Zdroj topení
Centrální dálkové
Balkon
Garáž
Výtah
Převod do OV
Parkování

Máte zájem o tuto nemovitost?

Tímto, v souladu s nařízením Evropského parlamentu a Rady (EU) 2016/679, v platném znění, prohlašuji, že mi je alespoň 16 let a uděluji tak svůj souhlas se zpracováním zadaných údajů (jméno, telefon, e-mail, ip adresa) společnosti B3 Technology, s.r.o., IČ: 07330600, se sídlem Novostavby 126/23, 435 11 Lom (správce dat), za účelem předání dotazu z tohoto formuláře Vámi vybranému inzerentovi a zpětného kontaktování mé osoby. Osobní údaje bude správce zpracovávat manuálně i automaticky přímo prostřednictvím svých zaměstnanců. Informace předané tímto formulářem budou uloženy v databázi správce maximálně po dobu 10 let. Odvolání souhlasu s uložením a zpracováním poskytnutých dat lze e-mailem na info@realitymat.cz. V případě podezření na neoprávněné použití Vámi poskytnutých údajů máte právo předat podnět k šetření Úřadu pro ochranu osobních údajů. Více informací
Chystáte se prodat nemovitost?
Pomůžeme Vám!

Kontakt

Mgr. Jana Reich

Mgr. Jana Reich

Přihlášení k odběru

Nenechte si ujít nejnovější nabídky pronájmu bytů 2+kk v Praze 10.

Podobné nabídky