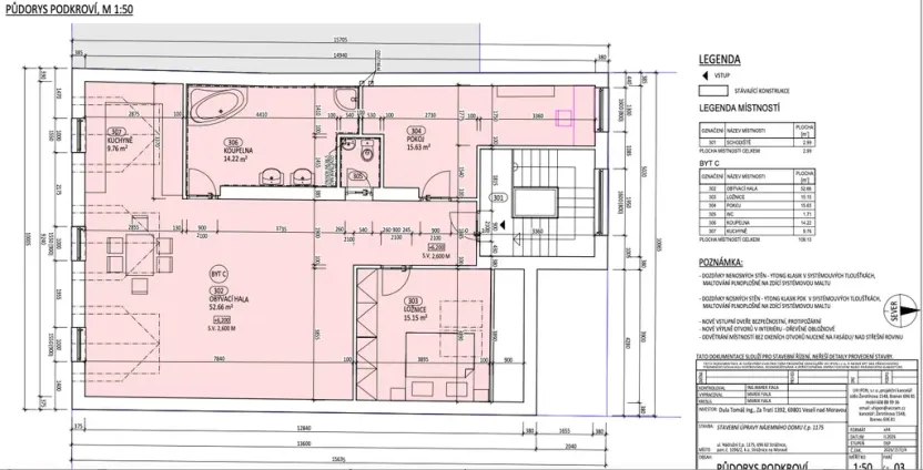
Prodej bytu 3+kk, Strážnice, Nádražní, 109 m2

Nádražní, Strážnice


4 950 000 Kč /za nemovitost
HYPOTÉKA od 22 124 Kč /měs.

(cena je včetně provize RK)


Regionální dodavatelé v Strážnici

Popis

Exkluzivně nabízíme k prodeji velkorysý a zrekonstruovaný byt o dispozici 3+kk a užitné ploše 109 m², který se nachází ve 2. podlaží malého cihlového domu o 3 bytových jednotkách v klidné části Strážnice.

Velkou výhodou je samotný dům se pouze třemi bytovými jednotkami. Nový majitel tak získá více soukromí, klidnější bydlení a pouze dva sousedy.

Byt nabízí vzdušný a velkorysý prostor pro pohodlné rodinné bydlení i komfortní život páru, který ocení dostatek místa. Součástí je balkon orientovaný do klidného vnitrobloku, ideální pro ranní kávu i večerní odpočinek. Po vstupu do bytu vás přivítá prostorná vstupní chodba, která plynule navazuje na velkorysý obývací pokoj (52,6m²) propojený s jídelní částí a kuchyní ( 10m²). Dispozice bytu dále nabízí dvě samostatné ložnice (15m² a 15,6m²), přičemž z jedné z nich je přímý vstup na balkon. K pohodlnému bydlení přispívá také samostatná toaleta ( 2m²), velká koupelna s rohovou vanou (14m²) a praktická technická místnost, která poskytuje dostatek úložného i užitného prostoru.

Byt prošel rekonstrukcí a v každé pokoji je zabudovaná klimatizační jednotka. Byt se nabízí částečně vybavený a má vlastní sklep a vlastní parkovací místo přímo před domem, které je již zahrnuto v ceně.

Měsíční náklady bytu jsou cca 4300Kč,

Lokalita nabízí velmi praktické bydlení s dobrou dostupností služeb. Vlakové i autobusové nádraží je vzdálené přibližně 2 minuty chůze, supermarket Penny asi 5 minut a centrum města Strážnice zhruba 10 minut pěšky.

Pro více informací nebo domluvení osobní prohlídky mě neváhejte kontaktovat.

Cena
4 950 000 Kč /za nemovitost Spočítat hypotéku
Poznámka k ceně
cena je včetně provize RK
Aktualizováno
13. 4. 2026
Adresa
Nádražní, Strážnice
ID
12116
Stavba
Cihlová
Stav objektu
Po rekonstrukci
Patro
2. z 2
Vybaveno
Částečně
Lokalita objektu
Centrum obce
Vlastnictví
Osobní
Užitná plocha
109 m2
Zastavěná plocha
157 m2
Podlahová plocha
109 m2
Třída energetické náročnosti
G - Mimořádně nehospodárná
Elektřina
230V
Plyn
Plynovod
Odpad
Veřejná kanalizace
Komunikace
Asfaltová
Doprava
Vlak, Silnice, Autobus
Voda
Vodovod

Máte zájem o tuto nemovitost?

Tímto, v souladu s nařízením Evropského parlamentu a Rady (EU) 2016/679, v platném znění, prohlašuji, že mi je alespoň 16 let a uděluji tak svůj souhlas se zpracováním zadaných údajů (jméno, telefon, e-mail, ip adresa) společnosti B3 Technology, s.r.o., IČ: 07330600, se sídlem Novostavby 126/23, 435 11 Lom (správce dat), za účelem předání dotazu z tohoto formuláře Vámi vybranému inzerentovi a zpětného kontaktování mé osoby. Osobní údaje bude správce zpracovávat manuálně i automaticky přímo prostřednictvím svých zaměstnanců. Informace předané tímto formulářem budou uloženy v databázi správce maximálně po dobu 10 let. Odvolání souhlasu s uložením a zpracováním poskytnutých dat lze e-mailem na info@realitymat.cz. V případě podezření na neoprávněné použití Vámi poskytnutých údajů máte právo předat podnět k šetření Úřadu pro ochranu osobních údajů. Více informací
Chystáte se prodat nemovitost?
Pomůžeme Vám!

Kontakt

Ing. Kristýna Šnajdrová

Ing. Kristýna Šnajdrová

Přihlášení k odběru

Nenechte si ujít nejnovější nabídky prodeje bytů 3+kk v Strážnici.

Podobné nabídky