Prodej bytu 4+kk, Praha - Liboc, Navigátorů, 91 m2

Navigátorů, Praha, Liboc


12 800 000 Kč /za nemovitost
HYPOTÉKA od 57 208 Kč /měs.
Regionální dodavatelé v Praze 6

Stěhovací služby

Výkup a prodej starého nábytku

Popis

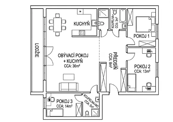
Nabízíme k prodeji exkluzivní byt 4+kk v panelové stavbě, který se nachází v atraktivní části Prahy. Tento jednopodlažní byt je situován v prvním patře a nabízí užitnou plochu 91 m²+ ložie cca 7m2 + sklep cca 3,5m2.
Nemovitost se pyšní velmi dobrým stavem a je ideální volbou pro rodiny hledající prostorné bydlení s výbornou dostupností do města. Součástí bytu je také lodžie o ploše cca 7 m², která slouží k relaxaci či posezení s přáteli a nabízí skvělý prostor pro trávení volného času.
Prohlédněte si prosím fotografie, protože koupelna a toaleta se mírně liší od dispozice před rekonstrukcí.

Byt je v osobním vlastnictví, což přináší větší flexibilitu ohledně využití a případného úprav bydlení podle vlastních představ. Datum k nastěhování je stanoveno na 1. července 2026, což poskytuje dostatečný čas na plánování a přípravu pro nový domov.

Pokud Vás byt zaujal, neváhejte nám napsat nebo zavolat a rádi Vám vše ukážeme osobně.

Cena
12 800 000 Kč /za nemovitost Spočítat hypotéku
Aktualizováno
27. 4. 2026
Adresa
Navigátorů, Praha, Liboc
Stavba
Panelová
Stav objektu
Velmi dobrý
Patro
1.
Vlastnictví
Osobní
Užitná plocha
91 m2
Sklep
Lodžie

Máte zájem o tuto nemovitost?

Tímto, v souladu s nařízením Evropského parlamentu a Rady (EU) 2016/679, v platném znění, prohlašuji, že mi je alespoň 16 let a uděluji tak svůj souhlas se zpracováním zadaných údajů (jméno, telefon, e-mail, ip adresa) společnosti B3 Technology, s.r.o., IČ: 07330600, se sídlem Novostavby 126/23, 435 11 Lom (správce dat), za účelem předání dotazu z tohoto formuláře Vámi vybranému inzerentovi a zpětného kontaktování mé osoby. Osobní údaje bude správce zpracovávat manuálně i automaticky přímo prostřednictvím svých zaměstnanců. Informace předané tímto formulářem budou uloženy v databázi správce maximálně po dobu 10 let. Odvolání souhlasu s uložením a zpracováním poskytnutých dat lze e-mailem na info@realitymat.cz. V případě podezření na neoprávněné použití Vámi poskytnutých údajů máte právo předat podnět k šetření Úřadu pro ochranu osobních údajů. Více informací
Chystáte se prodat nemovitost?
Pomůžeme Vám!

Kontakt

Daniel Kim

Daniel Kim

Přihlášení k odběru

Nenechte si ujít nejnovější nabídky prodeje bytů 4+kk v Praze 6.

Podobné nabídky