Pronájem kanceláře, Praha - Dejvice, Generála Píky, 620 m2

Generála Píky, Praha, Dejvice


Cena na vyžádání /za měsíc
Získejte výhodnou HYPOTÉKU
Regionální dodavatelé v Praze 6

Stěhovací služby

Výkup a prodej starého nábytku

Popis

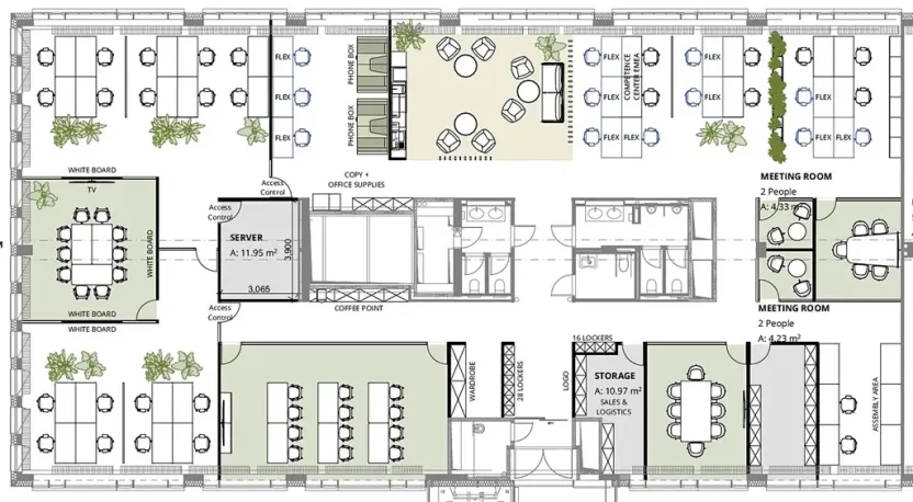
Nabízíme do podnájmu plně vybavený kancelářský prostor s moderním interiérem. Celková velikost jednotky je 620 m2 a nachází se ve 4NP kancelářské budovy Telehouse na Dejvické.

Prostory se nabízí do podnájmu ihned do 01.02.2028 s možností dalšího prodloužení.

Kancelářské prostory jsou rozděleny na menší celky openspace, menší i větší meetingové místnosti a menší konferenční centrum. Součástí interiéru je prostorná designová kuchyňka. Prostor se nabízí s nábytkem (po domluvě). Přikládáme plánek celého prostoru a fotografie aktuálního stavu.

Budova Telehouse nabízí vysoce kvalitní kanceláře s výbornou dostupností do centra města i na mezinárodní letiště. Telehouse má sofistikovanou architekturu a díky modernímu technickému vybavení dosahuje i certifikátu BREEAM Very Good. Vše podtrhuje vynikající lokalita poblíž metra A – Dejvická a množství tramvajových spojů.

Parking 110 EUR/místo/měs. + DPH. Zároveň je možné bezpečné parkování kol pro nadšené cyklisty.

Domluvte si prohlídku!

Cena
Cena na vyžádání
Aktualizováno
11. 3. 2026
Adresa
Generála Píky, Praha, Dejvice
Stavba
Skeletová
Stav objektu
Novostavba
Patro
4.
Užitná plocha
620 m2
Garáž
Parkování

Máte zájem o tuto nemovitost?

Tímto, v souladu s nařízením Evropského parlamentu a Rady (EU) 2016/679, v platném znění, prohlašuji, že mi je alespoň 16 let a uděluji tak svůj souhlas se zpracováním zadaných údajů (jméno, telefon, e-mail, ip adresa) společnosti B3 Technology, s.r.o., IČ: 07330600, se sídlem Novostavby 126/23, 435 11 Lom (správce dat), za účelem předání dotazu z tohoto formuláře Vámi vybranému inzerentovi a zpětného kontaktování mé osoby. Osobní údaje bude správce zpracovávat manuálně i automaticky přímo prostřednictvím svých zaměstnanců. Informace předané tímto formulářem budou uloženy v databázi správce maximálně po dobu 10 let. Odvolání souhlasu s uložením a zpracováním poskytnutých dat lze e-mailem na info@realitymat.cz. V případě podezření na neoprávněné použití Vámi poskytnutých údajů máte právo předat podnět k šetření Úřadu pro ochranu osobních údajů. Více informací
Chystáte se prodat nemovitost?
Pomůžeme Vám!

Kontakt

Jan Skalický

Jan Skalický

Přihlášení k odběru

Nenechte si ujít nejnovější nabídky pronájmu kanceláří v Praze 6.

Podobné nabídky