Prodej činžovního domu, Radvanice, 179 m2 (ID: 2099061)

Radvanice


5 490 000 Kč /za nemovitost
HYPOTÉKA od 24 537 Kč /měs.
Regionální dodavatelé v Radvanicích

Popis

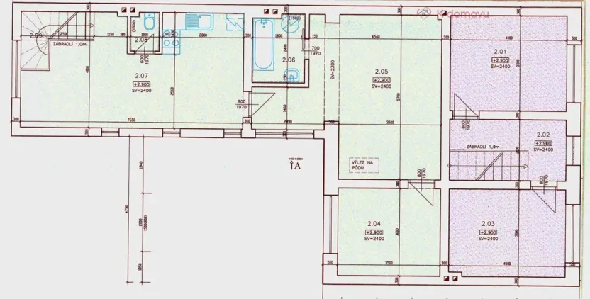
Nabízíme k prodeji řadový rodinný dům se dvěma nezávislými bytovými jednotkami (celková užitná plocha 179 m²) v klidné obci Radvanice u Přerova (cca 8 km do Přerova, výborné napojení na D1). Tento dům je ideální volbou pro investory nebo pro vícegenerační rodinu, která požaduje absolutní soukromí.
* Garantovaný příjem: Větší byt 4+1 (94 m²) je v současnosti pronajímán s platnou nájemní smlouvou do 03/2026 s možností dalšího prodloužení. Nový majitel přebírá okamžitý tok hotovosti.
* Volná jednotka: Menší byt 3+kk (78 m²) s nezávislým vchodem je připraven k okamžitému nastěhování nebo k dalšímu pronájmu (např. krátkodobému).
Dům prošel rozsáhlou a nákladnou rekonstrukcí, která zaručuje minimální provozní náklady a dlouhou životnost. Dům je napojen na obecní vodovod, plyn , el. 220/380, odpady jsou svedeny do septiku. Vytápění je řešeno ústředním rozvodem, napojeným pro každý byt na samostatný plynový kotel . Kotle zajišťují zároveň ohřev TUV. Každý byt má svůj podružný měřič elektřiny, plynu a vody.
Technická specifikace :
* Zateplení: Zateplená půda a podlahy foukanou vatou (vysoká tepelná izolace).
* Okna: Nová plastová okna s trojskly.
* Rozvody: Kompletní výměna veškerých vnitřních rozvodů (elektřiny - měď, voda, plyn, odpady - plast).
* Topení: Nové ústřední vytápění napojené na plynový kotel v obou bytech.
* Stav: Celopodsklepeno. Udržovaná zahrada (439 m²). Parkování před domem.
Shrnutí dispozice:
1. Jednotka 1 (94 m²): Byt 4+1, aktuálně pronajatý
2. Jednotka 2 (78 m²): Byt 3+kk, k okamžitému nastěhování/pronájmu.
3. Společné: Průjezd, sklepní prostory a zahrada.
Celkový potenciální příjem z pronájmu obou bytů je 23 – 25 000 měsíčně bez záloh za služby a energie. Celkový potenciální roční výnos (Gross Rental Yield) ≈4,5%.

Cena
5 490 000 Kč /za nemovitost Spočítat hypotéku
Aktualizováno
10. 3. 2026
Adresa
Radvanice
ID
2025-131
Stavba
Cihlová
Stav objektu
Velmi dobrý
Typ objektu
Patrový
Lokalita objektu
Klidná část obce
Užitná plocha
179 m2
Zastavěná plocha
249 m2
Podlahová plocha
181 m2
Plocha zahrady
439 m2
Třída energetické náročnosti
G - Mimořádně nehospodárná
Výtah
Bezbarierový přístup

Máte zájem o tuto nemovitost?

Tímto, v souladu s nařízením Evropského parlamentu a Rady (EU) 2016/679, v platném znění, prohlašuji, že mi je alespoň 16 let a uděluji tak svůj souhlas se zpracováním zadaných údajů (jméno, telefon, e-mail, ip adresa) společnosti B3 Technology, s.r.o., IČ: 07330600, se sídlem Novostavby 126/23, 435 11 Lom (správce dat), za účelem předání dotazu z tohoto formuláře Vámi vybranému inzerentovi a zpětného kontaktování mé osoby. Osobní údaje bude správce zpracovávat manuálně i automaticky přímo prostřednictvím svých zaměstnanců. Informace předané tímto formulářem budou uloženy v databázi správce maximálně po dobu 10 let. Odvolání souhlasu s uložením a zpracováním poskytnutých dat lze e-mailem na info@realitymat.cz. V případě podezření na neoprávněné použití Vámi poskytnutých údajů máte právo předat podnět k šetření Úřadu pro ochranu osobních údajů. Více informací
Chystáte se prodat nemovitost?
Pomůžeme Vám!

Kontakt

Ing. Pavel Vrba MBA

Ing. Pavel Vrba MBA

Přihlášení k odběru

Nenechte si ujít nejnovější nabídky prodeje činžovních domů v Radvanicích (okr. Přerov).

Tipy Realitymatu

Podobné nabídky