Prodej bytu 3+kk, Plzeň, Zahradní, 69 m2

Zahradní, Plzeň, Východní Předměstí


6 490 000 Kč /za nemovitost
HYPOTÉKA od 29 006 Kč /měs.
Regionální dodavatelé v Plzni

Stěhovací služby

Popis

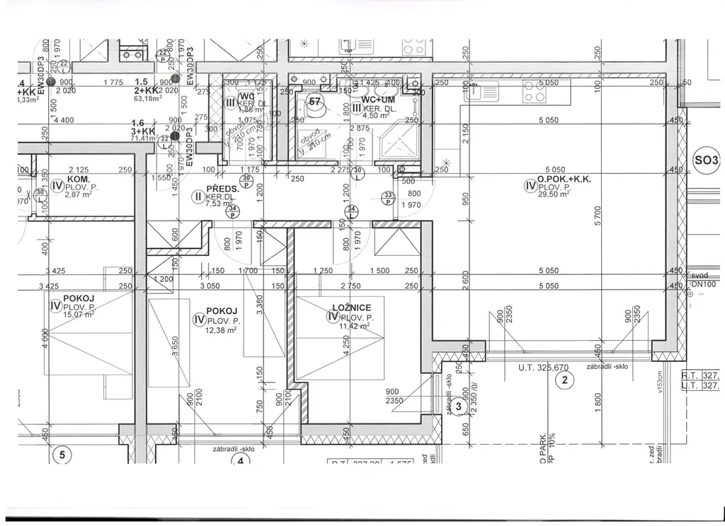
Nabízíme Vám k prodeji nový byt o velikosti 3+kk označený jako byt 6, nacházející se v 1. NP o celkové ploše včetně zděného sklepa 73,5 m2, který je stavěn v rámci projektu Bydlení Zahradní v žádané plzeňské čtvrti Slovany na rohu Zahradní a Hradišťské ulice v docházkové vzdálenosti od kompletní občanské vybavenosti a zeleně.

V bytě bude k dispozici obývací pokoj s kuchyňským koutem (29,50 m2), ložnice (11,42 m2), další pokoj (12,38 m2), předsíň (7,53 m2), koupelna s WC (4,50 m2), další samostatné WC (1,88 m2). Dále k bytu náleží zděný sklep (2,11 m2) v 1. podzemním podlaží domu. Byt bude osazen velmi dobrými standardy zařizovacích předmětů.

Podrobné informace získáte u prodejce bytů ABJ reality s.r.o.

K bytu je možné si zakoupit venkovní parkovací stání nacházející se na přilehlém pozemku u domu.

Byt je orientován směrem do Zahradní ulice – jihozápadní orientace.

Projekt Bydlení Zahradní tak představuje ideální kombinaci bydlení v žádané plzeňské čtvrti Slovany s dostupnou občanskou vybaveností v docházkové vzdálenosti a dostupnými vycházkovými trasami podél řeky Radbuzy, které Vás dovedou až do centra Plzně, kam dojdete pěšky i s malými dětmi.

Samotná budova bytového domu má pět nadzemních podlaží s 32 byty a jedno podzemní podlaží, ve kterém budou k dispozici krytá parkovací stání a sklepy pro jednotlivé byty. Bytový dům má jeden centrální vchod s výtahem. Nebudou zde komerční prostory. Vytápění domu a ohřev vody bude zajištěno centrálně pomocí teplovodu.

Dokončení domu je naplánováno na podzim roku 2026.

Cena
6 490 000 Kč /za nemovitost Spočítat hypotéku
Aktualizováno
7. 3. 2026
Adresa
Zahradní, Plzeň, Východní Předměstí
ID
505
Stavba
Smíšená
Stav objektu
Ve výstavbě
Patro
1. z 5
Vlastnictví
Osobní
Užitná plocha
69 m2
Třída energetické náročnosti
A - Mimořádně úsporná
Elektřina
400V
Odpad
Veřejná kanalizace
Komunikace
Asfaltová
Doprava
Silnice, MHD
Voda
Vodovod
Topné těleso
Podlahové vytápění
Zdroj topení
Centrální dálkové
Zdroj teplé vody
Centrální dálkový ohřev
Sklep
Výtah

Máte zájem o tuto nemovitost?

Tímto, v souladu s nařízením Evropského parlamentu a Rady (EU) 2016/679, v platném znění, prohlašuji, že mi je alespoň 16 let a uděluji tak svůj souhlas se zpracováním zadaných údajů (jméno, telefon, e-mail, ip adresa) společnosti B3 Technology, s.r.o., IČ: 07330600, se sídlem Novostavby 126/23, 435 11 Lom (správce dat), za účelem předání dotazu z tohoto formuláře Vámi vybranému inzerentovi a zpětného kontaktování mé osoby. Osobní údaje bude správce zpracovávat manuálně i automaticky přímo prostřednictvím svých zaměstnanců. Informace předané tímto formulářem budou uloženy v databázi správce maximálně po dobu 10 let. Odvolání souhlasu s uložením a zpracováním poskytnutých dat lze e-mailem na info@realitymat.cz. V případě podezření na neoprávněné použití Vámi poskytnutých údajů máte právo předat podnět k šetření Úřadu pro ochranu osobních údajů. Více informací
Chystáte se prodat nemovitost?
Pomůžeme Vám!

Kontakt

Jiří Bažant

Jiří Bažant

Přihlášení k odběru

Nenechte si ujít nejnovější nabídky prodeje bytů 3+kk v Plzni.

Tipy Realitymatu

Podobné nabídky