Soccer reality

Prodej vily, Sulice, Na Okruhu, 247 m2 (ID: 2095133)

Na Okruhu, Sulice, Hlubočinka


22 900 000 Kč /za nemovitost
HYPOTÉKA od 102 349 Kč /měs.
Regionální dodavatelé v Sulicích

Popis

Rádi bychom Vám představili tuto exkluzivní vilu k prodeji, kterou nabízíme ve spolupráci s naším realitním makléřem na prodej. Vila se nachází v klidné části obce Sulice, jen pár minut jízdy od dostupné dálnice a kvalitní dopravy, jako je městská hromadná doprava a autobusové spojení. Jedná se o novostavbu, která byla právě dokončena.

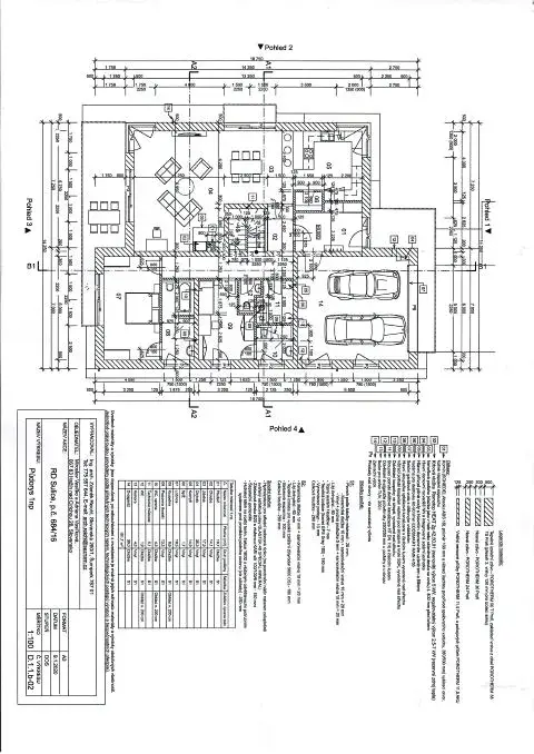
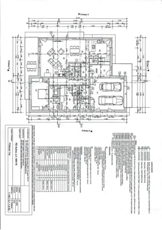
> Tento prostorný patrový dům o užitné ploše 286 m² nabízí nejméně šest pokojů a je ideální pro rodiny hledající komfort a dostatek prostoru. Vila poskytuje polohu v samostatně stojící zástavbě, zajišťuje soukromí a klid. Velký pozemek o celkové ploše 1173 m² poskytuje dostatek místa nejen pro venkovní aktivity, ale také pro relaxaci na zahradě o rozloze 923 m². Dům je navíc bezbariérově řešený a nabízí dvě garáže.
> Dispozice domu:
> 1.NP-,předsíň 10,05m, chodba 9,37m, kuchyň/jídelna/obývací pokoj 66,43m, tech.místnost 10,08m, pokoj 34,28m koupelna s WC 12,43m, hostinské WC 1,44m, dvougaráž 39m ..z přízemí vstup na terasu a zahradu.
> 2.NP- chodba 11,48m, ložnice 29,12m, ložnice 24,02m, ložnice 25,35m,koupelna s WC 13,15m,terasa 78,77m
>
> S energetickou třídou A se vila řadí mezi energeticky úsporné nemovitosti. Díky tomu můžete očekávat příznivé provozní náklady.
>
> Pokud Vás tato vila zaujala, neváhejte nám napsat nebo zavolat a rádi Vám vše ukážeme osobně. Prohlídky jsou možné po předchozí domluvě. Pro více informací o této nemovitosti nebo sjednání prohlídky nás prosím kontaktujte, rádi Vám pomůžeme.

Cena
22 900 000 Kč /za nemovitost Spočítat hypotéku
Aktualizováno
5. 3. 2026
Adresa
Na Okruhu, Sulice, Hlubočinka
Stavba
Cihlová
Stav objektu
Novostavba
Vybaveno
Ne
Druh objektu
Samostatný
Lokalita objektu
Klidná část obce
Užitná plocha
247 m2
Podlahová plocha
286 m2
Plocha pozemku
1173 m2
Plocha zahrady
923 m2
Třída energetické náročnosti
A - Mimořádně úsporná
Elektřina
230V
Odpad
Veřejná kanalizace
Komunikace
Asfaltová
Voda
Místní zdroj vody
Topné těleso
Podlahové vytápění
Zdroj topení
Tepelné čerpadlo
Zdroj teplé vody
Tepelné čerpadlo
Garáž
Bezbarierový přístup
Parkování

Máte zájem o tuto nemovitost?

Tímto, v souladu s nařízením Evropského parlamentu a Rady (EU) 2016/679, v platném znění, prohlašuji, že mi je alespoň 16 let a uděluji tak svůj souhlas se zpracováním zadaných údajů (jméno, telefon, e-mail, ip adresa) společnosti B3 Technology, s.r.o., IČ: 07330600, se sídlem Novostavby 126/23, 435 11 Lom (správce dat), za účelem předání dotazu z tohoto formuláře Vámi vybranému inzerentovi a zpětného kontaktování mé osoby. Osobní údaje bude správce zpracovávat manuálně i automaticky přímo prostřednictvím svých zaměstnanců. Informace předané tímto formulářem budou uloženy v databázi správce maximálně po dobu 10 let. Odvolání souhlasu s uložením a zpracováním poskytnutých dat lze e-mailem na info@realitymat.cz. V případě podezření na neoprávněné použití Vámi poskytnutých údajů máte právo předat podnět k šetření Úřadu pro ochranu osobních údajů. Více informací
Chystáte se prodat nemovitost?
Pomůžeme Vám!

Kontakt

Martin Borák

Martin Borák

Přihlášení k odběru

Nenechte si ujít nejnovější nabídky prodeje vil v Sulicích.

Podobné nabídky