Prodej bytu 1+kk, Praha - Žižkov, Hartigova, 45 m2

Hartigova, Praha, Žižkov


8 400 000 Kč /za nemovitost
HYPOTÉKA od 37 543 Kč /měs.
Regionální dodavatelé v Praze 3

Stěhovací služby

Výkup a prodej starého nábytku

Popis

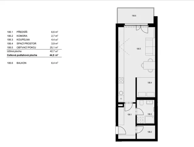
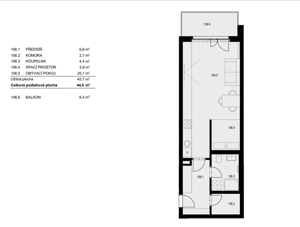
Exkluzivně nabízíme stylový byt 1+kk s balkonem v rezidenci Žižkovské Pavlače, Praha 3 – Žižkov.

Byt o celkové ploše 44,6 m² + balkon 6,4 m² se nachází v 1. patře moderní novostavby na adrese Hartigova 1016/41a.

Interiér je plně zařízený designovým nábytkem na míru a nabízí nadstandardní výšku stropů 3,1 m, která vytváří příjemný pocit prostoru a světla.
Okna jsou orientována do klidné zeleně parku Vítkov, což zajišťuje příjemné a tiché bydlení.

Součástí bytu je také prostorná sklepní kóje (4,5 m²) v suterénu domu.
✔ byt se prodává přímo od majitele – BEZ PROVIZE
✔ moderní rezidenční projekt
✔ klidná lokalita u parku
✔ skvělá investiční příležitost i ideální bydlení

Projekt Žižkovské Pavlače

Moderní rezidenční komplex tvoří 5 budov s celkem 141 byty o dispozicích od 1+kk do 4+kk. Projekt citlivě kombinuje moderní architekturu s historickou atmosférou Žižkova a přirozeně zapadá do okolní zástavby z konce 19. století.

Lokalita – Praha 3 Žižkov

Byt se nachází v jedné z nejžádanějších částí Prahy. Park Vítkov je doslova pár kroků od domu a nabízí množství zeleně, sportu i relaxace.
Žižkov je známý svou živou atmosférou, restauracemi, kavárnami a bary, a zároveň nabízí skvělou občanskou vybavenost – školy, školky, zdravotnická zařízení i nákupní centra.
Velkou výhodou je rychlá dostupnost do centra Prahy – Václavské náměstí je vzdálené pouhých 5 minut.
Dopravní dostupnost je výborná jak MHD, tak i autem díky snadnému napojení na ulici Spojovací a městský okruh.

Cena
8 400 000 Kč /za nemovitost Spočítat hypotéku
Náklady na bydlení
3356
Aktualizováno
5. 3. 2026
Adresa
Hartigova, Praha, Žižkov
Stavba
Smíšená
Stav objektu
Novostavba
Patro
1.
Vlastnictví
Osobní
Užitná plocha
45 m2
Třída energetické náročnosti
B - Velmi úsporná
Balkon
Sklep

Máte zájem o tuto nemovitost?

Tímto, v souladu s nařízením Evropského parlamentu a Rady (EU) 2016/679, v platném znění, prohlašuji, že mi je alespoň 16 let a uděluji tak svůj souhlas se zpracováním zadaných údajů (jméno, telefon, e-mail, ip adresa) společnosti B3 Technology, s.r.o., IČ: 07330600, se sídlem Novostavby 126/23, 435 11 Lom (správce dat), za účelem předání dotazu z tohoto formuláře Vámi vybranému inzerentovi a zpětného kontaktování mé osoby. Osobní údaje bude správce zpracovávat manuálně i automaticky přímo prostřednictvím svých zaměstnanců. Informace předané tímto formulářem budou uloženy v databázi správce maximálně po dobu 10 let. Odvolání souhlasu s uložením a zpracováním poskytnutých dat lze e-mailem na info@realitymat.cz. V případě podezření na neoprávněné použití Vámi poskytnutých údajů máte právo předat podnět k šetření Úřadu pro ochranu osobních údajů. Více informací
Chystáte se prodat nemovitost?
Pomůžeme Vám!

Kontakt

Martin Ross

Martin Ross

Přihlášení k odběru

Nenechte si ujít nejnovější nabídky prodeje bytů 1+kk v Praze 3.

Podobné nabídky