Prodej bytu 3+kk, Praha - Nové Město, Růžová, 80 m2

Růžová, Praha, Nové Město


15 300 000 Kč /za nemovitost
HYPOTÉKA od 68 382 Kč /měs.
Regionální dodavatelé v Praze 1

Stěhovací služby

Výkup a prodej starého nábytku

Popis

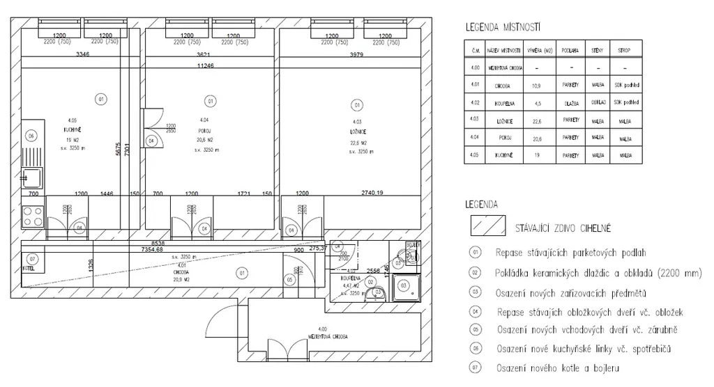
Prostorný byt 3+kk po rekonstrukci, 80 m² – Praha 1, ul. Růžová

Exkluzivně nabízíme k prodeji světlý byt o dispozici 3+kk a celkové ploše 80,5 m², který se nachází ve 4. patře historického domu v ulici Růžová, Praha 1 – Nové Město, jen pár kroků od Václavského náměstí i Hlavního nádraží.

Byt prošel kompletní rekonstrukcí přibližně před dvěma lety a nabízí kombinaci moderního standardu a klasických prvků typických pro pražské činžovní domy – vysoké stropy, velká okna a renovované dubové parkety ve vzoru rybí kosti.

Dispozice a vybavení bytu

Byt je prakticky řešen jako 3+kk a nabízí:

- prostornou vstupní chodbu
- obývací pokoj s kuchyňskou linkou
- dvě samostatné ložnice
- moderní koupelnu se sprchovým koutem a toaletou

Součástí bytu je kuchyňská linka se spotřebiči, ostatní prostory jsou připraveny k zařízení dle vlastních představ.

Standard bytu

- renovované dřevěné parkety
- nová koupelna s velkoformátovou dlažbou
- kuchyňská linka se spotřebiči
- vlastní plynový kondenzační kotel zajišťující vytápění i ohřev vody

Další výhody

- sklepní kóje
- byt po rekonstrukci (cca 2 roky)
- okna orientovaná do ulice Růžová
- zajímavá investiční příležitost v centru Prahy

Lokalita – Praha 1, Nové Město

Ulice Růžová se nachází v samotném centru Prahy, v docházkové vzdálenosti od Václavského náměstí, Hlavního nádraží i Masarykova nádraží. Lokalita nabízí kompletní občanskou vybavenost – restaurace, kavárny, obchody i kulturní vyžití.

Výborná je také dopravní dostupnost – v blízkosti jsou stanice metra Můstek, Muzeum i Hlavní nádraží, stejně jako tramvajové linky.

Prodejní cena: 15.300.000 Kč
Podlahová plocha: 80,5 m²

Byt je aktuálně pronajatý s platnou nájemní smlouvou do 28. 2. 2027, což z něj činí zajímavou investiční příležitost s okamžitým výnosem.

Pro více informací nebo sjednání prohlídky nás neváhejte kontaktovat.

Cena
15 300 000 Kč /za nemovitost Spočítat hypotéku
Aktualizováno
5. 3. 2026
Adresa
Růžová, Praha, Nové Město
Stavba
Smíšená
Stav objektu
Velmi dobrý
Patro
4.
Vybaveno
Částečně
Lokalita objektu
Centrum obce
Vlastnictví
Osobní
Užitná plocha
80 m2
Plyn
Plynovod
Odpad
Veřejná kanalizace
Komunikace
Dlážděná
Voda
Vodovod
Topné těleso
Radiátory
Zdroj topení
Plynový kondenzační kotel
Zdroj teplé vody
Plynový kondenzační kotel
Sklep
Výtah

Máte zájem o tuto nemovitost?

Tímto, v souladu s nařízením Evropského parlamentu a Rady (EU) 2016/679, v platném znění, prohlašuji, že mi je alespoň 16 let a uděluji tak svůj souhlas se zpracováním zadaných údajů (jméno, telefon, e-mail, ip adresa) společnosti B3 Technology, s.r.o., IČ: 07330600, se sídlem Novostavby 126/23, 435 11 Lom (správce dat), za účelem předání dotazu z tohoto formuláře Vámi vybranému inzerentovi a zpětného kontaktování mé osoby. Osobní údaje bude správce zpracovávat manuálně i automaticky přímo prostřednictvím svých zaměstnanců. Informace předané tímto formulářem budou uloženy v databázi správce maximálně po dobu 10 let. Odvolání souhlasu s uložením a zpracováním poskytnutých dat lze e-mailem na info@realitymat.cz. V případě podezření na neoprávněné použití Vámi poskytnutých údajů máte právo předat podnět k šetření Úřadu pro ochranu osobních údajů. Více informací
Chystáte se prodat nemovitost?
Pomůžeme Vám!

Kontakt

Ondřej Lopata

Ondřej Lopata

Přihlášení k odběru

Nenechte si ujít nejnovější nabídky prodeje bytů 3+kk v Praze 1.

Podobné nabídky