Dražba bytu 2+kk, Zlín, Lorencova, 53 m2

Lorencova, Zlín


4 328 000 Kč /za nemovitost
Získejte výhodnou HYPOTÉKU

(včetně provize)


Regionální dodavatelé v Zlíně

Popis

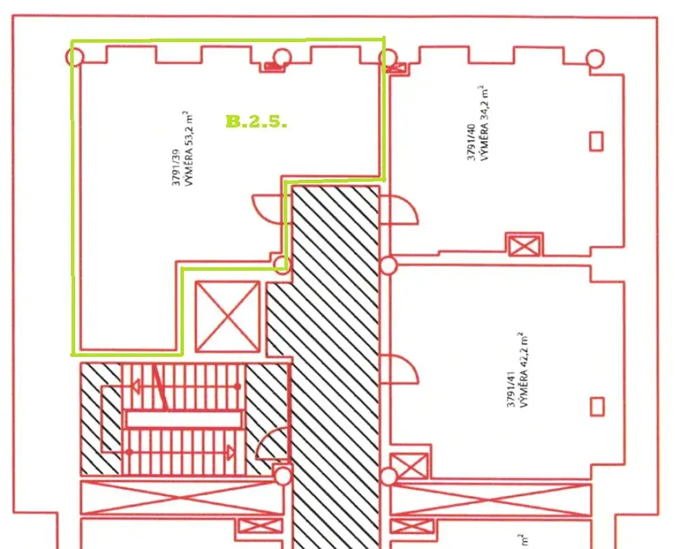
Bytová jednotka č. 3791/39 o dispozici 2+kk a podlahové ploše 53,2 m2, situovanou ve 2. nadzemním podlaží moderního bytového domu na ulici Lorencova v samotném centru Zlína.

Dispozice a výměra:
Byt je řešen jako praktické 2+kk - obývací pokoj s kuchyňským koutem, samostatná ložnice, koupelna se sprchovým koutem a WC. Dispozice nabízí funkční rozdělení denní a klidové části a je vhodná jak pro vlastní bydlení, tak jako investiční příležitost.

Příslušenství a podíly:
K bytové jednotce náleží:
- garážové parkovací stání
- sklepní kóje - nedokončeno
- spoluvlastnický podíl na společných částech domu a pozemku ve výši id. 532/70508

Technický stav:
Jednotka je dle znaleckého posudku v rozestavěném stavu s mírou dokončenosti cca 90 %

Konstrukční části stavby jsou dokončeny, instalace jsou z velké části provedeny. K dokončení je zejména:
- finální podlahová krytina
- dokončení kuchyňské linky
- případné drobné dokončovací práce dle zvoleného standardu
Byt tak umožňuje budoucímu vlastníkovi dokončit interiér podle vlastních představ a standardu.

Bytový dům:
Dům je zděný, zateplený kontaktním zateplovacím systémem, s plastovými či hliníkovými okny a osobním výtahem. Objekt má celkem 11 podlaží a kombinuje rezidenční i nebytové prostory

Lokalita: Lorencova ulice se nachází v širším centru Zlína s velmi dobrou dostupností:
- MHD v docházkové vzdálenosti
- kompletní občanská vybavenost - obchody, restaurace, služby, zdravotnická zařízení
- dobré napojení na hlavní silniční tahy
Jedná se o lokalitu vhodnou jak pro klidné městské bydlení, tak pro dlouhodobý pronájem.

Cena
4 328 000 Kč /za nemovitost
Poznámka k ceně
včetně provize
Aktualizováno
4. 3. 2026
Adresa
Lorencova, Zlín
ID
26DR000106
Stavba
Smíšená
Stav objektu
Novostavba
Patro
2.
Vlastnictví
Osobní
Užitná plocha
53 m2
Třída energetické náročnosti
G - Mimořádně nehospodárná
Sklep
Parkování

Máte zájem o tuto nemovitost?

Tímto, v souladu s nařízením Evropského parlamentu a Rady (EU) 2016/679, v platném znění, prohlašuji, že mi je alespoň 16 let a uděluji tak svůj souhlas se zpracováním zadaných údajů (jméno, telefon, e-mail, ip adresa) společnosti B3 Technology, s.r.o., IČ: 07330600, se sídlem Novostavby 126/23, 435 11 Lom (správce dat), za účelem předání dotazu z tohoto formuláře Vámi vybranému inzerentovi a zpětného kontaktování mé osoby. Osobní údaje bude správce zpracovávat manuálně i automaticky přímo prostřednictvím svých zaměstnanců. Informace předané tímto formulářem budou uloženy v databázi správce maximálně po dobu 10 let. Odvolání souhlasu s uložením a zpracováním poskytnutých dat lze e-mailem na info@realitymat.cz. V případě podezření na neoprávněné použití Vámi poskytnutých údajů máte právo předat podnět k šetření Úřadu pro ochranu osobních údajů. Více informací
Chystáte se prodat nemovitost?
Pomůžeme Vám!

Kontakt

Mgr. Klára Křížová

Mgr. Klára Křížová

Přihlášení k odběru

Nenechte si ujít nejnovější nabídky dražby bytů 2+kk v Zlíně.

Podobné nabídky