Pronájem bytu 1+1, Praha - Kobylisy, Bořanovická, 32 m2

Bořanovická, Praha, Kobylisy


15 500 Kč /za měsíc
Získejte výhodnou HYPOTÉKU
Regionální dodavatelé v Praze 8

Stěhovací služby

Výkup a prodej starého nábytku

Popis

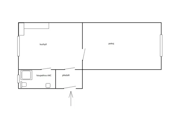
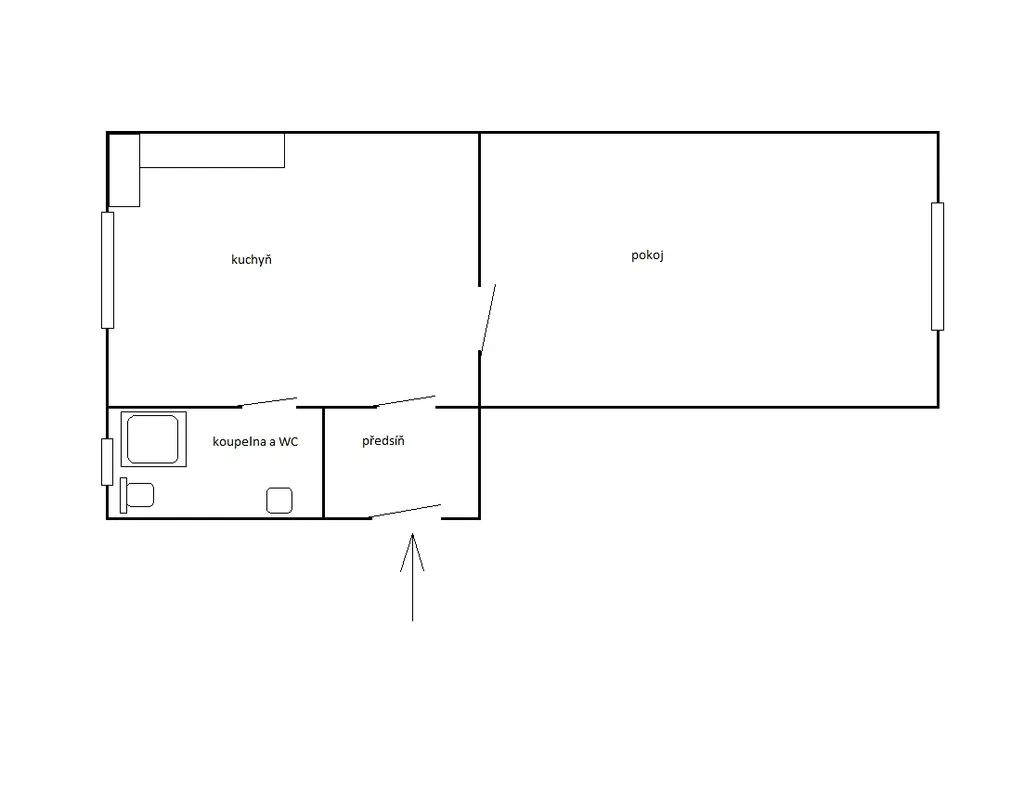
Nabízíme k pronájmu pěkný byt 1+1 v prvním patře cihlového domu v ulici Bořanovická, cca 5 minut chůze od metra Kobylisy. V bytě jsou v pokoji a kuchyni plovoucí podlahy, v koupelně je dlažba, kuchyň má okno uzavřené do zahrady, kterou je možno využívat, pokoj má okno do klidné ulice, koupelna je se sprchovým koutem. Topení a ohřev vody je zajištěn vlastním plynovým kotlem, zařízený je kuchyňskou linkou se sporákem a pračkou, v případě zájmu je po domluvě možno přenechat další nábytek. Byt bude nově vymalován. Výborná lokalita, v okolí je veškerá občanská vybavenost.

Cena
15 500 Kč /za měsíc
Náklady na bydlení
Služby 1300 Kč/osoba, el. 1500 Kč/měsíc, plyn cca 1000 Kč/měsíc
Aktualizováno
10. 4. 2026
Adresa
Bořanovická, Praha, Kobylisy
Stavba
Cihlová
Stav objektu
Dobrý
Patro
1.
Vlastnictví
Osobní
Užitná plocha
32 m2

Máte zájem o tuto nemovitost?

Tímto, v souladu s nařízením Evropského parlamentu a Rady (EU) 2016/679, v platném znění, prohlašuji, že mi je alespoň 16 let a uděluji tak svůj souhlas se zpracováním zadaných údajů (jméno, telefon, e-mail, ip adresa) společnosti B3 Technology, s.r.o., IČ: 07330600, se sídlem Novostavby 126/23, 435 11 Lom (správce dat), za účelem předání dotazu z tohoto formuláře Vámi vybranému inzerentovi a zpětného kontaktování mé osoby. Osobní údaje bude správce zpracovávat manuálně i automaticky přímo prostřednictvím svých zaměstnanců. Informace předané tímto formulářem budou uloženy v databázi správce maximálně po dobu 10 let. Odvolání souhlasu s uložením a zpracováním poskytnutých dat lze e-mailem na info@realitymat.cz. V případě podezření na neoprávněné použití Vámi poskytnutých údajů máte právo předat podnět k šetření Úřadu pro ochranu osobních údajů. Více informací
Chystáte se prodat nemovitost?
Pomůžeme Vám!

Kontakt

František Cakl

František Cakl

Přihlášení k odběru

Nenechte si ujít nejnovější nabídky pronájmu bytů 1+1 v Praze 8.

Podobné nabídky