Prodej atypického bytu, Mikulov, Nádražní, 220 m2

Nádražní, Mikulov


9 009 840 Kč /za nemovitost
HYPOTÉKA od 40 269 Kč /měs.
Regionální dodavatelé v Mikulově

Popis

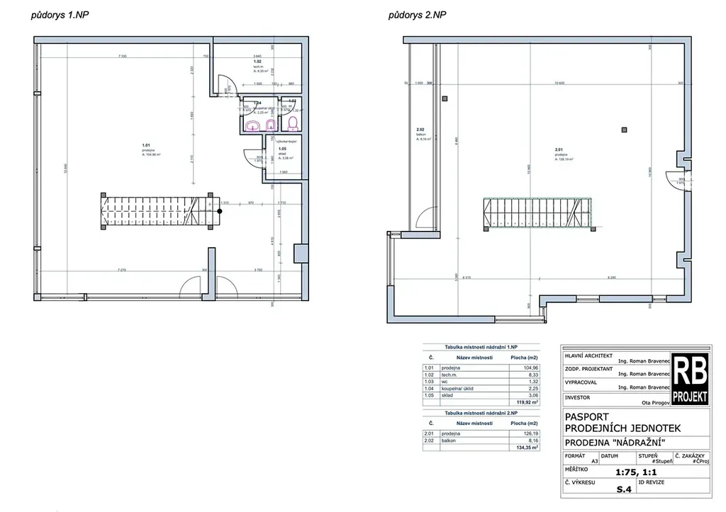
Nabízíme k prodeji reprezentativní komerční objekt v centru Mikulova, ul. Nádražní, ideální pro firmy hledající nové sídlo, kanceláře nebo obchodní prostory.

Tento cihlový objekt ve výborném technickém stavu nabízí široké možnosti využití – od firemního zázemí, showroomu, administrativních prostor či kombinace kanceláří a skladu, až po obchodní provoz. Díky strategické poloze v centru Mikulova je zaručena skvělá dopravní dostupnost, viditelnost i pohodlný přístup pro klienty či zaměstnance.

Objekt je rozvržen do dvou podlaží a poskytuje dostatek prostoru pro variabilní uspořádání podle potřeb budoucího vlastníka. Nemovitost je napojena na všechny inženýrské sítě, což umožňuje okamžité a bezproblémové využívání prostorů bez nutnosti zásadních investic.

Druhotná možnost využití – investiční potenciál:
Součástí nabídky je také možnost požádat o rekolaudaci na výstavbu čtyř bytových jednotek. Tato alternativa nabízí zajímavý způsob, jak v budoucnu nemovitost zhodnotit, a otevírá dveře kombinaci komerčního a rezidenčního využití.

Díky své poloze, technickému stavu a širokým možnostem využití se jedná o atraktivní příležitost jak pro firmy, tak pro investory hledající stabilní a výnosnou nemovitost v srdci Mikulova.

V případě zájmu o podrobnosti či domluvu prohlídky mě neváhejte kontaktovat.

Cena
9 009 840 Kč /za nemovitost Spočítat hypotéku
Aktualizováno
17. 3. 2026
Adresa
Nádražní, Mikulov
ID
0099
Stavba
Cihlová
Stav objektu
Velmi dobrý
Patro
1.
Vlastnictví
Osobní
Užitná plocha
220 m2
Třída energetické náročnosti
G - Mimořádně nehospodárná
Plyn
Plynovod
Odpad
Veřejná kanalizace

Máte zájem o tuto nemovitost?

Tímto, v souladu s nařízením Evropského parlamentu a Rady (EU) 2016/679, v platném znění, prohlašuji, že mi je alespoň 16 let a uděluji tak svůj souhlas se zpracováním zadaných údajů (jméno, telefon, e-mail, ip adresa) společnosti B3 Technology, s.r.o., IČ: 07330600, se sídlem Novostavby 126/23, 435 11 Lom (správce dat), za účelem předání dotazu z tohoto formuláře Vámi vybranému inzerentovi a zpětného kontaktování mé osoby. Osobní údaje bude správce zpracovávat manuálně i automaticky přímo prostřednictvím svých zaměstnanců. Informace předané tímto formulářem budou uloženy v databázi správce maximálně po dobu 10 let. Odvolání souhlasu s uložením a zpracováním poskytnutých dat lze e-mailem na info@realitymat.cz. V případě podezření na neoprávněné použití Vámi poskytnutých údajů máte právo předat podnět k šetření Úřadu pro ochranu osobních údajů. Více informací
Chystáte se prodat nemovitost?
Pomůžeme Vám!

Kontakt

Ota Pirogov

Ota Pirogov

Přihlášení k odběru

Nenechte si ujít nejnovější nabídky prodeje atypických bytů v Mikulově (okr. Břeclav).

Tipy Realitymatu

Podobné nabídky