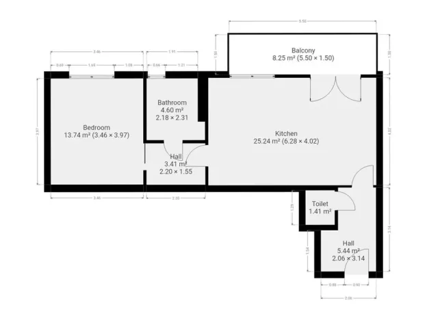
Pronájem bytu 2+kk, Praha - Zličín, Křivatcová, 58 m2

Křivatcová, Zličín - Praha-Zličín


26 000 Kč /za měsíc
Získejte výhodnou HYPOTÉKU

(vratná jistota, na bydlení 6038 Kč, poplatek za podnájem)


Regionální dodavatelé v Praze 5

Stěhovací služby

Výkup a prodej starého nábytku

Popis

K dlouhodobému podnájmu nabízíme nový designový byt v rezidenčním objektu Koivu developera YIT ve vyhledávané lokalitě Praha - Zličín.

Objekt byl vystaven v roce 2018, od té doby je byt ve vlastnictví prvních majitelů, byl využívaný pouze příležitostně.

Byt o dispozici 2+Kk a podlahové ploše 58m2 s jihozápadní orientací se nachází ve druhém patře novostavby a nabízí se s garážovým parkovacím stáním a sklepem.

Nabízí se plně vybavený bez možnosti odstranění jednotlivých kusů nábytku.

Kuchyňská linka na míru disponuje všemi potřebnými spotřebiči - vestavěnou kuchyňskou linkou, myčkou, indukční varnou deskou, elektrickou troubou, mikrovlnkou a digestoří.
V obývacím pokoji nalezneme sedačku, křeslo s podnožkou a televizní stolek s televizí. Jídelní část disponuje stolem s židlemi. Prostorná ložnice disponuje manželskou postelí s novými matracemi a nočními stolky.

Celý byt lemují štědré úložné prostory.
Kvalitní vestavěný nábytek je z rukou studia 23PM.

Energetická kategorie B.

Byt pronajímá Ideální nájemce - služba, se kterou budete bydlet bezstarostně a za férových podmínek. Když se něco přihodí, k dispozici jsou správci, kteří s vámi vše vyřeší. Pomůžeme s veškerou administrativou, s nastavením plateb a zajistíme vám speciální pojištění. Pojďte bydlet s námi!

Cena
26 000 Kč /za měsíc
Poznámka k ceně
vratná jistota, na bydlení 6038 Kč, poplatek za podnájem
Aktualizováno
27. 2. 2026
Adresa
Křivatcová, Zličín - Praha-Zličín
ID
N3719
Stavba
Cihlová
Stav objektu
Novostavba
Patro
2. z 4
Vybaveno
Ano
Typ objektu
Patrový
Lokalita objektu
Klidná část obce
Vlastnictví
Osobní
Užitná plocha
58 m2
Podlahová plocha
58 m2
Elektřina
230V
Topení
Ústřední dálkové
Balkon
Sklep
Výtah
Bezbarierový přístup
Parkování

Máte zájem o tuto nemovitost?

Tímto, v souladu s nařízením Evropského parlamentu a Rady (EU) 2016/679, v platném znění, prohlašuji, že mi je alespoň 16 let a uděluji tak svůj souhlas se zpracováním zadaných údajů (jméno, telefon, e-mail, ip adresa) společnosti B3 Technology, s.r.o., IČ: 07330600, se sídlem Novostavby 126/23, 435 11 Lom (správce dat), za účelem předání dotazu z tohoto formuláře Vámi vybranému inzerentovi a zpětného kontaktování mé osoby. Osobní údaje bude správce zpracovávat manuálně i automaticky přímo prostřednictvím svých zaměstnanců. Informace předané tímto formulářem budou uloženy v databázi správce maximálně po dobu 10 let. Odvolání souhlasu s uložením a zpracováním poskytnutých dat lze e-mailem na info@realitymat.cz. V případě podezření na neoprávněné použití Vámi poskytnutých údajů máte právo předat podnět k šetření Úřadu pro ochranu osobních údajů. Více informací
Chystáte se prodat nemovitost?
Pomůžeme Vám!

Kontakt

Miloslava Kačerová

Miloslava Kačerová

Přihlášení k odběru

Nenechte si ujít nejnovější nabídky pronájmu bytů 2+kk v Praze 5.

Podobné nabídky