Prodej obchodního prostoru, Karlovy Vary, Mariánskolázeňská, 68 m2

Mariánskolázeňská, Karlovy Vary


8 400 000 Kč /za nemovitost
HYPOTÉKA od 37 543 Kč /měs.
Regionální dodavatelé v Karlových Varech

Popis

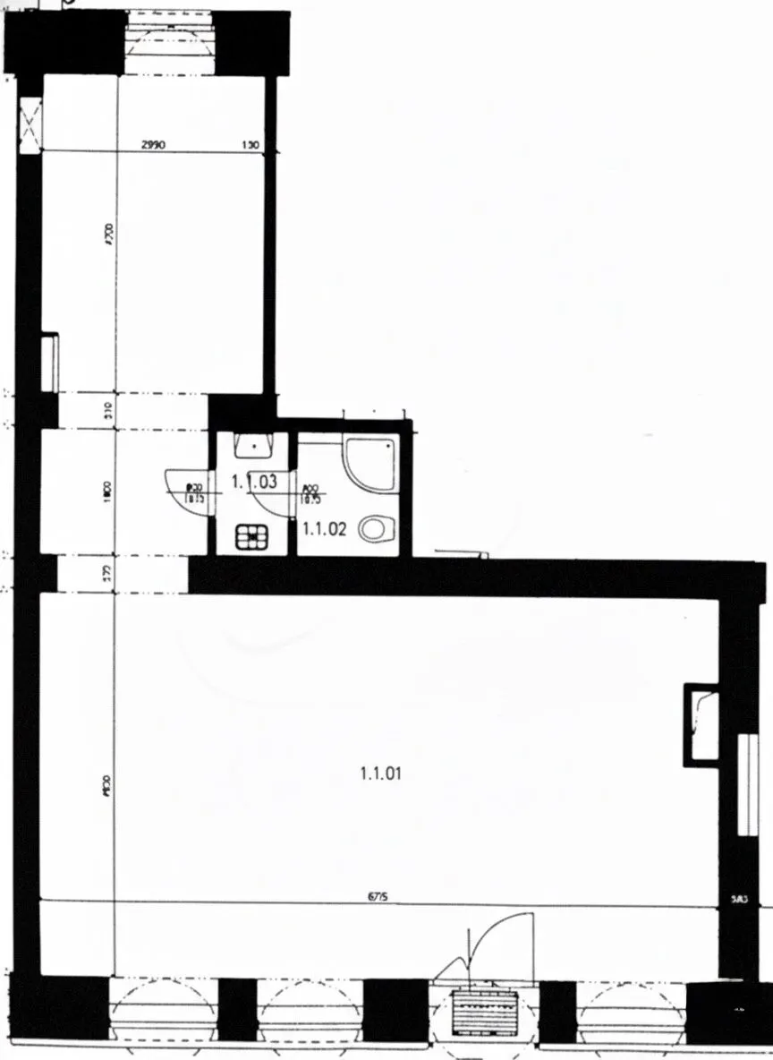
Realitní kancelář Carlsbad Reality exkluzivně nabízí k prodeji atraktivní komerční prostor o celkové ploše 68,65 m².

Klíčové vlastnosti a lokalita

Lokalita: Prostor se nachází v nejprestižnější části Karlových Varů, v ulici Mariánskolázeňská.

Umístění: Přízemí kompletně zrekonstruované cihlové budovy.

Sousedství: Přímo naproti Grandhotelu Pupp a vedle Hotelu Plaza – vysoká frekvence turistů a místních.

Stav: Objekt je ve velmi dobrém stavu a disponuje vysokými stropy pro pocit vzdušnosti.

Vytápění: Centrální vytápění.

Možnosti využití

Díky skvělé lokalitě a stavu je prostor ideální pro širokou škálu komerčních aktivit, například:

Obchod / Butik

Kancelář

Kadeřnictví / Kosmetický salon

Reprezentativní sídlo společnosti

Financování a cena

Zálohy na služby a do Fondu oprav (FO): 5 908,- Kč měsíčně.

Kupní cena objektu: 8 400 000,- Kč.

Speciální nabídka: V případě koupě objektu s firmou, která objekt vlastní kupní cena činí pouze 5 500 000,- Kč.

Cena
8 400 000 Kč /za nemovitost Spočítat hypotéku
Aktualizováno
27. 2. 2026
Adresa
Mariánskolázeňská, Karlovy Vary
ID
N00241
Stavba
Cihlová
Stav objektu
Velmi dobrý
Vybaveno
Ano
Typ objektu
Patrový
Lokalita objektu
Centrum obce
Vlastnictví
Osobní
Užitná plocha
68 m2
Podlahová plocha
68 m2
Třída energetické náročnosti
G - Mimořádně nehospodárná
Topení
Ústřední dálkové
Doprava
Silnice, MHD
Voda
Vodovod

Máte zájem o tuto nemovitost?

Tímto, v souladu s nařízením Evropského parlamentu a Rady (EU) 2016/679, v platném znění, prohlašuji, že mi je alespoň 16 let a uděluji tak svůj souhlas se zpracováním zadaných údajů (jméno, telefon, e-mail, ip adresa) společnosti B3 Technology, s.r.o., IČ: 07330600, se sídlem Novostavby 126/23, 435 11 Lom (správce dat), za účelem předání dotazu z tohoto formuláře Vámi vybranému inzerentovi a zpětného kontaktování mé osoby. Osobní údaje bude správce zpracovávat manuálně i automaticky přímo prostřednictvím svých zaměstnanců. Informace předané tímto formulářem budou uloženy v databázi správce maximálně po dobu 10 let. Odvolání souhlasu s uložením a zpracováním poskytnutých dat lze e-mailem na info@realitymat.cz. V případě podezření na neoprávněné použití Vámi poskytnutých údajů máte právo předat podnět k šetření Úřadu pro ochranu osobních údajů. Více informací
Chystáte se prodat nemovitost?
Pomůžeme Vám!

Kontakt

Sergey Kopanev

Sergey Kopanev

Přihlášení k odběru

Nenechte si ujít nejnovější nabídky prodeje obchodních prostor v Karlových Varech.

Podobné nabídky