Prodej bytu 3+kk, Holubice, 67 m2

Holubice


8 400 000 Kč /za nemovitost
HYPOTÉKA od 37 543 Kč /měs.

(včetně provize, včetně právního servisu)


Regionální dodavatelé v Holubicích

Popis

Hledáte bydlení, které spojuje klid venkova s výbornou dostupností do Brna?
Právě pro vás nabízíme ke koupi světlý a velmi prakticky řešený byt o dispozici 3+kk v obci Holubice.

Byt se nachází ve 3 podlažním bytovém domě a nabízí komfortní prostor jak pro pár, tak pro rodinu.

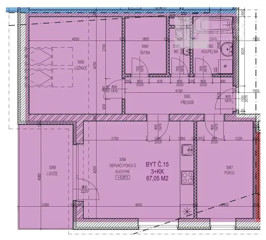
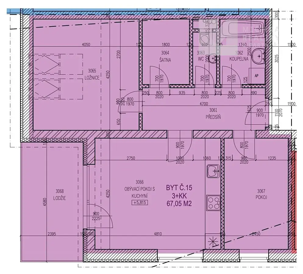
Dispozice a výměry:

Celková podlahová plocha bytu: 67 m²

+ Lodžie 11,3 m²
+ Sklep 6,3 m²
+ 2 vyhrazená parkovací stání před domem (v ceně)

Jednotlivé místnosti:
Předsíň – 7,77 m²
Koupelna – 4,35 m²
Samostatné WC – 1,82 m²
Šatna – 4,50 m²
Ložnice – 17,21 m²
Obývací pokoj s kuchyní – 20,99 m²
Pokoj – 10,41 m²

Dispozice je velmi praktická – nabízí samostatnou šatnu, oddělené WC a dostatečně prostorný obývací prostor s přímým vstupem na lodžii.

Hlavní benefity bytu:
- Kuchyňská linka na míru včetně spotřebičů
- Klimatizace pro maximální komfort v letních měsících
- Nadstandardní lodžie o velikosti 11,3 m²
- Lodžie vybavena pergolou s elektronicky zatahovatelnými roletami
- Orientace lodžie do volného prostranství
- Prostorný sklep (6,3 m²)
- 2 vlastní parkovací místa přímo před domem

Lodžie je skutečným prodloužením obytného prostoru – ideální místo pro ranní kávu, rodinné posezení i večerní relax.

Lokalita – Holubice:
Obec Holubice nabízí klidné rodinné bydlení s výbornou dostupností do Brna. V obci je základní občanská vybavenost a okolí nabízí dostatek zeleně i možností pro volnočasové aktivity.

Tento byt představuje ideální kombinaci:
- moderního standardu,
- nadstandardní venkovní plochy,
- praktické dispozice,
- bezstarostného parkování.
Pokud hledáte komfortní bydlení bez nutnosti dalších investic, tento byt je pro Vás připraven.

V případě bližších informací nebo dohodnutí termínu prohlídky neváhejte kontaktovat realitního makléře - Lukáš Michna
MICHNA REALITY & PARTNEŘI, s.r.o.

Cena
8 400 000 Kč /za nemovitost Spočítat hypotéku
Poznámka k ceně
včetně provize, včetně právního servisu
Aktualizováno
27. 2. 2026
Adresa
Holubice
ID
110054
Stavba
Cihlová
Stav objektu
Velmi dobrý
Patro
3. z 3
Lokalita objektu
Klidná část obce
Vlastnictví
Osobní
Užitná plocha
67 m2
Podlahová plocha
85 m2
Třída energetické náročnosti
B - Velmi úsporná
Ukazatel energetické náročnosti
61 kWh/m2 za rok
Elektřina
230V
Plyn
Plynovod
Odpad
Veřejná kanalizace
Telekomunikace
Telefon
Doprava
Dálnice, Silnice, Autobus
Voda
Vodovod
Topné těleso
Radiátory
Zdroj topení
Centrální dálkové
Zdroj teplé vody
Centrální dálkový ohřev
Sklep
Lodžie
Výtah
Parkování

Máte zájem o tuto nemovitost?

Tímto, v souladu s nařízením Evropského parlamentu a Rady (EU) 2016/679, v platném znění, prohlašuji, že mi je alespoň 16 let a uděluji tak svůj souhlas se zpracováním zadaných údajů (jméno, telefon, e-mail, ip adresa) společnosti B3 Technology, s.r.o., IČ: 07330600, se sídlem Novostavby 126/23, 435 11 Lom (správce dat), za účelem předání dotazu z tohoto formuláře Vámi vybranému inzerentovi a zpětného kontaktování mé osoby. Osobní údaje bude správce zpracovávat manuálně i automaticky přímo prostřednictvím svých zaměstnanců. Informace předané tímto formulářem budou uloženy v databázi správce maximálně po dobu 10 let. Odvolání souhlasu s uložením a zpracováním poskytnutých dat lze e-mailem na info@realitymat.cz. V případě podezření na neoprávněné použití Vámi poskytnutých údajů máte právo předat podnět k šetření Úřadu pro ochranu osobních údajů. Více informací
Chystáte se prodat nemovitost?
Pomůžeme Vám!

Kontakt

Lukáš Michna

Lukáš Michna

Přihlášení k odběru

Nenechte si ujít nejnovější nabídky prodeje bytů 3+kk v Holubicích (okr. Vyškov).

Podobné nabídky