Pronájem kanceláře, Praha - Josefov, Břehová, 55 m2

Břehová, Praha 1


60 000 Kč /za měsíc
Získejte výhodnou HYPOTÉKU

(nově zrekonstruované prostory se přenechávají za poloviční investované náklady, tj. ve výši 700 tis.)


Regionální dodavatelé v Praze 1

Stěhovací služby

Výkup a prodej starého nábytku

Popis

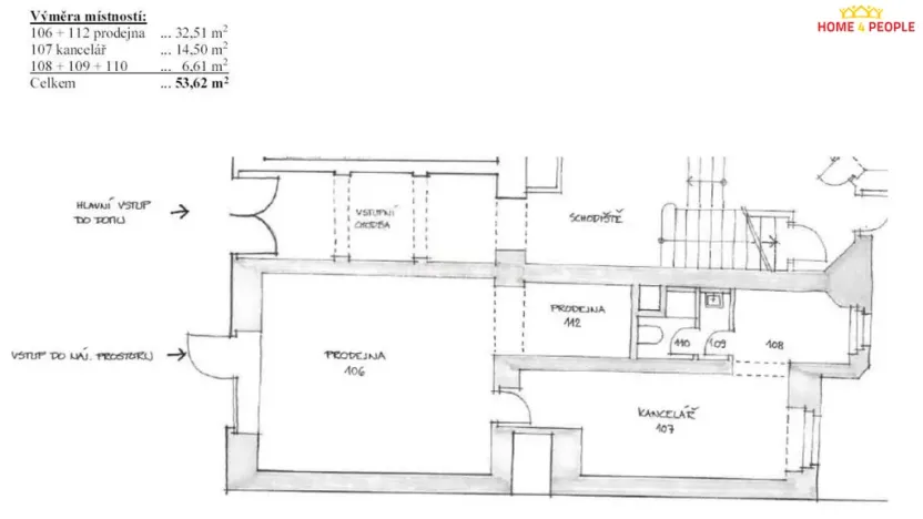
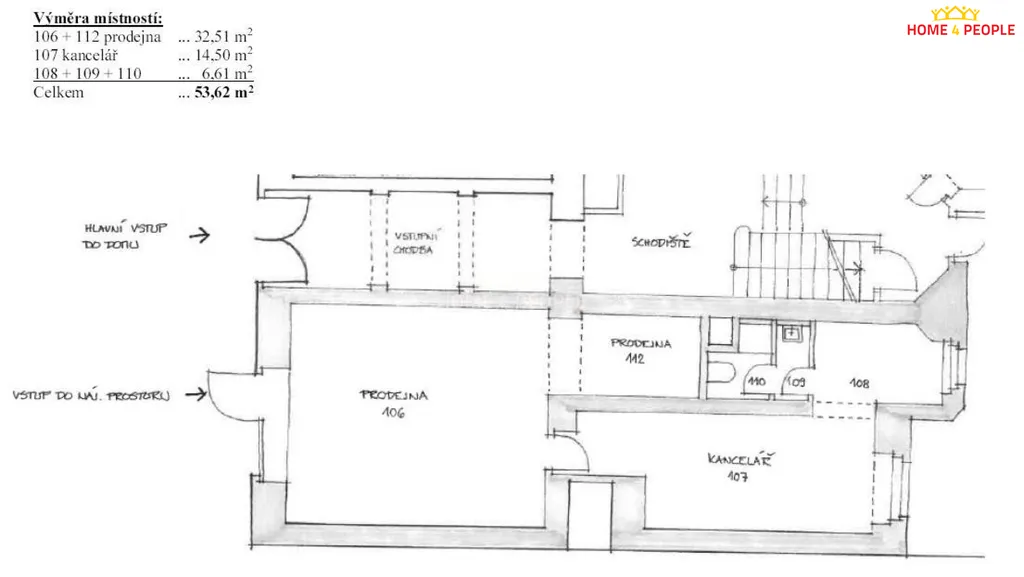
Zprostředkujeme Vám pronájem nově zrekonstruovaných komerčních prostor o velikosti 55 m² v jedné z nejprestižnějších lokalit centra Prahy: ulice Břehová, jen několik kroků od Pařížské ulice, Praha 1-Josefov.

Prostor byl kompletně a velmi pečlivě zrekonstruován s cílem vytvořit reprezentativní místo pro práci i klienty. Nakonec došlo ke změně podnikatelských plánů, a proto je nyní možnost převzít již hotový prostor bez starostí, čekání a dalších stavebních investic, pouze s kompenzací části nákladů na rekonstrukce.

Plocha 55 m² – praktická dispozice, kterou tvoří:
• větší vstupní místnost (recepce / open space)
• samostatný kancelářský prostor vzadu
• druhá místnost (pracovna / zasedačka / sklad)
• kuchyňka
• toaleta

Vše je úplně nové, připravené k okamžitému využití.
Odstupné: 700 000 Kč (částka k jednání)
Nájemné: 60 000 Kč / měsíc
Kauce: 2× nájem

Rekonstrukce vyšla původního nájemce na více než 50 000 €, takže nový nájemce získá hotové moderní prostory v prémiové kvalitě, bez nutnosti řešit stavební práce.

Prostory se hodí například pro využití jako:
✔ kancelář
✔ showroom
✔ studio / beauty služby
✔ konzultační nebo klientské centrum
✔ designovou provozovnu / obchodní prostor

Prestižní adresa v atraktivní lokalitě – centru Prahy se skvělou dostupností (množství parkovacích míst v okolí, 500 m se nachází stanice metra-Staroměstská).

Pro více informací kontaktujte prosím realitní makléřku – ráda Vám zodpovím dotazy nebo domluvím prohlídku. Tuto nemovitost doporučuji! Ev. číslo: 32110.

Cena
60 000 Kč /za měsíc
Poznámka k ceně
nově zrekonstruované prostory se přenechávají za poloviční investované náklady, tj. ve výši 700 tis.
Aktualizováno
27. 2. 2026
Adresa
Břehová, Praha 1
ID
32110
Stavba
Cihlová
Stav objektu
Velmi dobrý
Typ objektu
Patrový
Užitná plocha
55 m2
Třída energetické náročnosti
G - Mimořádně nehospodárná

Máte zájem o tuto nemovitost?

Tímto, v souladu s nařízením Evropského parlamentu a Rady (EU) 2016/679, v platném znění, prohlašuji, že mi je alespoň 16 let a uděluji tak svůj souhlas se zpracováním zadaných údajů (jméno, telefon, e-mail, ip adresa) společnosti B3 Technology, s.r.o., IČ: 07330600, se sídlem Novostavby 126/23, 435 11 Lom (správce dat), za účelem předání dotazu z tohoto formuláře Vámi vybranému inzerentovi a zpětného kontaktování mé osoby. Osobní údaje bude správce zpracovávat manuálně i automaticky přímo prostřednictvím svých zaměstnanců. Informace předané tímto formulářem budou uloženy v databázi správce maximálně po dobu 10 let. Odvolání souhlasu s uložením a zpracováním poskytnutých dat lze e-mailem na info@realitymat.cz. V případě podezření na neoprávněné použití Vámi poskytnutých údajů máte právo předat podnět k šetření Úřadu pro ochranu osobních údajů. Více informací
Chystáte se prodat nemovitost?
Pomůžeme Vám!

Kontakt

Ing. Jana Gjašiková

Ing. Jana Gjašiková

Přihlášení k odběru

Nenechte si ujít nejnovější nabídky pronájmu kanceláří v Praze 1.

Podobné nabídky