Pronájem bytu 2+kk, Praha - Hostivař, Rižská, 57 m2

Rižská, Praha, Hostivař


22 000 Kč /za měsíc
Získejte výhodnou HYPOTÉKU

(+ popl. cca 5000,-Kč, ele. energie na nájemce)


Regionální dodavatelé v Praze 10

Stěhovací služby

Výkup a prodej starého nábytku

Popis

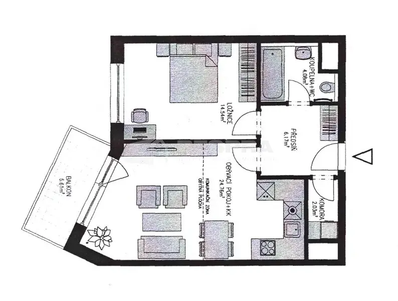
Novostavba, projekt moderního bydlení Slunečný vršek. 2+kk/57m2, balkón, komora,sklep, garáž.parkování, Praha 10 - Hostivař, ul. Rižská. Ve 4. patře cihlové (zateplené) novostavby, s výtahem a podzemní garáží. Vstupní chodba, koupelna s vanou, wc. Velmi světlý obývací pokoj s balkónem, kuchyňským koutem/kuch. linka, varná deska, ele. trouba, dřez, digestoř. Samostatná ložnice. Na podlaze plovoucí podlaha, dlažba. Tv a internet v domě. Parkovací místo v podzemní garáži. Klidná lokalita s okolní zelení (Hostivařský lesopark a přehrada - vodní nádrž), dobrá dopravní dostupnost ( metro C Opatov cca 5 minut a na stanici metra A Skalka cca 10 min MHD) s veškerou občanskou vybaveností. Volný ihned. Volejte.

Cena
22 000 Kč /za měsíc
Poznámka k ceně
+ popl. cca 5000,-Kč, ele. energie na nájemce
Aktualizováno
26. 2. 2026
Adresa
Rižská, Praha, Hostivař
ID
556
Stavba
Cihlová
Stav objektu
Novostavba
Patro
4. z 6
Vybaveno
Ano
Lokalita objektu
Klidná část obce
Vlastnictví
Osobní
Užitná plocha
57 m2
Podlahová plocha
57 m2
Třída energetické náročnosti
B - Velmi úsporná
Elektřina
230V, 400V
Odpad
Veřejná kanalizace
Topení
Ústřední dálkové
Telekomunikace
Telefon, Internet
Doprava
Vlak, Dálnice, MHD, Autobus
Voda
Vodovod
Balkon
Garáž
Sklep
Výtah
Parkování

Máte zájem o tuto nemovitost?

Tímto, v souladu s nařízením Evropského parlamentu a Rady (EU) 2016/679, v platném znění, prohlašuji, že mi je alespoň 16 let a uděluji tak svůj souhlas se zpracováním zadaných údajů (jméno, telefon, e-mail, ip adresa) společnosti B3 Technology, s.r.o., IČ: 07330600, se sídlem Novostavby 126/23, 435 11 Lom (správce dat), za účelem předání dotazu z tohoto formuláře Vámi vybranému inzerentovi a zpětného kontaktování mé osoby. Osobní údaje bude správce zpracovávat manuálně i automaticky přímo prostřednictvím svých zaměstnanců. Informace předané tímto formulářem budou uloženy v databázi správce maximálně po dobu 10 let. Odvolání souhlasu s uložením a zpracováním poskytnutých dat lze e-mailem na info@realitymat.cz. V případě podezření na neoprávněné použití Vámi poskytnutých údajů máte právo předat podnět k šetření Úřadu pro ochranu osobních údajů. Více informací
Chystáte se prodat nemovitost?
Pomůžeme Vám!

Kontakt

Lukáš  Novotný

Lukáš Novotný

Přihlášení k odběru

Nenechte si ujít nejnovější nabídky pronájmu bytů 2+kk v Praze 10.

Podobné nabídky