Prodej pozemku, Vítkov, Letní kopec, 951 m2 (ID: 2083783)

Letní kopec, Vítkov


1 799 000 Kč
HYPOTÉKA od 8 040 Kč /měs.

(včetně provize RK)


Regionální dodavatelé v Vítkově

Popis

Nabízíme k prodeji atraktivní stavební pozemek o výměře 951 m² v nové rezidenční zóně Letní kopec v západní části města Vítkov. Součástí prodeje je kompletní projektová dokumentace pro rodinný dům včetně platného stavebního povolení – ideální volba pro ty, kteří chtějí začít stavět ihned, bez zdlouhavého vyřizování.

📐 Informace o pozemku
- výměra: 951 m²
- rozměry: cca 21 × 46 m, téměř obdélníkový tvar
- přístup z jihovýchodní strany, po zpevněné komunikaci
- inženýrské sítě na hranici pozemku (elektřina, plyn, vodovod, kanalizace)
- v územním plánu: plochy bydlení – individuální v rodinných domech
- regulace: max. 2 NP + možnost podkroví
- soukromé vlastnictví, bez věcných břemen

Pozemek se nachází na mírně vyvýšeném místě s krásným výhledem na město a okolní přírodu. Nově vznikající lokalita Letní kopec nabídne klidné bydlení v zeleni s blízkostí všech městských služeb.

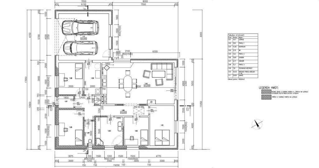
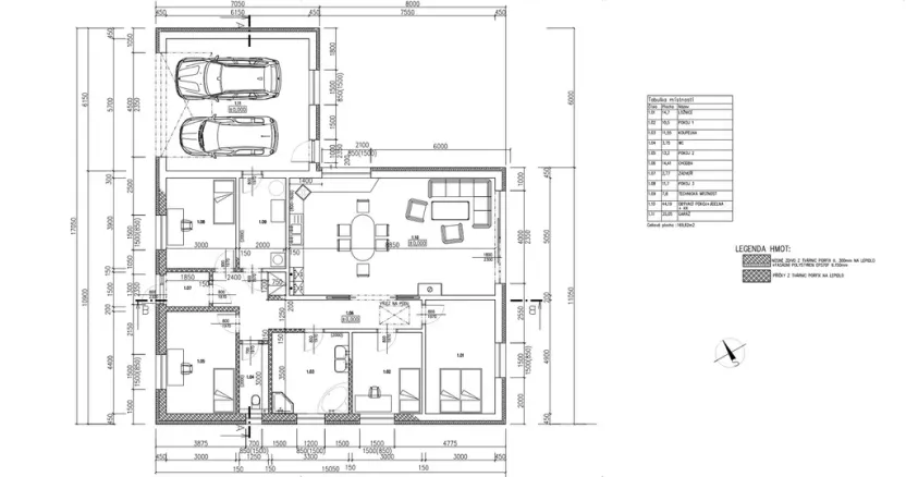
🏠 Projekt rodinného domu
Součástí prodeje je kompletní projektová dokumentace pro stavební povolení. Dům je navržen jako moderní rodinné bydlení s důrazem na funkčnost, prostor a propojení interiéru se zahradou.

Základní parametry projektu:
- Plocha domu 167m²
- dispozice: 4+kk
- 1 nadzemní podlaží + podkroví
- důraz na energetickou úspornost
- otevřený obytný prostor s výstupem na terasu
- moderní architektonické řešení vhodné do okolní zástavby

Projekt je připravený k okamžité realizaci – stačí zahájit stavbu.
Platnost stavebního povolení cca od 6/2026

📍 Lokalita a občanská vybavenost
Vše potřebné máte doslova na dosah:
- Lidl, náměstí Jana Zajíce a MěÚ – 1 km
- vlakové nádraží – 750 m
- dětské hřiště – 1 km
- ZŠ a gymnázium – 1,7 km
- MŠ – 1,4 km
- letní koupaliště, sportovní areál a kino – 1,5 km

Letní kopec kombinuje výhody klidného bydlení v přírodě s plnou dostupností městských služeb.

💰 Cena za komplet (pozemek + projekt + stavební povolení)
Cena: 1.799.000 Kč

Cena
1 799 000 Kč Spočítat hypotéku
Poznámka k ceně
včetně provize RK
Aktualizováno
21. 2. 2026
Adresa
Letní kopec, Vítkov
ID
6
Lokalita objektu
Klidná část obce
Vlastnictví
Osobní
Plocha pozemku
951 m2

Máte zájem o tuto nemovitost?

Tímto, v souladu s nařízením Evropského parlamentu a Rady (EU) 2016/679, v platném znění, prohlašuji, že mi je alespoň 16 let a uděluji tak svůj souhlas se zpracováním zadaných údajů (jméno, telefon, e-mail, ip adresa) společnosti B3 Technology, s.r.o., IČ: 07330600, se sídlem Novostavby 126/23, 435 11 Lom (správce dat), za účelem předání dotazu z tohoto formuláře Vámi vybranému inzerentovi a zpětného kontaktování mé osoby. Osobní údaje bude správce zpracovávat manuálně i automaticky přímo prostřednictvím svých zaměstnanců. Informace předané tímto formulářem budou uloženy v databázi správce maximálně po dobu 10 let. Odvolání souhlasu s uložením a zpracováním poskytnutých dat lze e-mailem na info@realitymat.cz. V případě podezření na neoprávněné použití Vámi poskytnutých údajů máte právo předat podnět k šetření Úřadu pro ochranu osobních údajů. Více informací
Chystáte se prodat nemovitost?
Pomůžeme Vám!

Kontakt

Bronislav Macourek

Bronislav Macourek

Přihlášení k odběru

Nenechte si ujít nejnovější nabídky prodeje pozemků v Vítkově.

Podobné nabídky