Pronájem obchodního prostoru, Chrudim, Soukenická, 45 m2

Soukenická, Chrudim II


12 000 Kč /za nemovitost
Získejte výhodnou HYPOTÉKU

(+ energie a služby (3.000,-Kč))


Regionální dodavatelé v Chrudimi

Popis

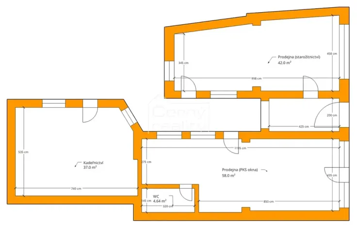
Pronájem obchodního prostoru (42m2), v centru Chrudimi, na adrese, Soukenická čp. 155, Chrudim. Jedná se o komerční prostor, se dvěma vchody a výlohou do Soukenické ulice. Prostor je možné využít jako obchod, kanceláře, sídlo obchodního zastoupení atp.
Prostory mají samostatný plynový kotel. V 1.patře je k dispozici samostatná toaleta. V prostoru je zavedena voda, tzn. je zde instalováno umyvadlo. Prostor se dá rozdělit na dvě podobně velké místnosti. Více informací a prohlídku Vám zajistí makléř. ID 155026.

Cena
12 000 Kč /za nemovitost
Poznámka k ceně
+ energie a služby (3.000,-Kč)
Aktualizováno
20. 2. 2026
Adresa
Soukenická, Chrudim II
ID
719
Stavba
Cihlová
Stav objektu
Velmi dobrý
Lokalita objektu
Centrum obce
Užitná plocha
45 m2
Zastavěná plocha
55 m2
Podlahová plocha
45 m2
Třída energetické náročnosti
E - Nehospodárná
Ukazatel energetické náročnosti
258 kWh/m2 za rok
Elektřina
230V
Plyn
Plynovod
Odpad
Veřejná kanalizace
Topení
Ústřední plynové
Telekomunikace
Internet
Doprava
Vlak, Dálnice, MHD, Autobus
Voda
Vodovod
Bezbarierový přístup

Máte zájem o tuto nemovitost?

Tímto, v souladu s nařízením Evropského parlamentu a Rady (EU) 2016/679, v platném znění, prohlašuji, že mi je alespoň 16 let a uděluji tak svůj souhlas se zpracováním zadaných údajů (jméno, telefon, e-mail, ip adresa) společnosti B3 Technology, s.r.o., IČ: 07330600, se sídlem Novostavby 126/23, 435 11 Lom (správce dat), za účelem předání dotazu z tohoto formuláře Vámi vybranému inzerentovi a zpětného kontaktování mé osoby. Osobní údaje bude správce zpracovávat manuálně i automaticky přímo prostřednictvím svých zaměstnanců. Informace předané tímto formulářem budou uloženy v databázi správce maximálně po dobu 10 let. Odvolání souhlasu s uložením a zpracováním poskytnutých dat lze e-mailem na info@realitymat.cz. V případě podezření na neoprávněné použití Vámi poskytnutých údajů máte právo předat podnět k šetření Úřadu pro ochranu osobních údajů. Více informací
Chystáte se prodat nemovitost?
Pomůžeme Vám!

Kontakt

Bc. Josef Černý

Bc. Josef Černý

Přihlášení k odběru

Nenechte si ujít nejnovější nabídky pronájmu obchodních prostor v Chrudimi.