Prodej bytu 2+1, Zastávka, Havířská, 50 m2 (ID: 2081230)

Havířská, Zastávka


Cena na vyžádání /za nemovitost
Získejte výhodnou HYPOTÉKU

(Cena na dotaz v RK.Včetně provize a všech souvisejících poplatků)


Regionální dodavatelé v Zastávce

Popis

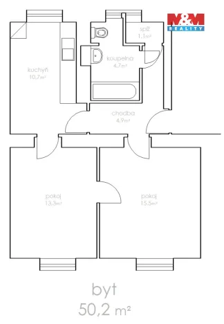
Nabízíme k prodeji útulný byt 2+1 o užitné ploše 50 m² v klidné části obce Zastávka. Tento cihlový byt se nachází v prvním nadzemním podlaží třípatrového domu.
Byt je v původním stavu, ihned obyvatelný,spíše určený k rekonstrukci dle představ budoucího majitele.
Dispozice:
kuchyně 10,7 m2, obývací pokoj 15,5 m2, ložnice 13,3 m2, chodba 4,9 m2, koupelna s wc 4,7 m2 spíž 1,1 m2. K bytu náleží dva sklepy umístěné v suterénu domu o celkové výměře 7m2.Topení plynové Waw, ohřev vody elektrickým bojlerem umístěným v koupelně.
Štítová stěna domu je zateplena, Lokalita nabízí klidné bydlení s výbornou dostupností do centra obce a občanskou vybaveností v dosahu. Ideální volba pro páry či jednotlivce hledající pohodlné bydlení v příjemném prostředí. Neváhejte nás kontaktovat pro více informací či prohlídku.

Cena
Cena na vyžádání Spočítat hypotéku
Poznámka k ceně
Cena na dotaz v RK.Včetně provize a všech souvisejících poplatků
Aktualizováno
20. 2. 2026
Adresa
Havířská, Zastávka
ID
930317
Stavba
Cihlová
Stav objektu
Dobrý
Vybaveno
Ne
Lokalita objektu
Klidná část obce
Vlastnictví
Osobní
Užitná plocha
50 m2

Máte zájem o tuto nemovitost?

Tímto, v souladu s nařízením Evropského parlamentu a Rady (EU) 2016/679, v platném znění, prohlašuji, že mi je alespoň 16 let a uděluji tak svůj souhlas se zpracováním zadaných údajů (jméno, telefon, e-mail, ip adresa) společnosti B3 Technology, s.r.o., IČ: 07330600, se sídlem Novostavby 126/23, 435 11 Lom (správce dat), za účelem předání dotazu z tohoto formuláře Vámi vybranému inzerentovi a zpětného kontaktování mé osoby. Osobní údaje bude správce zpracovávat manuálně i automaticky přímo prostřednictvím svých zaměstnanců. Informace předané tímto formulářem budou uloženy v databázi správce maximálně po dobu 10 let. Odvolání souhlasu s uložením a zpracováním poskytnutých dat lze e-mailem na info@realitymat.cz. V případě podezření na neoprávněné použití Vámi poskytnutých údajů máte právo předat podnět k šetření Úřadu pro ochranu osobních údajů. Více informací
Chystáte se prodat nemovitost?
Pomůžeme Vám!

Kontakt

Vladimír Kopčani

Vladimír Kopčani

Přihlášení k odběru

Nenechte si ujít nejnovější nabídky prodeje bytů 2+1 v Zastávce.

Tipy Realitymatu

Podobné nabídky