Pronájem skladu, Lišov, Hůrecká, 711 m2

Hůrecká, Lišov


94 000 Kč /za měsíc
Získejte výhodnou HYPOTÉKU

(+ energie, bez DPH, včetně právního servisu)


Regionální dodavatelé v Lišově

Výkup a prodej starého nábytku

Popis

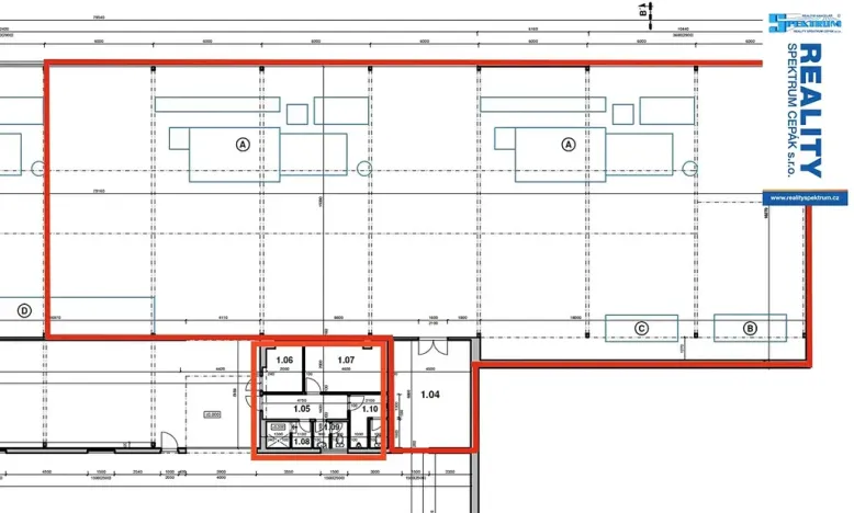
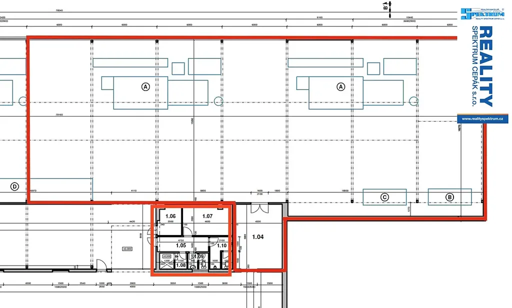
Pronájem vytápěných skladovacích prostorů v komerčním areálu. Budova jako celek má využitelnou výměru 1.768m2 a je rozdělena na dvě samostatné provozní části. Nabízíme Vám pronájem jedné části o celkové výměře 711m2 a s provozní výškou 6,5m. Vjezdová vrata mají rozměr 4,1m šířka x 4,3m výška. Budova sloužila jako skladovací hala. Sociální zařízení jsou v budově. Prostory jsou vytápěné moderními topidly ROBUR (možnost regulace jednotlivých sekcí). Elektrický příkon 140kW (200A), je možné i navýšení. K dispozici jsou velké venkovní manipulační plochy a parkovací plochy pro zaměstnance i návštěvy. Přístup do areálu je 24/7. Areál má stálou ostrahu a vrátnici. Možnost pronájmu dalších prostorů v areálu (informace na tel. 607 177 472). --- Uvedené ceny jsou bez DPH.

Cena
94 000 Kč /za měsíc
Poznámka k ceně
+ energie, bez DPH, včetně právního servisu
Aktualizováno
25. 2. 2026
Adresa
Hůrecká, Lišov
ID
954711 Lišov
Stavba
Cihlová
Stav objektu
Velmi dobrý
Lokalita objektu
Rušná část obce
Užitná plocha
711 m2
Třída energetické náročnosti
D - Méně úsporná
Ukazatel energetické náročnosti
702 kWh/m2 za rok
Elektřina
230V, 400V
Odpad
Veřejná kanalizace
Komunikace
Asfaltová
Telekomunikace
Internet
Doprava
Dálnice, Silnice, Autobus
Voda
Vodovod
Topné těleso
Jiné
Zdroj topení
Jiné
Parkování

Máte zájem o tuto nemovitost?

Tímto, v souladu s nařízením Evropského parlamentu a Rady (EU) 2016/679, v platném znění, prohlašuji, že mi je alespoň 16 let a uděluji tak svůj souhlas se zpracováním zadaných údajů (jméno, telefon, e-mail, ip adresa) společnosti B3 Technology, s.r.o., IČ: 07330600, se sídlem Novostavby 126/23, 435 11 Lom (správce dat), za účelem předání dotazu z tohoto formuláře Vámi vybranému inzerentovi a zpětného kontaktování mé osoby. Osobní údaje bude správce zpracovávat manuálně i automaticky přímo prostřednictvím svých zaměstnanců. Informace předané tímto formulářem budou uloženy v databázi správce maximálně po dobu 10 let. Odvolání souhlasu s uložením a zpracováním poskytnutých dat lze e-mailem na info@realitymat.cz. V případě podezření na neoprávněné použití Vámi poskytnutých údajů máte právo předat podnět k šetření Úřadu pro ochranu osobních údajů. Více informací
Chystáte se prodat nemovitost?
Pomůžeme Vám!

Kontakt

REALITY SPEKTRUM CEPÁK s.r.o.

REALITY SPEKTRUM CEPÁK s.r.o.

Přihlášení k odběru

Nenechte si ujít nejnovější nabídky pronájmu skladů v Lišově (okr. České Budějovice).

Podobné nabídky