Prodej ubytování, Chrášťany, 105 m2

Chrášťany, Chotouň


3 700 000 Kč /za nemovitost
HYPOTÉKA od 16 537 Kč /měs.

(včetně DPH, včetně poplatků, včetně provize, včetně právního servisu)


Regionální dodavatelé v Chrášťanech

Popis

Dům s projektem pro kreativní a komerční využití v srdci Chotouně, okr. Kolín
Hledáte místo pro vlastní ateliér, dílnu, kavárnu nebo komunitní centrum s bydlením pod jednou střechou? Pak právě tento dům v  Chotouni může být Vaším novým projektem!

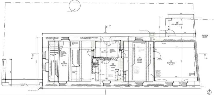
Nabízíme jedinečnou nemovitost o celkové ploše 293 m² (z toho 147 m² zastavěná plocha) s již schváleným projektem a stavebním povolením na kompletní obnovu. Dům je součástí bývalé zemědělské usedlosti s historickým šarmem – ideální prostor pro multifunkční využití.:

- Prostorem pro dílny, workshopy nebo showroom

- Zázemím pro kavárnu, galerie nebo komunitní aktivity

- Bydlením v horním patře s možností vytvoření krásného mezonetu

Interiér nyní zahrnuje vstupní chodbu, kuchyň, tři pokoje a přístavek. Dům má tradiční kamenné zdivo s nepálenými cihlami, trámové stropy a sedlovou střechu. Konstrukce je ve stabilním stavu – ideální základ pro novou vizi bez nutnosti zásadních stavebních zásahů.

Chotouň – poklidná lokalita s duší, kde minulost potkává současnost. Jen 25 minut jízdy autem do Prahy. Zastávka autobusu přímo u domu, vlaková dostupnost z Poříčan nebo Klučova. Kompletní občanská vybavenost v Českém Brodě.

Pokud hledáte místo, kde spojíte podnikání s kreativou a životním stylem – jste na správné adrese.

Zavolejte mi, ráda Vám tuto inspirativní nemovitost osobně představím.

Cena
3 700 000 Kč /za nemovitost Spočítat hypotéku
Poznámka k ceně
včetně DPH, včetně poplatků, včetně provize, včetně právního servisu
Aktualizováno
14. 2. 2026
Adresa
Chrášťany, Chotouň
ID
29664
Stavba
Cihlová
Stav objektu
Před rekonstrukcí
Lokalita objektu
Klidná část obce
Užitná plocha
105 m2
Zastavěná plocha
147 m2
Třída energetické náročnosti
G - Mimořádně nehospodárná
Elektřina
230V
Komunikace
Asfaltová
Doprava
Dálnice, Silnice, Autobus
Voda
Studna

Máte zájem o tuto nemovitost?

Tímto, v souladu s nařízením Evropského parlamentu a Rady (EU) 2016/679, v platném znění, prohlašuji, že mi je alespoň 16 let a uděluji tak svůj souhlas se zpracováním zadaných údajů (jméno, telefon, e-mail, ip adresa) společnosti B3 Technology, s.r.o., IČ: 07330600, se sídlem Novostavby 126/23, 435 11 Lom (správce dat), za účelem předání dotazu z tohoto formuláře Vámi vybranému inzerentovi a zpětného kontaktování mé osoby. Osobní údaje bude správce zpracovávat manuálně i automaticky přímo prostřednictvím svých zaměstnanců. Informace předané tímto formulářem budou uloženy v databázi správce maximálně po dobu 10 let. Odvolání souhlasu s uložením a zpracováním poskytnutých dat lze e-mailem na info@realitymat.cz. V případě podezření na neoprávněné použití Vámi poskytnutých údajů máte právo předat podnět k šetření Úřadu pro ochranu osobních údajů. Více informací
Chystáte se prodat nemovitost?
Pomůžeme Vám!

Kontakt

Maria Čerkašina

Maria Čerkašina

Přihlášení k odběru

Nenechte si ujít nejnovější nabídky prodeje ubytování v Chrášťanech (okr. Kolín).

Podobné nabídky