Pronájem kanceláře, Brno, Bieblova, 458 m2

Bieblova, Brno, Černá Pole


61 230 Kč /za měsíc
Získejte výhodnou HYPOTÉKU

(cena nájemného je uvedena bez DPH v platné sazbě)


Regionální dodavatelé v Brně

Popis

Jako majitelé vám nabízíme k pronájmu samostatně stojící objekt na adrese Bieblova 1754/27 v městské části Brno-Lesná, který nabízí prostor o celkové nájemní ploše 458 m² ve tří nadzemních podlažích. Prostory jsou vhodné ke kombinovanému využití jako kanceláře, skladovací či výrobní prostory/dílna. Jsou vybavené kancelářským nábytkem. První patro a nadstavba jsou klimatizovány.

Budova má 2 patra a půdní nadstavbu:
- V přízemí se nachází 2 kanceláře, sociální zázemí s kuchyňkou a další prostory vhodné k výrobě, opravám, nebo jako skladovací prostory či dílna, přístupné zvenku i přes garážová vrata.
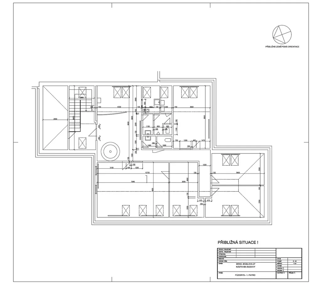
- V prvním patře se nacházejí kancelářské prostory s recepcí, sociálním zázemím a kuchyňkou.
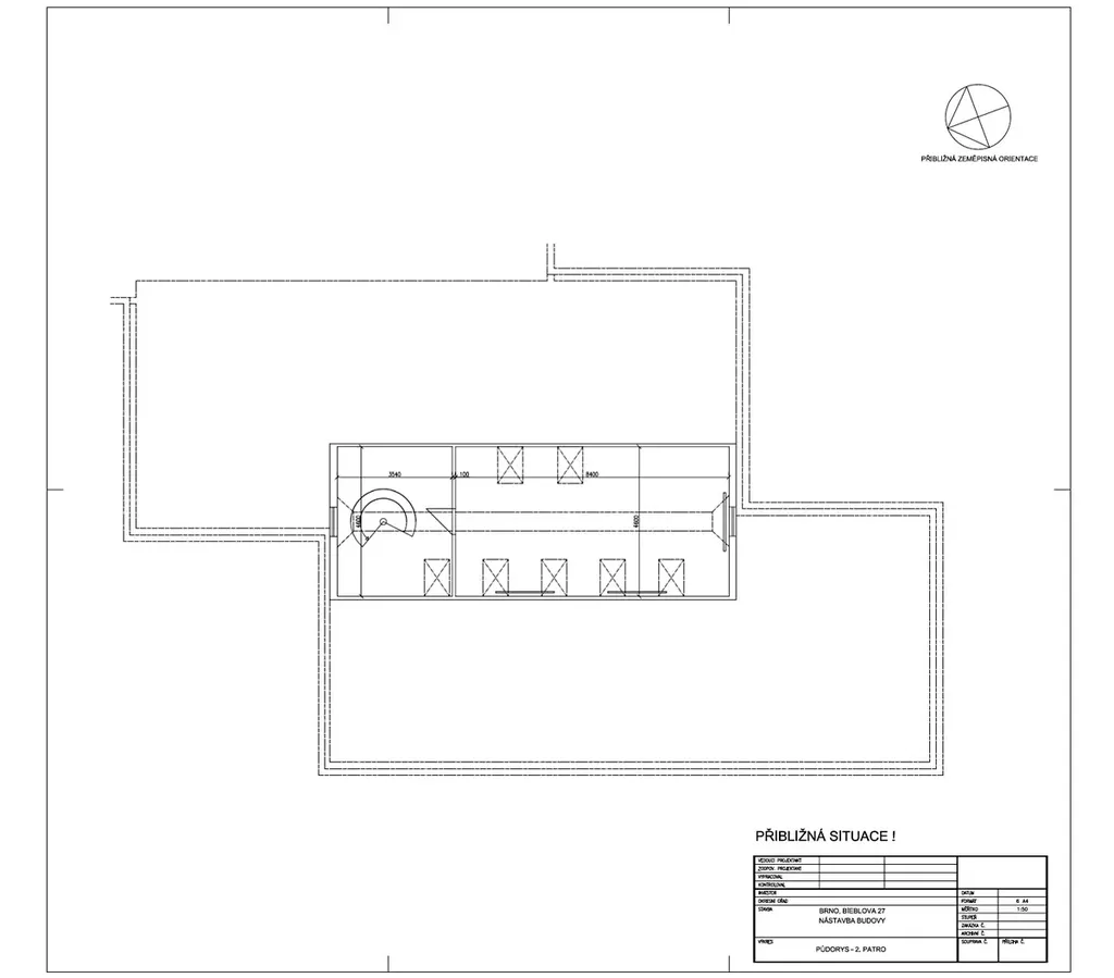
- Nad prvním patrem naleznete nadstavbu s částečně šikmými stěnami. Tento prostor byl užíván jako kancelář či zasedací místnost, je dostatečně prosvětlen střešními okny a přístupný po točitém schodišti.

Stávající kancelářské vybavení zahrnuje pracovní stoly, recepční pult, jednací stoly, skříně, police atd.
Po domluvě je možné pronajmout bez nábytku.

Rozložení místností:

Přízemí (1 NP):
Zádveří - 3,7 m2
Prodejna - 41,3 m2
Kancelář - 15,2 m2
Sklad - 33,1 m2
Chodba - 5,5 m2
Sklad - 30,7 m2
Sklad - 23,8 m2
Vstupní hala - 18,7 m2
Chodba - 3,3 m2
Sociální zázemí - 7,7 m2
Kuchyňka - 4,1 m2

1. patro (2 NP):
Schodiště s chodbou - 15,0 m2
Kancelář 1.2 - 73,5 m2
Kancelář 1.3 - 37,6 m2
Kancelář 1.4 - 30,2 m2
Sociální zázemí - 16,9 m2
Kuchyňka - 5,2 m2
Vstupní hala - 37,5 m2

Nadstavba (3 NP):
Kancelář 2.1 - 38,7 m2
Hala se schodištěm - 16,3 m2

Doba pronájmu maximálně do 12/2028.

Prostory lze pronajmou i odděleně na 2 celky, a to přízemí (kancelářské a skladové prostory), dále kancelářské prostory v prvním patře a nadstavbě.

Objekt se nachází v klidné části Brno-Lesná s dobrou dopravní dostupností a nedaleko tramvajové zastávky Bieblova s přímým spojením do centra města. Parkování možné na ulici.

Neplatíte provizi.

Pro více informací a sjednání prohlídky nás neváhejte kontaktovat.

Cena
61 230 Kč /za měsíc
Poznámka k ceně
cena nájemného je uvedena bez DPH v platné sazbě
Náklady na bydlení
nad rámec nájemného, dle skutečné spotřeby
Aktualizováno
23. 3. 2026
Adresa
Bieblova, Brno, Černá Pole
Stavba
Smíšená
Stav objektu
Dobrý
Užitná plocha
458 m2

Máte zájem o tuto nemovitost?

Tímto, v souladu s nařízením Evropského parlamentu a Rady (EU) 2016/679, v platném znění, prohlašuji, že mi je alespoň 16 let a uděluji tak svůj souhlas se zpracováním zadaných údajů (jméno, telefon, e-mail, ip adresa) společnosti B3 Technology, s.r.o., IČ: 07330600, se sídlem Novostavby 126/23, 435 11 Lom (správce dat), za účelem předání dotazu z tohoto formuláře Vámi vybranému inzerentovi a zpětného kontaktování mé osoby. Osobní údaje bude správce zpracovávat manuálně i automaticky přímo prostřednictvím svých zaměstnanců. Informace předané tímto formulářem budou uloženy v databázi správce maximálně po dobu 10 let. Odvolání souhlasu s uložením a zpracováním poskytnutých dat lze e-mailem na info@realitymat.cz. V případě podezření na neoprávněné použití Vámi poskytnutých údajů máte právo předat podnět k šetření Úřadu pro ochranu osobních údajů. Více informací
Chystáte se prodat nemovitost?
Pomůžeme Vám!

Kontakt

Ivana Kostúrová

Ivana Kostúrová

Přihlášení k odběru

Nenechte si ujít nejnovější nabídky pronájmu kanceláří v Brně.

Podobné nabídky