Pronájem restaurace, Hradec Králové, Velké náměstí, 179 m2

Velké náměstí, Hradec Králové


46 900 Kč /za měsíc
Získejte výhodnou HYPOTÉKU
Regionální dodavatelé v Hradci Králové

Popis

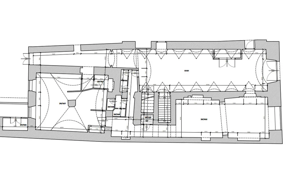
Dovolujeme si vám v exkluzivním zastoupení majitele nabídnout komerční prostor určený k provozu restauraci umístěnou v měšťanském domě na Velkém náměstí 39 v samotném centru Hradce Králové.

Prostor o celkové ploše 179 m² zahrnuje reprezentativní sál pro hosty o velikosti 53 m², prostornou kuchyni 50 m², 4 skladové prostory cca 60 m² a samostatné WC.

Bez odstupného!

Gastro provoz zabírá celé přízemí. Nabízí se přímý vstup z Velkého náměstí a ze společné chodby domu. Vlastník taky nabízí velkou zahrádku s barem a elektrorozvody ve vnitrobloku, která se také muže stát předmětem pronájmu. Za zahrádkou se nachází ještě tři rozlehlé terasy a lze na nich pořádat různé společenské akce nebo na ně rozšířit stále, případně sezonní kapacitu restaurace. Celková kapacita restaurace a zahrádky je velká, záleží na konceptu provozovatele. Zahrádku lze zastřešit a využívat celoročně.

Provoz je umístěn v objektu středověkého původu, který prošel řadou mladších přestaveb, z nichž nejvýznamnější je klasicistní. Proto zde naleznete impozantní vstupní chodbu s klenutými originálními stropy a sklepní klenuté stropy jsou také impozantní.

Domy s restaurací se nachází vedle Katedrály Sv. Ducha z r. 1307. Dům je již od r. 1958 zapsán v Památkovém katalogu Národního Památkového ústavu jako Kulturní památka ČR.

V současné době je objekt vytápěn jednotlivými plynovými kotli, ale vlastník je v procesu instalace energeticky úsporných tepelných čerpadel. Nad restaurací se nachází byty, proto má vlastník má zájem pronajmout konceptu restaurace, která není nadstandardně hlučná, a jejíž provozovatel má prokazatelné zkušenostmi v oboru pohostinství.

Pokud Vás zaujala možnost jednat o pronájmu tohoto objektu, kontaktujte nás. Poskytneme všechny podklady a zajistíme prohlídku.

Cena
46 900 Kč /za měsíc
Aktualizováno
26. 3. 2026
Adresa
Velké náměstí, Hradec Králové
ID
N464
Stavba
Cihlová
Stav objektu
Velmi dobrý
Typ objektu
Patrový
Druh objektu
Řadový
Užitná plocha
179 m2
Zastavěná plocha
179 m2
Třída energetické náročnosti
F - Velmi nehospodárná

Máte zájem o tuto nemovitost?

Tímto, v souladu s nařízením Evropského parlamentu a Rady (EU) 2016/679, v platném znění, prohlašuji, že mi je alespoň 16 let a uděluji tak svůj souhlas se zpracováním zadaných údajů (jméno, telefon, e-mail, ip adresa) společnosti B3 Technology, s.r.o., IČ: 07330600, se sídlem Novostavby 126/23, 435 11 Lom (správce dat), za účelem předání dotazu z tohoto formuláře Vámi vybranému inzerentovi a zpětného kontaktování mé osoby. Osobní údaje bude správce zpracovávat manuálně i automaticky přímo prostřednictvím svých zaměstnanců. Informace předané tímto formulářem budou uloženy v databázi správce maximálně po dobu 10 let. Odvolání souhlasu s uložením a zpracováním poskytnutých dat lze e-mailem na info@realitymat.cz. V případě podezření na neoprávněné použití Vámi poskytnutých údajů máte právo předat podnět k šetření Úřadu pro ochranu osobních údajů. Více informací
Chystáte se prodat nemovitost?
Pomůžeme Vám!

Kontakt

Call Centrum CAPITAL Trust, a.s

Call Centrum CAPITAL Trust, a.s

Přihlášení k odběru

Nenechte si ujít nejnovější nabídky pronájmu restaurací v Hradci Králové.

Podobné nabídky