Pronájem obchodního prostoru, Brno, Lidická, 30 m2

Lidická, Brno, Veveří


4 990 Kč /za metr čtvereční / rok
Získejte výhodnou HYPOTÉKU
Regionální dodavatelé v Brně

Popis

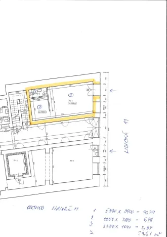
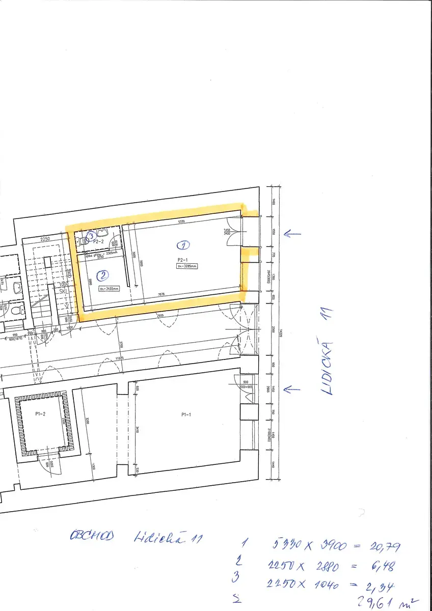
Statutární město Brno nabízí k pronájmu nebytovou jednotku – obchodní prostor v 1. NP na adrese Lidická 11, Brno. Dům je situován na frekventované ulici, poblíž zastávky MHD Antonínská a Moravské náměstí.

Jedná se o prostor o celkové výměře 29,61 m2 nacházející se v přízemí budovy. Prostor tvoří hlavní prodejní místnost, zázemí a sociální zařízení (viz půdorys). Vstup do prostoru je samostatný, přímo z ulice Lidická. Vhodné k provozování obchodu s nepotravinářským zbožím nebo poskytování služeb.

Minimální požadovaná výše nájemného je 4 990 Kč/m2/rok (147 754 Kč/rok, 12 313 Kč/měsíc).

Kromě nájemného se platí vodné a stočné (cca 2 000 Kč/rok). Elektřina je dodávána na základě přímé smlouvy dodavatele s nájemcem. Topení a ohřev vody je na elektřinu.

Nájemné a záloha na služby (vodné a stočné) se platí čtvrtletně. Při podpisu smlouvy se skládá kauce ve výši 3 měsíčního nájemného.

Prohlídka prostor se uskuteční v termínech 17.2.2026 v 10:00 a 3.3.2026 ve 14:00. (po domluvě možno případně sjednat individuální termín)

Nabídky na pronájem s uvedením žadatele o pronájem (jméno/název, IČO, kontakty), předpokládaného účelu využití, délky pronájmu a návrhem nájemného v Kč/m2/rok zasílejte nejpozději do 12.3.2026 do 12:00 hod. na adresu Realitní společnosti města Brna a.s., Panská 13, 602 00 Brno nebo do datové schránky 9daich5. Pro nabídku můžete použít formulář, který najdete na naší stránce.

Nabídky budou projednány příslušnými volenými orgány města a následně budou zájemci vyrozuměni o výsledku.

Cena
4 990 Kč /za metr čtvereční / rok
Aktualizováno
9. 2. 2026
Adresa
Lidická, Brno, Veveří
Stavba
Kamenná
Stav objektu
Velmi dobrý
Patro
1.
Užitná plocha
30 m2

Máte zájem o tuto nemovitost?

Tímto, v souladu s nařízením Evropského parlamentu a Rady (EU) 2016/679, v platném znění, prohlašuji, že mi je alespoň 16 let a uděluji tak svůj souhlas se zpracováním zadaných údajů (jméno, telefon, e-mail, ip adresa) společnosti B3 Technology, s.r.o., IČ: 07330600, se sídlem Novostavby 126/23, 435 11 Lom (správce dat), za účelem předání dotazu z tohoto formuláře Vámi vybranému inzerentovi a zpětného kontaktování mé osoby. Osobní údaje bude správce zpracovávat manuálně i automaticky přímo prostřednictvím svých zaměstnanců. Informace předané tímto formulářem budou uloženy v databázi správce maximálně po dobu 10 let. Odvolání souhlasu s uložením a zpracováním poskytnutých dat lze e-mailem na info@realitymat.cz. V případě podezření na neoprávněné použití Vámi poskytnutých údajů máte právo předat podnět k šetření Úřadu pro ochranu osobních údajů. Více informací
Chystáte se prodat nemovitost?
Pomůžeme Vám!

Kontakt

Bc. Jana Hradilová

Bc. Jana Hradilová

Přihlášení k odběru

Nenechte si ujít nejnovější nabídky pronájmu obchodních prostor v Brně.

Podobné nabídky