Pronájem bytu 4+kk, Pardubice, V Ráji, 350 m2

V Ráji, Pardubice, Zelené Předměstí


33 500 Kč /za měsíc
Získejte výhodnou HYPOTÉKU

(+ energie a služby (6.500,-Kč))


Regionální dodavatelé v Pardubicích

Popis

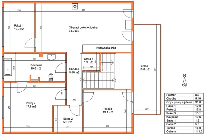
Pronájem luxusního bytu 4+kk (170 m2), z toho - byt (98 m2), terasa (16 m2), sklep 17 m2, chodba (12 m2), půda (30 m2). Dále je k dispozici a sdílená zahrada s pergolou a krbem (180 m2). Byt je umístěn v rodinném domě, do bytu se vchází společnou domovní chodbou, byt je oddělen vstupními dveřmi, za nimi se na chodbě nachází vestavěný botník a věšák, chodba o ploše 12 m2 se vstupem na zahradu, na chdobě lze umístit např. kola kočárek atp., z chodby je vstup i do klenbového sklepu, o ploše 17 m2.

Samotný byt se nachází v 1.patře a má následující dispozici:
schodiště se střešním oknem, nočními led světly a dalším designovým osvětlením, schodišťová podesta 3m2.

Vstupní chodba s podlahovým topením o ploše 5,5 m2, zde je umístěno výklopné schodiště na půdu, šatna1 1,9 m2, se světlíkem do schodišťového prostoru, šatna2 5,0 m2, obývací pokoj 31m2, s krbovými kamny, jídelnou, se vstupem na terasu, kuchyňská linka s vestavěnými spotřebiči zn. Siemens a Liebherr, pokoj1 10m2, otočen do ulice, pokoj2 17,8m2, se vstupem do koupelny, pokoj3 13,1m2, se vstupem na terasu, pokoj3 je otočen na východní stranu, tzn. do zahrady, prostrorná koupelna s podlahovým topením 10,6 m2. Terasa je otočena na východní stranu, a má plochu 16m2, tuto terasu můžete v klidu užívat k nerušené relaxaci od jara do podzimu.

V bytě jsou luxusní dřevěné dubové podlahy, designové dveře, kuchyňská linka a nábytek na míru.
V každém pokoji je klimatizace/topení, tepelné čerpadlo vzduch-vzduch, zn. Mitsubishi.
Byt má samostatný elektroměr a vodoměr.
Centrum města 1 km, veškerá občanská vybavenost je v docházkové vzdálenosti. tj. škola, školka, Billa, Penny, čerpací stanice atp. Jedná se o Luxusní-nadstandartní bydlení kousek od centra města. S rychlým napojením na rychlostní silnici R37, 1 km od domu je sjezd na R37 (u Parama). Pro více informací a prohlídku nás neváhejte kontaktovat. Byt je k dispozici od 1.3.2026. ID 86226.

Cena
33 500 Kč /za měsíc
Poznámka k ceně
+ energie a služby (6.500,-Kč)
Aktualizováno
6. 2. 2026
Adresa
V Ráji, Pardubice, Zelené Předměstí
ID
676
Stavba
Cihlová
Stav objektu
Velmi dobrý
Patro
2. z 3
Vybaveno
Ano
Lokalita objektu
Centrum obce
Vlastnictví
Osobní
Užitná plocha
350 m2
Podlahová plocha
350 m2
Třída energetické náročnosti
G - Mimořádně nehospodárná
Elektřina
230V, 400V
Odpad
Veřejná kanalizace
Topení
Lokální tuhá paliva, Lokální elektrické, Ústřední tuhá paliva, Ústřední elektrické, Podlahové
Telekomunikace
Internet, Satelit, Kabelové rozvody
Doprava
Vlak, Dálnice, MHD, Autobus
Voda
Vodovod
Sklep
Terasa

Máte zájem o tuto nemovitost?

Tímto, v souladu s nařízením Evropského parlamentu a Rady (EU) 2016/679, v platném znění, prohlašuji, že mi je alespoň 16 let a uděluji tak svůj souhlas se zpracováním zadaných údajů (jméno, telefon, e-mail, ip adresa) společnosti B3 Technology, s.r.o., IČ: 07330600, se sídlem Novostavby 126/23, 435 11 Lom (správce dat), za účelem předání dotazu z tohoto formuláře Vámi vybranému inzerentovi a zpětného kontaktování mé osoby. Osobní údaje bude správce zpracovávat manuálně i automaticky přímo prostřednictvím svých zaměstnanců. Informace předané tímto formulářem budou uloženy v databázi správce maximálně po dobu 10 let. Odvolání souhlasu s uložením a zpracováním poskytnutých dat lze e-mailem na info@realitymat.cz. V případě podezření na neoprávněné použití Vámi poskytnutých údajů máte právo předat podnět k šetření Úřadu pro ochranu osobních údajů. Více informací
Chystáte se prodat nemovitost?
Pomůžeme Vám!

Kontakt

Bc. Josef Černý

Bc. Josef Černý

Přihlášení k odběru

Nenechte si ujít nejnovější nabídky pronájmu bytů 4+kk v Pardubicích.

Podobné nabídky