Prodej bytu 3+kk, Nymburk, Inspektorská, 71 m2

Inspektorská, Nymburk


6 190 000 Kč /za nemovitost
HYPOTÉKA od 27 666 Kč /měs.
Regionální dodavatelé v Nymburku

Popis

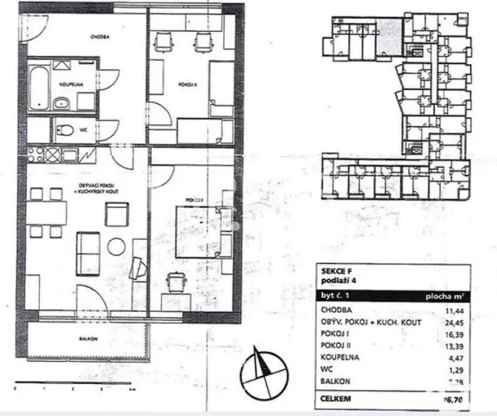
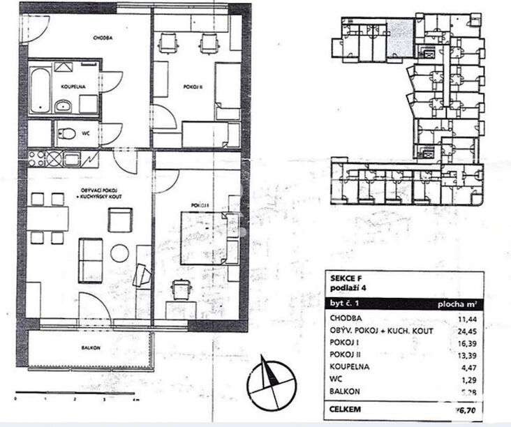
Dovolte mi nabídnout Vám ke koupi prostorný byt 3+kk s užitnou plochou 76,7m2 včetně balkonu a s vlastním podzemním garážovým stáním. Nachází se v cihlovém bytovém domě z roku 2008 a v jeho okolí naleznete hlavní vlakové nádraží s přímými spoji směr Praha, Hradec Králové, Kolín, Jičín a Mladá Boleslav, a také Střední odbornou školu a učiliště.
Díky dispozici bytu a přítomnosti výtahu bych bydlení doporučil všem bez věkového omezení s maximálním počtem 4 lidí včetně dětí. Bonusem je garážové stání a vlakové nádraží. Díky tomu je ideální pro ty, kteří jezdí pravidelně pracovat do Prahy nebo do jiného výše zmíněného města.
Byt se nachází ve 4. nadzemním podlaží (3. patro), kde Vás nebude rušit ruch ze společných prostor. Přivítá vás prostorná chodba do tvaru L a z ní se dostanete do obývacího pokoje s kuchyní, do prvního pokoje, do koupelny s vanou a umyvadlem a na toaletu. Z obývacího pokoje se dostanete do druhého pokoje a také na balkón. Okna směřují na JV a SZ. Dům je napojen na elektřinu, vodovod a kanalizaci. Teplá voda a topení je zajištěna dálkovým rozvodem. Tedy maximální pohodlí bez námahy. Dům není starý ani 20 let, tudíž v bytě nebyla nutná žádná větší rekonstrukce. Vnitřní rozvody domu jsou ve velmi dobrém stavu a opravována byla pouze střecha.
Měsíční poplatky činí 6 453 Kč bez elektřiny. Za garážové stání zaplatíte měsíčně 1550 Kč.
K bytu náleží i kóje pro uložení méně potřebných věcí.
Nymburk jako okresní město nabídne veškerou občanskou vybavenost. V centru města se pravidelně po celý rok pořádá spoustu akcí pro veřejnost a velmi romantické je například populární letní kino pod hradbami. Cyklostezka u Labe je skvělým místem pro sport i relaxaci například u Staré rybárny.
Pokud vás nabídka zaujala rád vám zprostředkuji prohlídku a v případě financování hypotékou poradím jak na to.
Budu se těšit.
Uvedené metráže jsou obdržené od SVJ.

Cena
6 190 000 Kč /za nemovitost Spočítat hypotéku
Aktualizováno
6. 2. 2026
Adresa
Inspektorská, Nymburk
ID
420240273
Stavba
Smíšená
Stav objektu
Velmi dobrý
Patro
3. z 4
Lokalita objektu
Klidná část obce
Vlastnictví
Osobní
Užitná plocha
71 m2
Zastavěná plocha
1409 m2
Podlahová plocha
76 m2
Plyn
Plynovod
Odpad
Veřejná kanalizace
Balkon
Výtah

Máte zájem o tuto nemovitost?

Tímto, v souladu s nařízením Evropského parlamentu a Rady (EU) 2016/679, v platném znění, prohlašuji, že mi je alespoň 16 let a uděluji tak svůj souhlas se zpracováním zadaných údajů (jméno, telefon, e-mail, ip adresa) společnosti B3 Technology, s.r.o., IČ: 07330600, se sídlem Novostavby 126/23, 435 11 Lom (správce dat), za účelem předání dotazu z tohoto formuláře Vámi vybranému inzerentovi a zpětného kontaktování mé osoby. Osobní údaje bude správce zpracovávat manuálně i automaticky přímo prostřednictvím svých zaměstnanců. Informace předané tímto formulářem budou uloženy v databázi správce maximálně po dobu 10 let. Odvolání souhlasu s uložením a zpracováním poskytnutých dat lze e-mailem na info@realitymat.cz. V případě podezření na neoprávněné použití Vámi poskytnutých údajů máte právo předat podnět k šetření Úřadu pro ochranu osobních údajů. Více informací
Chystáte se prodat nemovitost?
Pomůžeme Vám!

Kontakt

Miloslav Popek, DiS.

Miloslav Popek, DiS.

Přihlášení k odběru

Nenechte si ujít nejnovější nabídky prodeje bytů 3+kk v Nymburku.

Podobné nabídky